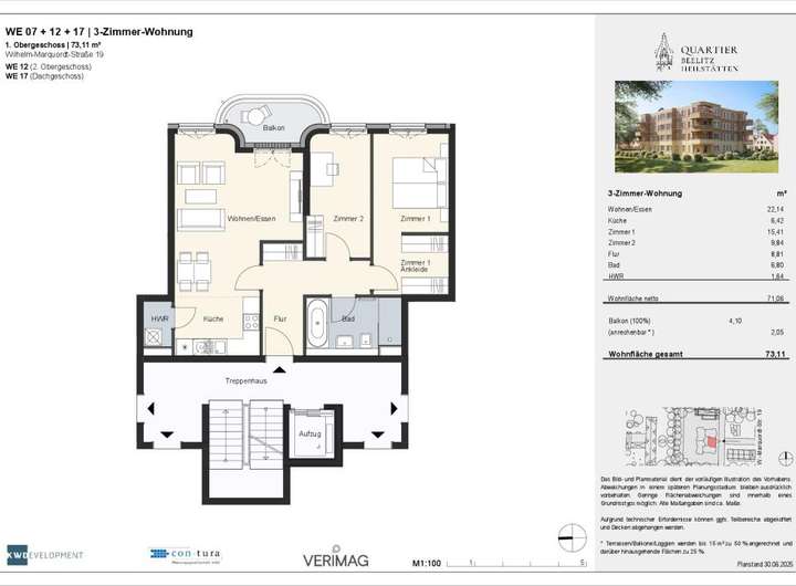
Diese charmante 2,5-Zimmerwohnung im 2. Obergeschoss der Parkvilla "Eleonora" überzeugt mit einem durchdachten Grundriss auf 73 m² und viel Tageslicht. Die Wohnung – einschließlich Balkon – ist nach Osten ausgerichtet und schafft so ein helles, freundliches Wohnambiente mit Weitblick über das Quartier.
Der offene Wohn- und Essbereich bietet direkten Zugang zum Balkon, ideal für Frühstück im Freien oder entspannte Abende. Das Schlafzimmer punktet mit einem separaten Ankleidebereich. Ein weiteres Zimmer steht als weiteres Schlafzimmer, Gästezimmer oder Homeoffice zur Verfügung.
Das moderne Badezimmer ist mit einer Wanne sowie einer großzügigen, bodengleichen Dusche ausgestattet. Ein praktischer Hauswirtschaftsraum, direkt vom Kochbereich aus erreichbar, rundet den Wohnkomfort ab.
Die Wohnung ist sowohl für Eigennutzer attraktiv, als auch für Kapitalanleger interessant, die Wert auf vielseitige Nutzungskonzepte legen.
Auf dem weitläufigen Terrain der historischen Heilstätten entsteht der ideale Ort, um sich neu zu verwurzeln: Das QUARTIER BEELITZ-HEILSTÄTTEN. Das Ensemble fügt sich auf rund 64 Hektar behutsam in die bestehende Waldlandschaft ein und umfasst insgesamt etwa 800 Häuser und rund 500 Wohnungen. Es entstehen verschiedene Einfamilienhaustypologien auf großen real geteilten Grundstücken sowie komfortable Eigentumswohnungen mit 2, 3 oder 4 Zimmern. Die gelungene Architektur spiegelt den besonderen Charme des Ortes in ihrer facettenreichen Gestaltung wider und setzt dabei eigene, moderne Akzente.
Projektdetails im Überblick:
- Hervorragende Infrastruktur durch Bahnhof und Busanbindung auf dem Gelände
- Schule und Kindergarten
- Einrichtungen des täglichen Bedarfs (Café, Bäckerei, Supermarkt, Friseur und Ärztehaus)
- Einrichtungen für betreutes Wohnen und Tagespflege
- Ladesäulen für E-Fahrzeuge
- Glasfaseranschluss
- Idyllischer Waldsee und weitläufige Parkanlagen auf dem Gelände
Parkvilla Eleonora: Helle und kompakte Balkonwohnung
Wilhelm-Marquordt-Straße 19,
14547 Beelitz
Auf Karte anzeigen
Finanzierungszertifikat
In nur zwei Minuten zu Ihrem persönlichen Finanzierungszertifkat.
Infos
| Wohnungskategorie | Etagenwohnung |
|---|---|
| Etage | 2 von 3 |
| Wohnfläche ca. | 73 m2 |
| Bezugsfrei ab | Frühjahr 2027 |
| Zimmer | 2,5 |
| Schlafzimmer | 2 |
| Badezimmer | 1 |
Kosten
| Kaufpreis |
385.000 € |
|---|---|
| Provision | Nein |
Finanzierungsrechner:
Kaufpreis:
600.000 €
Eigenkapital:
600.000 €
Monatliche Rate
0 €
Effektiver Jahreszins
0 %
Sollzinsbindung
10 Jahre
Bausubstanz & Energieausweis
| Baujahr | 2027 |
|---|---|
| Objektzustand | Erstbezug |
| Qualität der Austattung | Gehoben |
| Heizungsart | Blockheizkraftwerk |
| Wesentliche Energieträger | Nahwärme |
Beschreibung des Objekts
Ausstattung
- 3 bis 4 Zimmer mit 73 bis 113 m²
- Echtholzparkett in Wohn- und Schlafräumen
- Energiesparende Fußbodenheizung
- Feinsteinzeug in den Bädern und Hauswirtschaftsräumen
- Sanitärobjekte und Armaturen von Markenherstellern
- Elektrische Rollläden an allen Fenstern
- 3-Fach-Verglasung der Fenster
- Jede Wohnung mit Balkon oder Terrasse
- Gartenwohnungen mit Privatgarten, barrierefrei
- Aufzug in alle Etagen
- Fahrradabstellplatz und Abstellraum für jede Wohnung im Untergeschoss
- Tiefgaragenstellplätze (teilweise mit E-Lademanagement)
Lage
Das QUARTIER BEELITZ-HEILSTÄTTEN ist der ideale Ort für alle, die Nähe zur Natur suchen und den Anschluss an die Großstadt nicht verlieren möchten. Der historische Bahnhof nahe des neuen Wohnquartiers macht es besonders für Pendler attraktiv, die beispielsweise in Potsdam oder Berlin arbeiten. Die Zugverbindungen führen schnell und bequem ohne Umsteigen in die beiden Hauptstädte. Zum Stadtzentrum von Beelitz gelangt man in drei Kilometern.
- Alles fürs tägliche Leben: gleich um die Ecke
- Beelitz Stadt: 8 min mit dem Auto oder Bus
- Potsdam: 20 min mit dem ÖPNV oder Auto
- Berlin Hauptbahnhof: 38 min mit dem ÖPNV
- Berlin Alexanderplatz: 45 min mit dem Auto
- Flughafen BER: 30 min mit dem Auto
Sonstige Angaben
Der Verkauf erfolgt ohne zusätzliche Käuferprovision!
Willkommen im Showroom:
Straße am Bahnhof 3
14547 Beelitz-Heilstätten
Öffnungszeiten:
Sonntags 13 - 15 Uhr
oder nach individueller Vereinbarung!
Angaben nach EnEV: Energieausweis befindet sich in der Erstellung.
Änderungen und Irrtümer vorbehalten. Das Bild- und Planmaterial dient zum Teil der vorläufigen Illustration des Vorhabens. Insbesondere die Visualisierungen o. ä. sind unverbindlich und zeigen teilweise Sonderausstattungen und Einrichtungen, die als Möblierungsvorschläge zu verstehen sind.
Weitere Dokumente
Eleonora_WE 12_GrundrissGrundriss
Eleonora_WE 12_Grundriss
>
>
Adresse
Wilhelm-Marquordt-Straße 19, 14547 Beelitz
Interessante Orte
Preis- und Lageinformationen
Preistrend für Bestandsimmobilien in Beelitz