Zum Hauptinhalt springen
1/12
2/12
3/12
4/12
5/12
6/12
7/12
8/12
9/12
10/12
11/12
12/12

Baugrundstück mit 500m² in Garbsen für nur 129.000 Euro - Positive Bauvoranfrage vorhanden

30826 Garbsen
Die vollständige Adresse der Immobilie erhalten Sie vom Anbieter.
Auf Karte anzeigen
Logo ImmoScout24 Logo ImmoScout24
PDF Finanzierungszertifikat

Finanzierungszertifikat

In nur zwei Minuten zu Ihrem persönlichen Finanzierungszertifkat.

  • Zur Vorlage beim Makler oder Verkäufer
  • Vorteile gegenüber anderen Kaufinteressenten
  • Kostenlos und unverbindlich
Finanzierungszertifikat anfragen

Infos

Vermarktungsart Kaufen
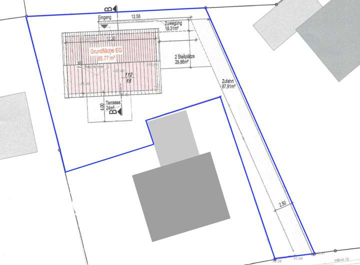
Grundstücksfläche 483,07 m2
Erschließung Erschlossen
Empfohlene Nutzung Einfamilienhaus
Grundflächenzahl (GRZ) 0.25
Geschossflächenzahl (GFZ) 0.32
Bebaubar nach wie Nachbarbebauung

Kosten

Miete pro Jahr 129.000 €
Provision 4,65% inkl. MwSt.

Finanzierungsrechner:

Kaufpreis: 600.000 €

Eigenkapital: 600.000 €
Monatliche Rate 0 €
Effektiver Jahreszins 0 %
Sollzinsbindung 10 Jahre

Beschreibung des Objekts

                Erhalten Sie hier alle Informationen zum Grundstück:
https://kaufinteressent.fine-home.de/property-landing/bd1ee84c-e0eb-4816-875c-c06d1aa4eaab
            

Lage

                Erhalten Sie hier alle Informationen zum Grundstück:
https://kaufinteressent.fine-home.de/property-landing/bd1ee84c-e0eb-4816-875c-c06d1aa4eaab
                

Adresse

30826 Garbsen

Interessante Orte

Bäckereien
Schulen
Ärzte

Ansprechpartner