In schöner Hanglage von Bad Soden präsentiert sich dieses ca. 712 m² große Grundstück als ideale Basis für ein individuelles Bauvorhaben. Die besondere Lage schafft nicht nur reizvolle Ausblicke, sondern ermöglicht auch eine architektonisch anspruchsvolle Gestaltung, die sich harmonisch in die Umgebung einfügt.
Das Grundstück bietet vielfältige Optionen zur Bebauung. Denkbar ist sowohl ein großzügiges Einfamilienhaus mit weitläufigem Garten als auch die Errichtung einer modernen Doppelhaushälfte. Damit haben zukünftige Eigentümer die Freiheit, ihre persönlichen Vorstellungen in die Tat umzusetzen und ein Zuhause zu entwickeln, das exakt zu den eigenen Bedürfnissen passt.
Eine besondere Hanglage eröffnet zudem ein außergewöhnliches, exklusives Blick - und Raumgefüge.
Es entstehen Möglichkeiten, Wohn - und Außenräume mit besonderem Charakter und Charme zu gestalten, die durch ihre Offenheit und Sichtqualität überzeugen.
Die Grundstücksgröße bietet ausreichend Raum für großzügige Grundrisse, offene Wohnkonzepte und eine harmonische Verbindung von Innen- und Außenbereichen. Ob weitläufige Terrassenflächen, private Rückzugsorte oder ein liebevoll angelegter Garten – hier können vielfältige Wohnideen Wirklichkeit werden.
Besonders vorteilhaft ist die Möglichkeit, dass der Eigentümer auf Wunsch die künftigen Bauherren bei der Planung unterstützt. Dadurch erhalten Interessenten nicht nur ein attraktives Grundstück, sondern zugleich eine fachkundige Begleitung von den ersten Überlegungen bis hin zur konkreten Projektierung.
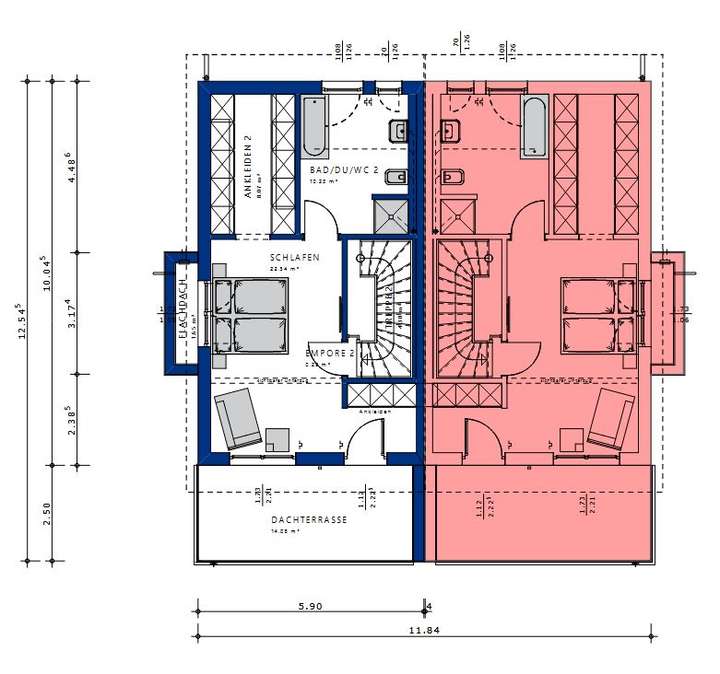
Bitte beachten Sie: Der Kaufpreis bezieht sich ausschließlich auf das Grundstück. Die in den Darstellungen gezeigten Immobilienbilder dienen lediglich als virtuelle Beispielbebauung und sollen Inspiration für mögliche Bauprojekte geben. Eine Architektenleistung ist im Angebot nicht enthalten.
Dieses Angebot vereint eine ausgezeichnete Lage, eine großzügige Grundstücksfläche und flexible Bebauungsmöglichkeiten. Es stellt eine seltene Gelegenheit dar, in Bad Soden ein Bauprojekt nach den eigenen Wünschen zu verwirklichen und damit den Traum vom Eigenheim in einer wertbeständigen Umgebung Realität werden zu lassen.
Exklusives Baugrundstück in Hanglage mit Beispielbebauung!
63628 Bad Soden-Salmünster
Die vollständige Adresse der Immobilie erhalten Sie vom Anbieter.
Auf Karte anzeigen
Die vollständige Adresse der Immobilie erhalten Sie vom Anbieter.
Finanzierungszertifikat
In nur zwei Minuten zu Ihrem persönlichen Finanzierungszertifkat.
Infos
| Vermarktungsart | Kaufen |
|---|---|
| Grundstücksfläche | 712 m2 |
| Erschließung | Erschlossen |
| Empfohlene Nutzung | Doppelhaus, Einfamilienhaus |
| Bebaubar nach | wie Nachbarbebauung |
| Verfügbar ab | nach Vereinbarung |
Kosten
| Miete pro Jahr |
195.000 € |
|---|---|
| Provision |
5,95 % inkl. der gesetzl. MwSt., bezogen auf den beurkundeten Kaufpreis |
Finanzierungsrechner:
Kaufpreis:
600.000 €
Eigenkapital:
600.000 €
Monatliche Rate
0 €
Effektiver Jahreszins
0 %
Sollzinsbindung
10 Jahre
Beschreibung des Objekts
Lage
Das unbebaute Grundstück befindet sich in attraktiver Wohnlage in Bad Soden, einem staatlich anerkannten Kurort im Main-Kinzig-Kreis. Die ruhige und grüne Umgebung bietet ideale Voraussetzungen für alle, die den Traum vom Eigenheim in naturnaher Lage verwirklichen möchten.
Besonders für junge Familien und Selbstnutzer ist der Standort reizvoll, da er ein familienfreundliches Umfeld mit guter Infrastruktur und hoher Lebensqualität verbindet. In direkter Nähe laden Spazier- und Radwege durch die Landschaft des Spessarts zu Erholung und Bewegung ein. Gleichzeitig profitieren künftige Eigentümer von einer sehr guten Anbindung: Der Bahnhof Bad Soden-Salmünster ist nur wenige Minuten entfernt und bietet regelmäßige Zugverbindungen in Richtung Fulda und Frankfurt am Main. Auch die Autobahn A66 ist schnell erreichbar, sodass Pendler in alle Richtungen gut angebunden sind.
Vor Ort finden sich sämtliche Einrichtungen des täglichen Bedarfs, darunter Einkaufsmöglichkeiten, Ärzte, Apotheken sowie ein vielfältiges schulisches und vorschulisches Angebot mit mehreren Kindergärten und einer Grund- und Gesamtschule im Stadtgebiet.
Die lebendige Altstadt von Salmünster mit Cafés, kleinen Läden und kulturellen Angeboten verleiht dem Ort zusätzlichen Charme. Darüber hinaus ist Bad Soden-Salmünster für seine Kur- und Wellnessangebote bekannt, was den Standort auch langfristig attraktiv macht.
Die Kombination aus ruhiger Wohnlage, guter Infrastruktur, naturnaher Umgebung und solider Wertstabilität macht das Grundstück zu einer idealen Wahl für alle, die selbst bauen und ihre Zukunft in einem nachhaltigen und familienfreundlichen Umfeld gestalten möchten.
Grundriss
Beispielgrundriss Erdgeschoss
>
>
Beispielgrundriss Obergeschoss
>
>
Beispielgrundriss Dachgeschoss
>
>