In Kerpen-Horrem mit unverbaubarer Aussichtslage in ruhigen Wohngebiet bieten wir eine Grundstücksfläche von insgesamt 19.624 m² zum Kauf an. Diese teilt sich wie folgt auf:
838 m² Baugrundstück incl. gültiger Baugenehmigung,
und
18.786 m² Garten- und Landschafts-schutzfläche.
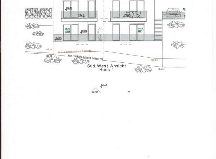
Für das Baugrundstück von 838 m² liegt eine aktuelle Baugenehmigung für 2 Doppelhaushälften in jeweils 1,5 geschossiger Bauweise und Wohnräumen im Untergeschoss mit allen erforderlichen Planungsunterlagen liegen bereits vor. Die geplante Wohnfläche je Doppelhaus beträgt 130 m² je mit 5 Zimmern. Grundrisse können Sie hier bereits als Anlage erkennen. Somit können insgesamt 520 m² bereits genehmigte Wohnfläche errichtet werden. Eine Grundstücksteilung des Baugrundstücks ist möglich.
Gerne stehen wir Ihnen für alle weiteren Informationen und einem Ortstermin zur Verfügung.
Die Vermittlungsprovision beträgt 3,57 % vom beurkundeten Kaufpreis (16.743,30 €) einschließlich gesetzlicher Mehrwertssteuer. Diese ist mit Beurkundung des notariellen Kaufvertrages und nach Rechnungsstellung fällig.
Baugrund in Kerpen-Horrem für 2 Doppelhäuser mit Baugenehmigung + 18.786 m² Landschaftsschutzfläche
Heideweg 34,
50171 Kerpen
Auf Karte anzeigen
Finanzierungszertifikat
In nur zwei Minuten zu Ihrem persönlichen Finanzierungszertifkat.
Infos
| Vermarktungsart | Kaufen |
|---|---|
| Grundstücksfläche | 19.624 m2 |
| Erschließung | Unerschlossen |
| Empfohlene Nutzung | Doppelhaus |
| Verfügbar ab | 9/2025 |
Kosten
| Miete pro Jahr |
649.000 € |
|---|---|
| Provision |
23169,30 Die Vermittlungsprovision beträgt 3,57% einschließlich Mehrwertssteuer vom beurkundeten Kaufpreis. Diese ist fällig und verdient mit Beurkundung des notariellen Kaufvertrages. |
Finanzierungsrechner:
Kaufpreis:
600.000 €
Eigenkapital:
600.000 €
Monatliche Rate
0 €
Effektiver Jahreszins
0 %
Sollzinsbindung
10 Jahre