Dieses Einfamilienhaus aus dem Jahr 1952 bietet Ihnen auf ca. 122 m² Wohnfläche und einem großzügigen Grundstück von rund 1.870 m² jede Menge Platz und Gestaltungsmöglichkeiten. Neben dem bestehenden Wohnbereich verfügt dieses Haus über einen begonnenen Anbau im Rohbauzustand sowie eine zusätzliche Ausbaureserve im Dachgeschoss, perfekt für handwerklich geschickte Käufer, die ihre eigenen Ideen verwirklich möchten.
Einige Modernisierungen wurden bereits umgesetzt, darunter die Heizungsanlage inkl. Fußbodenheizung, Elektrik, Fenster, Bäder und die Küche. Dennoch befindet sich das Haus insgesamt in einem renovierungsbedürftigen Zustand und wartet darauf, von einem neuen Eigentümer wieder in neuem Glanz erstrahlen zu dürfen.
Ein echtes Highlight ist das weitläufige Grundstück mit pflegeleicht angelegtem Garten und eigenem kleinen Waldstück, ein idyllischer Rückzugsort für alle, die Natur, Ruhe und Freiraum zu schätzen wissen.
Einfamilienhaus mit Ausbaureserven und eigenem Waldstück in Ottersberg-Bahnhof
28870 Ottersberg
Die vollständige Adresse der Immobilie erhalten Sie vom Anbieter.
Auf Karte anzeigen
Die vollständige Adresse der Immobilie erhalten Sie vom Anbieter.
Finanzierungszertifikat
In nur zwei Minuten zu Ihrem persönlichen Finanzierungszertifkat.
Infos
| Haustyp | Einfamilienhaus |
|---|---|
| Etagenzahl | 3 |
| Wohnfläche ca. | 122 m2 |
| Grundstücksfläche | 1.870 m2 |
| Bezugsfrei ab | Nach Vereinbarung |
| Zimmer | 4 |
| Schlafzimmer | 3 |
| Badezimmer | 2 |
| Garage/Stellplatz | Garage |
| Anzahl Garage/Stellplatz | 2 |
Kosten
| Kaufpreis |
298.000 € |
|---|---|
| Provision |
3,57 inkl. MwSt. |
Finanzierungsrechner:
Kaufpreis:
600.000 €
Eigenkapital:
600.000 €
Monatliche Rate
0 €
Effektiver Jahreszins
0 %
Sollzinsbindung
10 Jahre
Bausubstanz & Energieausweis
| Baujahr | 1952 |
|---|---|
| Letzte Sanierung | 2020 |
| Bauphase | Haus fertig gestellt |
| Objektzustand | Renovierungsbedürftig |
| Qualität der Austattung | Normal |
| Heizungsart | Zentralheizung |
| Wesentliche Energieträger | Öl |
| Energieausweis | liegt vor |
| Energieausweistyp | Bedarfsausweis |
| Energieverbrauchskennwert | 223,5 kWh/(m²*a) |
| Energieeffizienzklasse | G |
223,5
kWh/(m²*a)
Energieeffizienzklasse G
- A+
- A
- B
- C
- D
- E
- F
- G
- H
- 0
- 25
- 50
- 75
- 100
- 125
- 150
- 175
- 200
- 225
- >250
Beschreibung des Objekts
Ausstattung
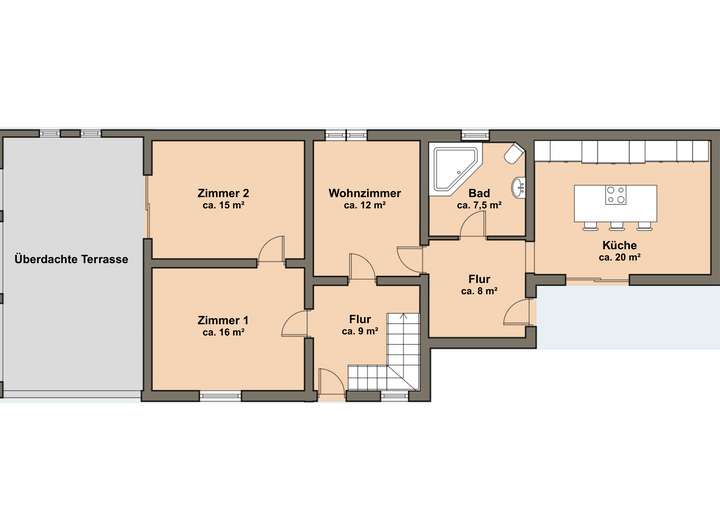
Beim Betreten des Hauses gelangen Sie in einen Flur mit Treppe ins Obergeschoss. Auf der linken Seite befinden sich ein Zimmer (Durchgangszimmer) sowie ein Schlafzimmer mit direktem Zugang zur überdachten Terrasse.
Geradeaus erreichen Sie das gemütliche Wohnzimmer mit Kaminofen.
Vom Wohnzimmer aus gelangen Sie in einen weiteren großzügigen Flur. Hier befindet sich der zweite Hauseingang, das Tageslichtbad mit Eckbadewanne sowie die großzügige Küche mit moderner Einbauküche, Kochinsel und direktem Zugang in den Garten. Über eine Einschubtreppe im Flur erreichen Sie zudem die zusätzliche Ausbaureserve.
Das Obergeschoss bietet ein modernes Duschbad (die Fertigstellung von Tür und Zarge steht noch aus) sowie ein großzügiges Zimmer, welches über eine Treppe ins ausgebaute Dachgeschoss verfügt.
Die Außenanlagen umfassen eine Auffahrt, eine Doppelgarage mit Werkstatt und Grube (das Dach ist sanierungsbedürftig), einen komplett eingezäunten Garten sowie ein kleines Waldstück mit Gartenhaus. Auf der überdachten Terrasse sorgt eine Photovoltaikanlage für Stromersparnis.
Technisch ist das Haus bereits teilweise modernisiert: Eine Öl-Zentralheizung (Baujahr 2020) mit Fußbodenheizung im Erdgeschoss sorgt für Wärme. Die Fenster sind überwiegend 2-fach-verglaste Kunststofffenster und alle mit Außenrollläden ausgestattet. Das Dach ist nachträglich gedämmt und die Elektrik auf Stand.
Ausstattung im Überblick
Erdgeschoss:
• Flur mit Treppe ins OG
• Zimmer 1 (Durchgangszimmer)
• Zimmer 2 mit Zugang zur überdachten Terrasse
• Wohnzimmer mit Kaminofen
• Tageslichtbad mit Eckbadewanne
• Großzügige Küche mit moderner Einbauküche und Zugang zum Garten
• Zweiter Hauseingang
Obergeschoss:
• Modernes Duschbad (Tür/Zarge fehlen)
• Großes Zimmer mit Treppe zum ausgebauten Dachgeschoss
• Ausbaureserve
Außenbereich:
• Ruhige Lage in zweiter Reihe
• Doppelgarage mit Werkstatt und Grube (Dach sanierungsbedürftig)
• Überdachte Terrasse mit Photovoltaikanlage
• Voll eingezäunter Garten
• Anbau im Rohbauzustand
• Eigenes Waldstück mit Gartenhaus
Allgemeines
• Öl-Zentralheizung Baujahr 2020
• Fußbodenheizung im EG
• Überwiegend 2-fach-vergalste Kunststofffenster
• Außenrollläden
• Dach nachträglich gedämmt
• Elektrik vor ca. 10 Jahren erneuert
Lage
Das Einfamilienhaus befindet sich in einer ruhigen und familienfreundlichen Wohnstraße im Ortsteil Ottersberg-Bahnhof. Die Lage überzeugt durch eine angenehme Nachbarschaft, wenig Verkehrt und sicheres Umfeld – ideal für Familien und Kindern.
Die Infrastruktur in Ottersberg ist hervorragend: Einkaufsmöglichkeiten des täglichen Bedarfs, Apotheken, Ärzte sowie Cafés und Restaurants sind in wenigen Minuten erreichbar. Auch Freizeitangebote und Sportvereine befinden sich in direkte Nähe und bieten zahlreiche Möglichkeiten für Aktivitäten im Grünen.
Besonders attraktiv für Familien ist die hervorragende Bildungsinfrastruktur: In Ottersberg befinden sich mehrere Kindergartenstätten und Schulen, sodass kurze Wege für die Kinder garantiert sind. Von der Grundschule bis hin zu weiterführenden Schulen ist alles gut erreichbar, sowohl zu Fuß als auch mit dem Fahrrad.
Die Anbindung an den Öffentlich Nahverkehr ist ebenfalls sehr praktisch: Der Bahnhof Ottersberg liegt in fußläufiger Entfernung und bietet schnelle Verbindungen nach Bremen und Hamburg. Über die nahegelegene Autobahn A1 sind außerdem Pendelerstrecken und Ausflugziele schnell erreichbar.
Dank dieser Kombination aus ruhiger, naturnaher Wohnlage, guter Infrastruktur und idealen Bildungsangeboten ist diese Lage besonders für Familie attraktiv, die ein sicheres und komfortables Umfeld suchen.
Sonstige Angaben
Bilder und Worte vermitteln Ihnen einen guten ersten Eindruck.
Gerne nehmen wir uns Zeit für Sie und zeigen Ihnen alles, was zu diesem Haus dazugehört.
Rufen Sie uns einfach an und teilen Sie uns mit, wann es für Sie am besten passt:
Tel.-Nr.: 04207 / 90 94 51
Ihr Ansprechpartner ist: Herr Jeremy J. Shaffer
Zusätzlich bieten wir Ihnen eine umfassende, bankenunabhängige Finanzierungsberatung an. Unsere langjährige Erfahrung in diesem Bereich macht es möglich, dass wir Ihnen aus einem Pool von renommierten Bankenpartnern die für Sie beste Bank und die günstigsten Konditionen vermitteln können. Wir beraten Sie ebenfalls gerne zum Einsatz von KfW-Förderprogrammen.
Wir können Immobilien.
Adresse
28870 Ottersberg
Interessante Orte
Preis- und Lageinformationen
Preistrend für Bestandsimmobilien in Ottersberg