Inmitten einer der reizvollsten Landschaften der Chiemgauer Alpen, am malerischen Samerberg, präsentiert sich dieses beeindruckende Anwesen als einzigartiger Rückzugsort für höchste Wohnansprüche. Die Lage zählt zweifellos zu den schönsten der gesamten Region - mit freiem Blick auf die majestätischen Alpenkette und den glitzernden Simsee. Die unvergleichliche Naturkulisse, die elegante Ausstattung und die vollkommene Ruhe verleihen diesem Anwesen eine seltene Qualität. Ein eigenständiges, 1.788m² großes Baugrundstück - derzeit als parkartiger Garten des 2.120m² großen, bebauten Grundstückes genutzt - kann optional zusätzlich erworben werden eröffnet durch großzügiges Baurecht vielfältige Perspektiven für die Zukunft und macht diese Liegenschaft zu einer Rarität.
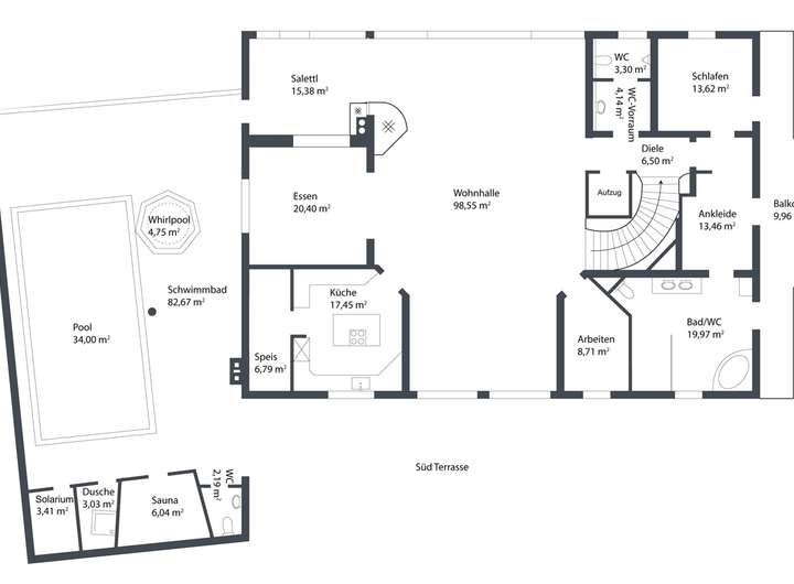
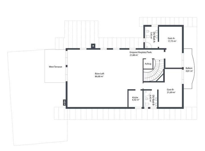
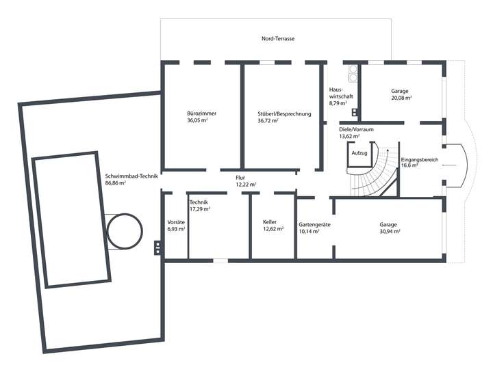
Das weitläufige Haus erstreckt sich über drei Ebenen und überzeugt durch Großzügigkeit, Lichtfülle und eine gehobene Ausstattung in klassischer Eleganz. Edle Materialien, durchdachte Raumkonzepte und ein stimmiges Farbspiel schaffen ein stilvolles Ambiente voller Wärme und Persönlichkeit. Der hauseigene Spa-Bereich erfüllt höchste Ansprüche an Entspannung und Wohlbefinden: Ein lichtdurchflutetes Schwimmbad mit Whirlpool, eine Sauna sowie ein separater Ruhebereich laden zum privaten Wellnessgenuss auf höchstem Niveau ein – zu jeder Jahreszeit. Das Raumangebot umfasst einen großzügigen Wohnbereich, ein Esszimmer sowie Salettl, eine Einbauküche mit verdecktem Zugang zu einer Speisekammer, ein Schlafzimmer mit angrenzendem Ankleidebereich und Badezimmer sowie ein Büro und ein Gäste WC. Im Obergeschoss befindet sich ein weitläufiges Büroloft mit angrezender Küche und Terrassenzugang sowie zwei Gästezimmer mit jeweils eigenem Bad und Balkonzugang. Durch die Hanglage hat auch die untere Ebene des Hauses Zugang zu einem eigenen Gartenbereich. Die Ebene beherbergt den Eingangsbereich des Hauses, ein Stüberl und einen Büroraum sowie einen Hauswirtschaftsraum, umfangreiche Stauräume und einen Technikbereich.
Das großzügige Grundstück besticht nicht nur durch seine repräsentative Größe, sondern auch durch seine besondere Vielschichtigkeit. Ein liebevoll angelegter Garten mit weitläufigen Terrassen bildet das grüne Herzstück des Außenbereichs. Darüber hinaus eröffnet hier ein eigenständiges, optional zusätzlich erwerbliches Grundstück von 1.788 Quadratmetern mit bestehendem Baurecht vielfältige Perspektiven für zukünftige Erweiterungen oder ergänzende Bauprojekte (Baurecht gemäß Bebauungsplan: Grundfläche 190m², Wandhöhe 6m, Doppelgarage).
Klassische Eleganz: Großzügige Residenz mit Schwimmbad und Panoramablick
83122 Samerberg
Die vollständige Adresse der Immobilie erhalten Sie vom Anbieter.
Auf Karte anzeigen
Die vollständige Adresse der Immobilie erhalten Sie vom Anbieter.
Finanzierungszertifikat
In nur zwei Minuten zu Ihrem persönlichen Finanzierungszertifkat.
Infos
| Haustyp | Einfamilienhaus |
|---|---|
| Wohnfläche ca. | 373 m2 |
| Nutzfläche | 481 m2 |
| Grundstücksfläche | 2.120 m2 |
| Zimmer | 9 |
| Schlafzimmer | 3 |
| Badezimmer | 3 |
| Garage/Stellplatz | Garage |
| Anzahl Garage/Stellplatz | 4 |
Kosten
| Kaufpreis |
3.990.000 € |
|---|---|
| Provision |
3,57% inkl. MwSt. |
Finanzierungsrechner:
Kaufpreis:
600.000 €
Eigenkapital:
600.000 €
Monatliche Rate
0 €
Effektiver Jahreszins
0 %
Sollzinsbindung
10 Jahre
Bausubstanz & Energieausweis
| Baujahr | 2008 |
|---|---|
| Heizungsart | Fußbodenheizung |
| Energieausweis | liegt vor |
| Energieausweistyp | Verbrauchsausweis |
| Energieverbrauchskennwert | 57,7 kWh/(m²*a) |
| Energieeffizienzklasse | B |
57,7
kWh/(m²*a)
Energieeffizienzklasse B
- A+
- A
- B
- C
- D
- E
- F
- G
- H
- 0
- 25
- 50
- 75
- 100
- 125
- 150
- 175
- 200
- 225
- >250
Beschreibung des Objekts
Ausstattung
Bauweise und Ausstattung:
- Solaranlage zur Warmwassererzeugung
- großflächige Photovoltaikanlage zur Stromerzeugung (Eigebedarf und Einspeisung)
- massive Ziegelbauweise
- BUS System (Lichtsteuerung, Außenkamera)
- durchgängige Fußbodenheizung
- Luftwärmepumpe (Einbau 2024) / Erdwärme
- Schwimmbad mit zusätzlichem Whirlpool, Sauna und Ruhebereich
- hochwertige, maßgefertigte Einbaumöbel in nahezu allen Räumlichkeiten
- Personenaufzug
- Speisen- und Getränkeaufzug
Außenanlagen:
- repräsentativer, gepflegter Garten
- großer Terrassenbereich
- vier Garagenstellplätze mit elektrischen Toren
Optional:
- 1.788m² unbebautes Grundstück mit Baurecht gemäß Bebauungsplan, derzeit als parkartiger Garten genutzt (Baurecht lt. Bebauungsplan: Grundfläche 190m², Wandhöhe 6m)
Lage
Der Samerberg liegt idyllisch eingebettet in die sanft geschwungene Voralpenlandschaft des Landkreises Rosenheim und zählt zu den begehrtesten Wohnlagen der Region. Die weitläufige Hochfläche auf etwa 700 Metern Seehöhe begeistert mit einer einzigartigen Panoramalage – der Blick reicht über grüne Wiesen, dichte Wälder und die majestätischen Gipfel der Chiemgauer Alpen bis hin zum glitzernden Simsee.
Die charmante Gemeinde bewahrt bis heute ihre authentische oberbayerische Identität – geprägt von Tradition, gelebtem Miteinander und einer außergewöhnlich hohen Lebensqualität. Der Samerberg ist ein Refugium für Naturliebhaber, Wanderer und Ruhesuchende, ohne auf die Vorzüge einer gut angebundenen Lage verzichten zu müssen.
Die nur etwa 20 Autominuten entfernte Stadt Rosenheim bietet eine hervorragende städtische Infrastruktur mit vielfältigen Einkaufsmöglichkeiten, ausgezeichneten Schulen sowie einem lebendigen Kultur- und Gastronomieangebot. Auch der Chiemgau mit dem Chiemsee und seinen renommierten Urlaubsorten ist in kurzer Zeit erreichbar.
Die Anbindung an die Autobahn A8 verläuft äußerst komfortabel: In rund einer Stunde gelangt man nach München, ebenso zügig ist Salzburg erreichbar. Damit vereint der Samerberg das Beste aus zwei Welten – naturnahes Wohnen auf höchstem Niveau und die Nähe zu zwei der bedeutendsten Städte des Alpenraums.
Sonstige Angaben
Alle Angaben sind ohne Gewähr und basieren ausschließlich auf Informationen, die uns von unserem Auftraggeber übermittelt wurden. Wir übernehmen keine Gewähr für die Vollständigkeit, Richtigkeit und Aktualität dieser Angaben. Zwischenverkauf bleibt vorbehalten. Die Weitergabe dieses Exposés an Dritte ohne unsere Zustimmung löst gegebenenfalls Courtage- bzw. Schadensersatzansprüche aus.
Die Höhe der Courtage richtet sich nach den ab dem 23.12.2020 in Kraft getretenen gesetzlichen Regelungen zur Teilung der Maklercourtage. Hiernach wird die Courtage für beide Parteien (Verkäufer und Käufer) je 3,57 % auf den Kaufpreis inkl. gesetzlicher Umsatzsteuer betragen und ist bei notariellem Vertragsabschluss verdient und fällig.
Grundriss
Untergeschoss
>
>
Erdgeschoss
>
>
Obergeschoss
>
>
Adresse
83122 Samerberg
Interessante Orte
Preis- und Lageinformationen
Preistrend für Bestandsimmobilien in Samerberg