Wir bieten Ihnen ein massiv errichtetes Ursprungshaus aus ca. 1895, das im Laufe der Jahre mehrfach umgebaut und erweitert wurde. Das Gebäude ist aktuell als Dreifamilienhaus genehmigt und überzeugt durch seine vielseitige Nutzungsmöglichkeit in Kombination mit einer Lagerhalle und einer großzügigen Doppelgarage.
Im Erdgeschoss befindet sich eine Büroeinheit, während die oberen Geschosse insgesamt vier Wohneinheiten beherbergen. Die Immobilie eignet sich damit sowohl zur Eigennutzung – beispielsweise in Verbindung von Wohnen und Arbeiten – als auch solide Kapitalanlage.
Das Büro, die Lagerhalle und die Doppelgarage können frei übergeben werden, während die Wohnungen derzeit vermietet sind.
Für die Wärmeversorgung sorgen drei Gasetagenheizungen:
•Erdgeschoss: Baujahr 2000
•1.Obergeschoss & 2.Obergeschoss links: Baujahr 2018
•1.Obergeschoss & 2.Obergeschoss rechts: Baujahr 1995
Die Außenfassade ist an drei Außenseiten isoliert und trägt zu einer verbesserten Energieeffizienz bei.
Die Grundstücke liegen zudem in einem förmlich festgelegten Sanierungsgebiet, wodurch sich für Erwerber sowohl Vorteile als auch besondere Rahmenbedingungen im Hinblick auf mögliche Modernisierungen ergeben können.
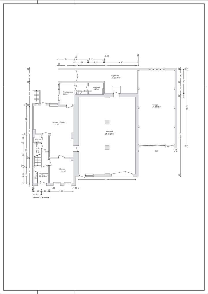
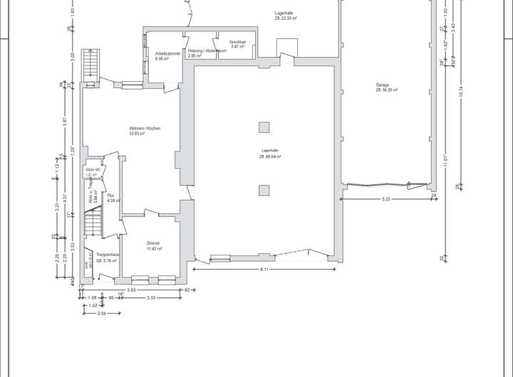
Erdgeschoss:
Wohnung mit ca. 65 m², 3 Zimmer mit Küchenbereich, Duschbad, Gäste-WC, Flur und Abstellraum. Es gibt einen Durchgang zur Lagerhalle.
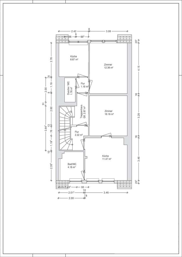
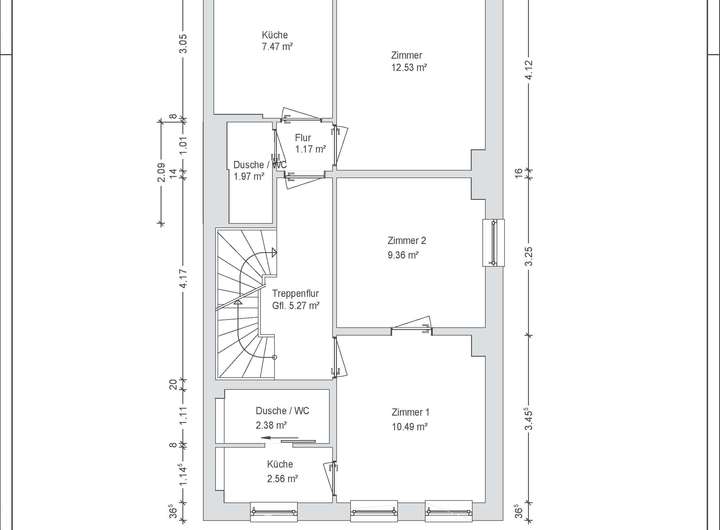
1. Obergeschoss:
Wohnung 1 mit ca. 23 m², 1 Zimmer, Küche, Flur und Dusche/WC
Wohnung 2 mit ca. 25 m², 2 Zimmer, Küche und Dusche/WC
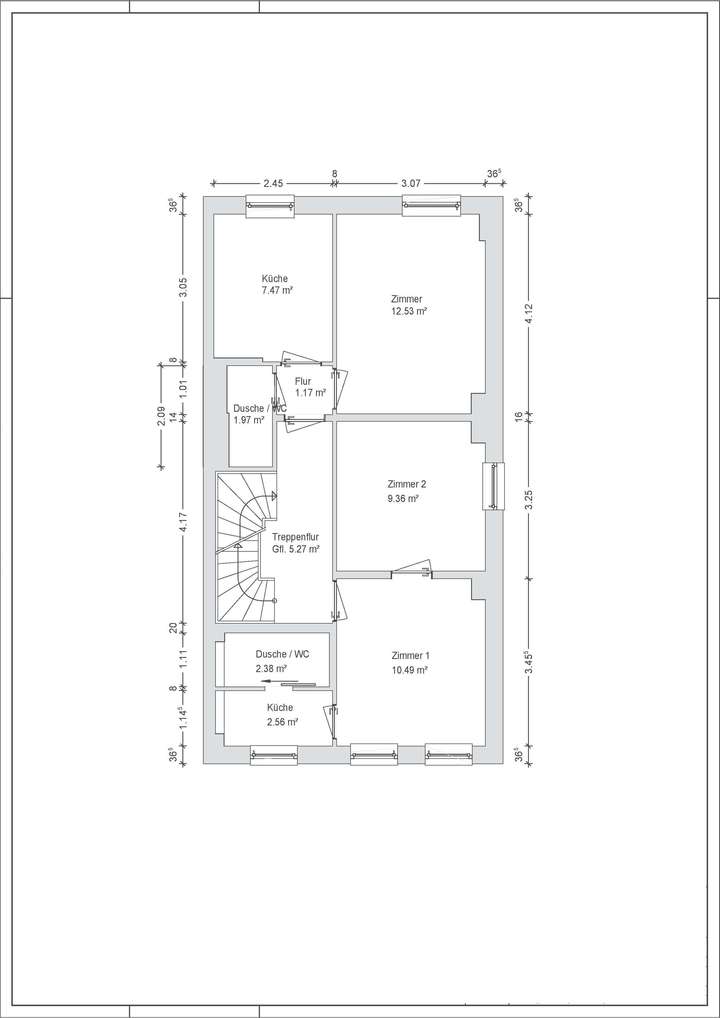
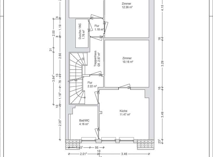
2 Obergeschoss:
Wohnung 3 mit ca. 22 m², 1 Zimmer, Küche, Flur und Dusche/WC
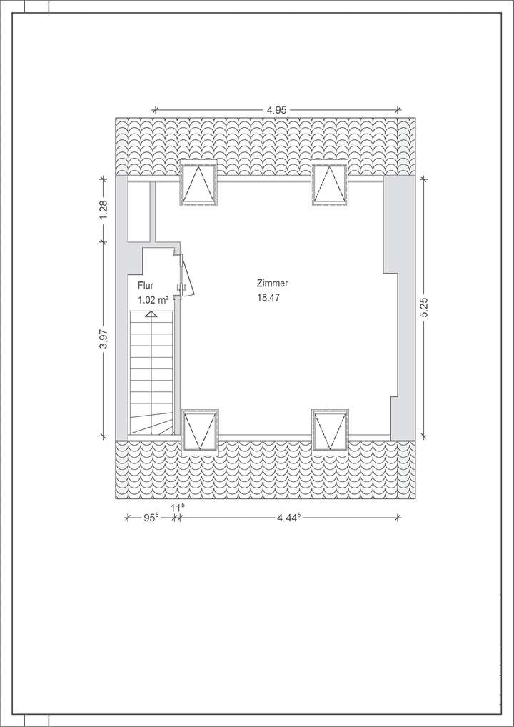
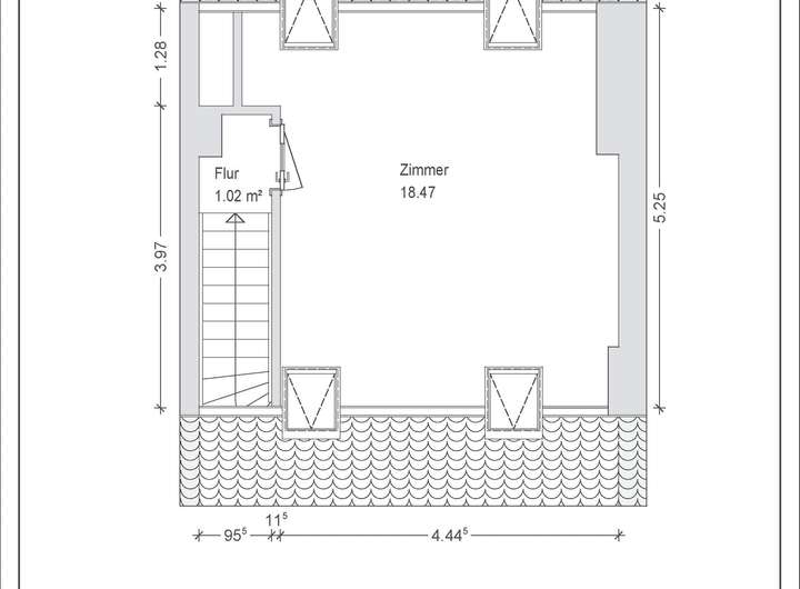
2. Obergeschoss und Dachgeschoss:
Wohnung 4 mit ca. 47,5 m², 2 Zimmer, Küche, Flur und Bad/WC
Mehrfamilienhaus mit Büro, Wohnungen, Lager und großer Doppelgarage, für Anleger & Eigennutzer
28237 Bremen
Die vollständige Adresse der Immobilie erhalten Sie vom Anbieter.
Auf Karte anzeigen
Die vollständige Adresse der Immobilie erhalten Sie vom Anbieter.
Finanzierungszertifikat
In nur zwei Minuten zu Ihrem persönlichen Finanzierungszertifkat.
Infos
| Haustyp | Mehrfamilienhaus |
|---|---|
| Wohnfläche ca. | 181 m2 |
| Nutzfläche | 167 m2 |
| Grundstücksfläche | 342,5 m2 |
| Zimmer | 9 |
Kosten
| Kaufpreis |
425.000 € |
|---|---|
| Provision |
5,95 % inkl. ges. MwSt. |
Finanzierungsrechner:
Kaufpreis:
600.000 €
Eigenkapital:
600.000 €
Monatliche Rate
0 €
Effektiver Jahreszins
0 %
Sollzinsbindung
10 Jahre
Bausubstanz & Energieausweis
| Baujahr | 1895 |
|---|---|
| Bauphase | Haus fertig gestellt |
| Objektzustand | Gepflegt |
| Wesentliche Energieträger | Gas |
| Energieausweis | liegt vor |
| Energieausweistyp | Bedarfsausweis |
| Energieverbrauchskennwert | 191,0 kWh/(m²*a) |
| Energieeffizienzklasse | F |
191,0
kWh/(m²*a)
Energieeffizienzklasse F
- A+
- A
- B
- C
- D
- E
- F
- G
- H
- 0
- 25
- 50
- 75
- 100
- 125
- 150
- 175
- 200
- 225
- >250
Beschreibung des Objekts
Ausstattung
Individuelle Ausstattungsmerkmale:
- Drei Gasetagenheizungen
- Teilkeller
- vielfältige Nutzungsmöglichkeiten
- Terrasse im Erdgeschoss
- großes Lager
- große Doppelgarage
- Drei Gasetagenheizungen
- Teilkeller
- Vielfältige Nutzungsmöglichkeiten
- Terrasse im Erdgeschoss
- Großes Lager
- Große Doppelgarage
Lage
Den Ortsteil Gröpelingen bezeichnet man als bunten, gediegenen Stadtteil. Geschäfte des täglichen Bedarfs, aber auch Schulen, Kindergärten und Arztpraxen, sowie Bus- und Straßenbahnhaltestellen sind fußläufig zu erreichen. Die Shoppingmall "Waterfront" erreichen Sie in wenigen Autominuten. Bremen-Nord und die Bremer City - mit Ihren vielfältigen kulturellen Angeboten - sind schnell zu erreichen. Das Gleiche gilt für die Autobahn A 27.
Sonstige Angaben
Es sind Bruttomieten vereinbar, die sich wie folgt aufteilen:
Wohnung im Erdgeschoss (Büro): frei geliefert
Wohnung 1 im 1. Obergeschoss: EUR 420,00
Wohnung 2 im 1. Obergeschoss: EUR 460,00
Wohnung 3 im 2. Obergeschoss: EUR 410,00
Wohnung 4 im 2. Ober- und Dachgeschoss: EUR 550,00
Somit ergibt sich eine Jahresbruttomiete von EUR 22.080,00
VERBRAUCHERINFO
1. Maklerleistung ist der Nachweis der Gelegenheit zum Abschluss eines Vertrages bzw. Vermittlung eines Vertrages über eine Immobilie gegen die Courtagezahlungspflicht des Kunden
2. Unternehmer,Anschrift,Beschwerdeadressat
LBSi NordWest, Himmelreichallee 40, 48149 Münster, Tel:0251/973233-997, eMail:info@lbsi-nw.de
GF:Martin Englert, Volker Goldbeck
3. Es besteht ein Widerrufsrecht
4. Weitere Infos: verbraucherinfo.lbsi-nordwest.de
Grundriss
Kellergeschoss
>
>
Erdgeschoss
>
>
1. Obergeschoss
>
>
2. Obergeschoss
>
>
Dachgeschoss
>
>
Adresse
28237 Bremen
Interessante Orte
Preis- und Lageinformationen
Preistrend für Bestandsimmobilien in Lindenhof