Dieses im Jahr 1956 erbaute Mehrfamilienhaus präsentiert sich als attraktive Kapitalanlage in zentraler Lage von Hannover. Die Immobilie umfasst insgesamt sieben Wohneinheiten sowie zwei Gewerbeeinheiten im Erdgeschoss und ist vollständig vermietet.
In den vergangenen Monaten wurden umfassende Modernisierungen und Sanierungen durchgeführt, die den Wert und die Attraktivität des Objektes langfristig sichern. Besonders hervorzuheben sind die neu geschaffenen Penthouse-Wohnungen im 4. Obergeschoss, die im Zuge einer genehmigten Nutzungsänderung entstanden sind. Diese Einheiten verfügen über hochwertige Ausstattungsmerkmale wie moderne Einbauküchen und dreifach verglaste Fenster.
Auch die Gewerbeeinheiten im Erdgeschoss wurden kürzlich in enger Abstimmung mit den Mietern renoviert und befinden sich in einem sehr gepflegten Zustand. Darüber hinaus wird derzeit die Fassade des Gebäudes erneuert, sodass sich das Objekt künftig in einem modernen und repräsentativen Erscheinungsbild präsentiert.
Die Heizungsversorgung erfolgt über Fernwärme, was nicht nur eine effiziente und nachhaltige Energieversorgung gewährleistet, sondern auch einen geringen Wartungsaufwand mit sich bringt.
Das Haus erzielt ab Ende des Jahres jährliche Nettokaltmieteinnahmen in Höhe von 126.554,40€ (monatlich 10.546,20 €). Auf Basis des Kaufpreises von 2.790.000 € ergibt sich damit eine Bruttorendite von ca. 4,5 %. Zusätzlich besteht in einzelnen Einheiten weiteres Mietsteigerungspotenzial, da die aktuellen Mieten teilweise noch unterhalb der ortsüblichen Vergleichsmiete liegen.
Insgesamt handelt es sich um ein vollständig gemanagtes Objekt ohne Investitionsstau – sämtliche Wartungen sind auf dem aktuellen Stand, offene Baustellen bestehen nicht.
Modernisiertes Wohn- und Geschäftshaus in Hannover-City!
30159 Hannover
Die vollständige Adresse der Immobilie erhalten Sie vom Anbieter.
Auf Karte anzeigen
Die vollständige Adresse der Immobilie erhalten Sie vom Anbieter.
Finanzierungszertifikat
In nur zwei Minuten zu Ihrem persönlichen Finanzierungszertifkat.
Infos
| Etagenzahl | 4 |
|---|---|
| Wohnfläche ca. | 813 m2 |
| Grundstücksfläche | 337 m2 |
| Bezugsfrei ab | nach Absprache |
| Zimmer | 20 |
Kosten
| Kaufpreis |
2.790.000 € |
|---|---|
| Provision |
3,57% inkl. MwSt. |
Finanzierungsrechner:
Kaufpreis:
600.000 €
Eigenkapital:
600.000 €
Monatliche Rate
0 €
Effektiver Jahreszins
0 %
Sollzinsbindung
10 Jahre
Bausubstanz & Energieausweis
| Baujahr | 1956 |
|---|---|
| Heizungsart | Fernwärme |
| Wesentliche Energieträger | Fernwärme |
| Energieausweis | liegt vor |
| Energieausweistyp | Bedarfsausweis |
| Energieverbrauchskennwert | 117,4 kWh/(m²*a) |
| Energieeffizienzklasse | D |
117,4
kWh/(m²*a)
Energieeffizienzklasse D
- A+
- A
- B
- C
- D
- E
- F
- G
- H
- 0
- 25
- 50
- 75
- 100
- 125
- 150
- 175
- 200
- 225
- >250
Beschreibung des Objekts
Ausstattung
- Vollständig vermietetes Mehrfamilienhaus mit 9 Einheiten
- Attraktive Innenstadtlage von Hannover
- Jahresnettokaltmiete: 126.554,40 €
- Zusätzliches Mietsteigerungspotenzial vorhanden (- auf ca. 156.000,00€)
- Umfassende Sanierungen & Modernisierungen (Penthouses, Gewerbeeinheiten, Fassade)
- Effiziente und nachhaltige Fernwärme-Heizungsanlage
- Keine offenen Investitionen, voll gemanagtes Objekt
Lage
Die Osterstraße gehört zu den zentralsten Lagen Hannovers und hat in den vergangenen 10 bis 15 Jahren eine deutliche Aufwertung erfahren. Während sie früher vor allem als reine Durchgangs- und Geschäftslage wahrgenommen wurde, entwickelt sie sich zunehmend zu einem urbanen Mischgebiet mit einer attraktiven Kombination aus Wohnen, Einzelhandel und Gastronomie. Dieser Wandel hat auch zu einer kontinuierlichen Steigerung der Miet- und Kaufpreise geführt.
Besonders interessant für Investoren: Hannover setzt seit einigen Jahren auf eine umfassende Smart-City-Strategie, die direkt die Innenstadt und damit auch die Osterstraße betrifft. Ziel ist es, die City bis 2030 nachhaltig, digital und lebenswerter zu gestalten. Dazu gehören der konsequente Ausbau digitaler Infrastruktur (Glasfaser, 5G), der Aufbau einer intelligenten Verkehrssteuerung, die Ausweitung von E-Mobilitätsangeboten sowie die schrittweise Verkehrsberuhigung mit mehr Grünflächen und Radwegen.
Für die Osterstraße bedeutet das: Sie wird sich in den kommenden Jahren zu einer zukunftsorientierten, hochwertigen Wohn- und Geschäftslage entwickeln, die insbesondere für junge Berufstätige und urbane Zielgruppen attraktiv ist. Schon heute zeigt sich eine starke Nachfrage nach Wohnraum in dieser Mikrolage, die durch die geplanten Maßnahmen weiter verstärkt wird.
Für Investoren ergibt sich daraus ein klarer Mehrwert:
- Sichere Mieteinnahmen in einer gefragten Innenstadtlage mit geringem Leerstandsrisiko.
- Langfristige Wertsteigerung des Objekts durch die städtebauliche und digitale Aufwertung.
- Nachhaltige Zukunftssicherheit, da die Immobilie unmittelbar vom Smart-City-Konzept Hannovers profitiert.
Die Osterstraße 59 steht damit nicht nur für ein solides Investment im Herzen Hannovers, sondern auch für die Chance, von den dynamischen Entwicklungen der kommenden Jahre überdurchschnittlich zu profitieren.
Sonstige Angaben
Angaben zu den Wohneinheiten:
EG links: 90,12m² - 1.550,00€
EG rechts: 57,49m² - 895,00€
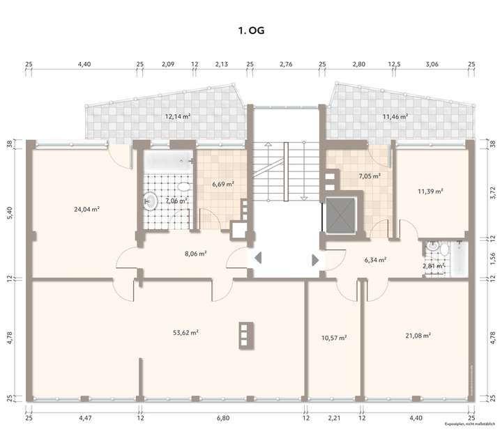
1.OG links: 64,97m² - 485,50€
1.OG rechts: 105,54m² - 1.000,50€
2.OG: 176,42m² - 2.005,00€
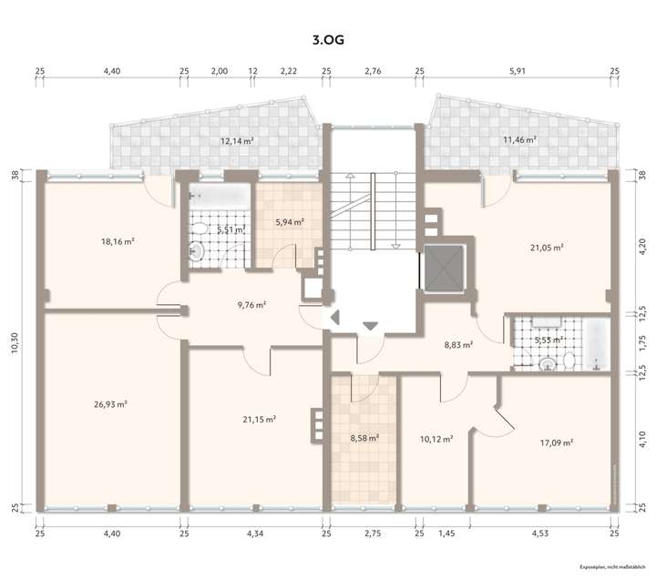
3.OG links: 76,93m² - 950,00€
3.OG rechts: 93,52m² - 860,20€
4.OG links: 65,99m² - 1.250,00€
4.OG rechts: 82,23m² - 1.550,00€
Grundriss
Erdgeschoss
>
>
1. Obergeschoss
>
>
2. Obergeschoss
>
>
3. Obergeschoss
>
>
4. Obergeschoss
>
>
Keller
>
>
Adresse
30159 Hannover
Interessante Orte
Preis- und Lageinformationen
Preistrend für Bestandsimmobilien in Mitte