Zum Verkauf steht ein attraktives Baugrundstück in 69118 Heidelberg-Ziegelhausen mit einer Fläche von ca. 975 m², bebaubar nach § 34 BauGB.
Die sonnige Hanglage mit Blick ins Grüne bietet ideale Voraussetzungen für den Bau eines modernen Einfamilienhauses oder einer exklusiven Villa.
Das Grundstück ist voll erschlossen und kann kurzfristig bebaut werden.
Die Hanglage ermöglicht spannende architektonische Konzepte – von Split-Level-Häusern über Terrassengrundrisse bis hin zu großzügigen Gartenebenen.
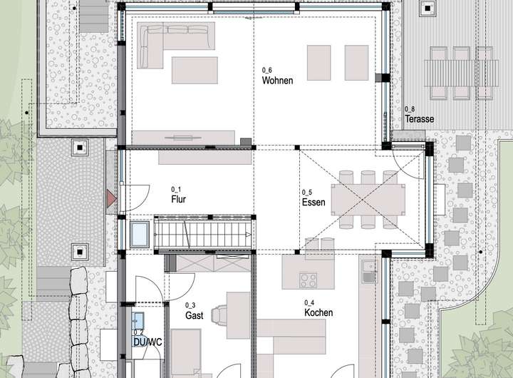
Im Inserat finden Sie beispielhafte Grundrisse, die eine mögliche Planung aufzeigen. Diese dienen als Inspiration und können selbstverständlich individuell an Ihre Wünsche und Vorstellungen angepasst werden.
Aufgrund der natürlichen Begrünung ist ein gewisser Gestaltungsaufwand einzuplanen – zugleich bietet dies die Freiheit, das Grundstück individuell zu formen und nach eigenen Vorstellungen zu gestalten.
******************************************************************************
Optional:
Ein zweites, drüber liegendes bzw. angrenzendes Grundstück mit ca. 426 m² Fläche kann alternativ oder zusätzlich für 275.000 € erworben werden.
Beide Grundstücke zusammen ergeben eine Gesamtfläche von ca. 1.401 m² – ideal für ein Doppelprojekt, Mehrgenerationenwohnen oder ein großzügiges Bauensemble.
Nähere Informationen erhalten Sie gerne bei Kontaktaufnahme.
Baugrundstück in Heidelberg-Ziegelhausen | ca. 975 m² | zweites Grundstück optional
69118 Heidelberg
Die vollständige Adresse der Immobilie erhalten Sie vom Anbieter.
Auf Karte anzeigen
Die vollständige Adresse der Immobilie erhalten Sie vom Anbieter.
Finanzierungszertifikat
In nur zwei Minuten zu Ihrem persönlichen Finanzierungszertifkat.
Infos
| Vermarktungsart | Kaufen |
|---|---|
| Grundstücksfläche | 975 m2 |
| Erschließung | Erschlossen |
| Empfohlene Nutzung | Einfamilienhaus, Garagen, Garten, Mehrfamilienhaus, Villa |
| Bebaubar nach | wie Nachbarbebauung |
| Verfügbar ab | 1.11.2025 |
Kosten
| Miete pro Jahr |
425.000 € |
|---|---|
| Provision |
3,57% Im Falle eines notariellen Kaufvertragsabschlusses ist eine Provision in Höhe von 3,57 % (inkl. der gesetzlichen Mehrwertsteuer) auf dem Kaufpreis des Grundstücks zu entrichten. Mit der Verkäuferschaft besteht ebenfalls ein provisionspflichtiger Vertrag in gleicher Höhe. |
Finanzierungsrechner:
Kaufpreis:
600.000 €
Eigenkapital:
600.000 €
Monatliche Rate
0 €
Effektiver Jahreszins
0 %
Sollzinsbindung
10 Jahre
Beschreibung des Objekts
Lage
Das Grundstück befindet sich in Heidelberg-Ziegelhausen, einem der begehrtesten und naturnahen Wohngebiete Heidelbergs.
Die idyllische Lage im Grünen bietet ein hohes Maß an Privatsphäre und eröffnet viel Potenzial für eine hochwertige Bebauung.
Der Stadtteil verbindet die Ruhe einer grünen Umgebung mit der Nähe zur Heidelberger Altstadt.
Geschäfte des täglichen Bedarfs, Schulen, Kindergärten sowie medizinische Einrichtungen befinden sich direkt in Ziegelhausen.
Über die B37 erreichen Sie schnell die Heidelberger Innenstadt und das gesamte Rhein-Neckar-Gebiet.
Die Lage am Hang ermöglicht zudem einen schönen Ausblick ins Grüne und direkten Zugang zur Natur.
Sonstige Angaben
Sollten Sie Interesse an einem Termin haben, freue ich mich auf die Kontaktaufnahme:
Herr Max Mühlegg
HUF HAUS Fachberater
Mobil: 0176 6130 1352
Aus Respekt und in gemeinsamer Absprache mit den Eigentümer, ist ein Finanzierungsnachweis oder vergleichbares Dokument vorab notwendig.
Sollten Sie bei Fragen zur Finanzierung Unterstützung benötigen, so kontaktieren Sie uns ebenfalls.
Über unsere Tochterfirma "HUF Finanzierungsservice" können wir Ihnen ein maßgeschneidertes Angebot unterbreiten.
Wir freuen uns auf Ihre Kontaktaufnahme!
Grundriss
Beispiel Erdgeschoss
>
>
Beispiel Obergeschoss
>
>
Beispiel Gartengeschoss
>
>