Dieses schöne Einfamilienhaus im toskanischen Stil befindet sich in einer ruhigen und zentralen Lage in der Schillerstraße 24a in Reinbek. Mit einer großzügigen Wohnfläche von ca. 285 m² zzgl. einer Nutzfläche von ca. 102 m² bietet es auf 6 Zimmern viel Platz für eine Familie.
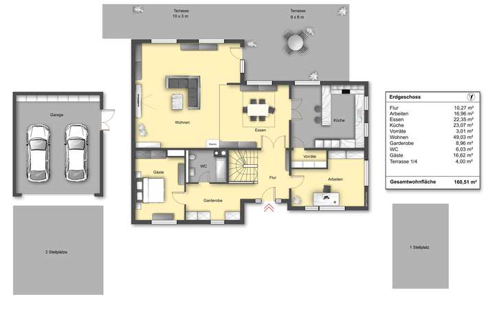
Das Erdgeschoss empfängt Sie mit einem großzügigen Eingangsbereich, der in ein helles Büro, ein Gästezimmer sowie ein stilvolles Badezimmer mit Badewanne übergeht. Der lichtdurchflutete Wohnbereich besticht durch seine südliche Ausrichtung zum Garten und schafft mit einem Kamin sowie einem offenen Essbereich mit einem Luftraum eine besondere Wohlfühlatmosphäre. Angrenzend daran befindet sich die moderne Einbauküche mit praktischem Vorratsraum. Große, teils bodentiefe Fenster lassen viel Licht in alle Räume und schaffen ein luftiges und offenes Wohngefühl.
Im Obergeschoss erwartet Sie der großzügige Masterbedroom, der über eine eigene Ankleide und ein Tageslichtbad mit Dusche verfügt. Zwei weitere Schlafzimmer, ebenfalls mit eigenen Ankleiden, teilen sich ein Bad en Suite mit Dusche und Tageslicht. Ein Hauswirtschaftstraum für Handtücher, Bettwäsche, sowie ein Wäscheabwurf in den Keller ist ebenfalls vorhanden. Der weitläufige Galeriebereich im Obergeschoss bietet zusätzlichen Platz für persönliche Entfaltung.
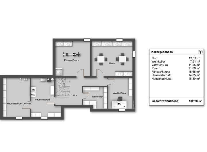
Das Haus ist umgeben von einem großen, gepflegten Garten mit angelegter Terrasse und einer schönen Bepflanzung – ein idealer Ort zum Entspannen oder für gesellige Zusammenkünfte. Der Keller dieses Hauses lässt keine Wünsche offen: Ein Weinkeller mit einem speziellen Weinklimagerät, ein Vorratsraum, ein Hauswirtschaftsraum/Wäscheraum und ein Raum für die gesamte Haustechnik sind hier untergebracht. Zwei große Räume bieten darüber hinaus viel Potenzial für individuelle Nutzungsmöglichkeiten, einschließlich eines Saunaanschlusses. Der Keller wurde mit einer weißen Wanne gebaut, die optimalen Schutz vor Wassereintritt bietet und ist komplett gefliest.
Für höchsten Komfort sorgen die Echtholzparkett- und Fliesenböden sowie eine Fußbodenheizung in allen Räumen. Das moderne BUS-System (LCN) ermöglicht individuelle Lichtszenarien und eine komfortable Temperaturregelung. Für den nötigen Stauraum und Organisation wurden diverse Einbauschränke auf allen Etagen verbaut.
Das Haus entspricht dem KfW 60 Standard und ist mit einer umweltfreundlichen Wärmepumpe (Nibe) mit Tiefenbohrung sowie einer kontrollierten Be- und Entlüftung (Pluggit) ausgestattet. Eine Photovoltaikanlage mit 13,5 kW und einer 10 kW Batterie sorgt für eine nachhaltige und kostensparende Energieversorgung.
Für Ihre Fahrzeuge bietet die private Garage zwei Stellplätze sowie direkten Zugang zum Garten. Weitere Stellplatzmöglichkeiten für drei weitere Fahrzeuge befinden sich direkt vor der Garage und vor dem Garten (siehe Grundriss).
Dieses schöne Einfamilienhaus vereint hochwertigen Wohnkomfort, moderne Technik und eine exzellente Lage – ein echtes Traumhaus für anspruchsvolle Käufer.
Traumhaftes Einfamilienhaus im toskanischen Stil in ruhiger Villenlage
21465 Reinbek
Die vollständige Adresse der Immobilie erhalten Sie vom Anbieter.
Auf Karte anzeigen
Die vollständige Adresse der Immobilie erhalten Sie vom Anbieter.
Finanzierungszertifikat
In nur zwei Minuten zu Ihrem persönlichen Finanzierungszertifkat.
Infos
| Haustyp | Einfamilienhaus |
|---|---|
| Etagenzahl | 3 |
| Wohnfläche ca. | 285 m2 |
| Grundstücksfläche | 1.476 m2 |
| Bezugsfrei ab | Nach Vereinbarung |
| Zimmer | 6 |
| Badezimmer | 3 |
| Garage/Stellplatz | Garage |
| Anzahl Garage/Stellplatz | 5 |
Kosten
| Kaufpreis |
1.600.000 € |
|---|---|
| Provision |
3,57 % inkl. ges. MwSt. Die Courtage in Höhe von je 3,57 % inkl. ges. MwSt. für die Verkäufer- und Käuferseite bei Verkauf von Wohnimmobilien bzw. 3,57 Monatsmieten inkl. ges. MwSt. bei Wohnungsvermietung sowie 7,14 % inkl. ges. MwSt. bei Verkauf von Gewerbeimmobilien und 3,57 Monatsmieten inkl. ges. MwSt. bei Gewerbevermietung ist verdient und fällig bei Vertragsabschluss bzw. bei Abschluss eines gleichwertigen Geschäfts, das im Zusammenhang mit der maklerseits geleisteten Tätigkeit steht und vom Käufer bzw. Mieter an die Firma HCH Der HafenCity-Makler GmbH zu zahlen, die hierdurch einen unmittelbaren Zahlungsanspruch erhält. Die Erwerbs- bzw. Nutzungsbedingungen sind uns von unserem Vertragspartner mitzuteilen. |
Finanzierungsrechner:
Kaufpreis:
600.000 €
Eigenkapital:
600.000 €
Monatliche Rate
0 €
Effektiver Jahreszins
0 %
Sollzinsbindung
10 Jahre
Bausubstanz & Energieausweis
| Baujahr | 2008 |
|---|---|
| Bauphase | Haus fertig gestellt |
| Objektzustand | Gepflegt |
| Qualität der Austattung | Gehoben |
| Heizungsart | Fußbodenheizung |
| Wesentliche Energieträger | Strom |
| Energieausweis | liegt vor |
| Energieausweistyp | Verbrauchsausweis |
| Energieverbrauchskennwert | 16,2 kWh/(m²*a) |
| Energieeffizienzklasse | A+ |
16,2
kWh/(m²*a)
Energieeffizienzklasse A+
- A+
- A
- B
- C
- D
- E
- F
- G
- H
- 0
- 25
- 50
- 75
- 100
- 125
- 150
- 175
- 200
- 225
- >250
Beschreibung des Objekts
Lage
Das Einfamilienhaus in Reinbek befindet sich in einer ruhigen und begehrten Wohngegend von Reinbek, einer charmanten Stadt im Osten von Hamburg. Die Lage kombiniert perfekte Anbindung an die Großstadt mit einem hohen Maß an Ruhe und Privatsphäre, ideal für Familien und Menschen, die das Grüne suchen, aber dennoch schnell in der Metropole sein möchten. Reinbek bietet eine ausgezeichnete Infrastruktur mit sämtlichen Einkaufsmöglichkeiten, Schulen, Kindergärten und Freizeitangeboten. Der Ortskern ist nur wenige Minuten entfernt und bietet eine Vielzahl an Geschäften, Cafés und Restaurants. Besonders das nahegelegene Naturschutzgebiet, bietet zahlreiche Möglichkeiten für Spaziergänge und Erholung im Grünen.
Die Anbindung an den öffentlichen Nahverkehr ist hervorragend. Der Bahnhof Reinbek ist nur wenige Minuten entfernt und bietet schnelle Verbindungen nach Hamburg, sodass Sie das Stadtzentrum in ca. 30 Minuten erreichen. Zudem ist die Stadt über die nahegelegene A24 an das Autobahnnetz angeschlossen, was Ihnen ebenfalls eine gute Erreichbarkeit von Hamburg und den umliegenden Regionen ermöglicht. Für Sport- und Freizeitbegeisterte bietet die Umgebung zahlreiche Möglichkeiten, darunter Sportvereine, ein Golfplatz sowie Rad- und Wanderwege. Der nahegelegene Sachsenwald, der größte zusammenhängende Wald Norddeutschlands, lädt zu ausgedehnten Spaziergängen und Freizeitaktivitäten in der Natur ein. Durch diese ideale Kombination aus ruhiger, grüner Lage und sehr guter Anbindung an die Stadt ist die Schillerstraße in Reinbek ein äußerst attraktiver Standort für anspruchsvolle Käufer.
Grundriss
Grundriss Obergeschoss
>
>
Grundriss Erdgeschoss
>
>
Grundriss Kellergeschoss
>
>
Adresse
21465 Reinbek
Interessante Orte
Preis- und Lageinformationen
Preistrend für Bestandsimmobilien in Reinbek