Das entkernte Ein-bzw. Zweifamilienhaus befindet sich in einer ruhigen und attraktiven Wohngegend. Mit einer Wohnfläche von ca. 164 m² auf zwei Etagen und einer Grundstücksfläche von insgesamt 452 m² bietet das Objekt viel Potenzial für individuelle Wohnideen und Gestaltungsmöglichkeiten.
Aktuell befindet sich das Haus in einem Rohbauzustand und wartet auf seine Verwirklichung.
Im Erdgeschoss befindet sich Platz für ein Schlafzimmer, ein Kinder- oder Arbeitszimmer, eine Küche, ein Tageslichtbadezimmer und der Wohnbereich mit Kaminzugang und Zugang auf die Terrasse in den vorderen Gartenbereich.
Im Obergeschoss verteilt sich die Wohnfläche auf ein Schlafzimmer, einen großen Wohn-und Essbereich mit Zugang zum Balkon und einem Kamin, sowie eine Küche und ein Badezimmer.
Das Dachgeschoss verfügt über zwei Zimmer und ein WC.
Das Wohnhaus ist so konzeptiert, dass zwei Wohnungen darin geschaffen werden können. Z.B. für den Eigengebrauch, als Mehrgenerationen, als Kapitalanlage, etc..
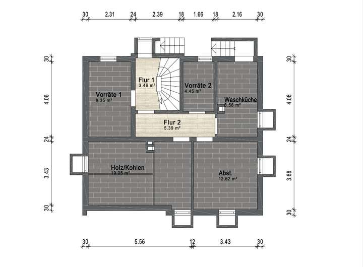
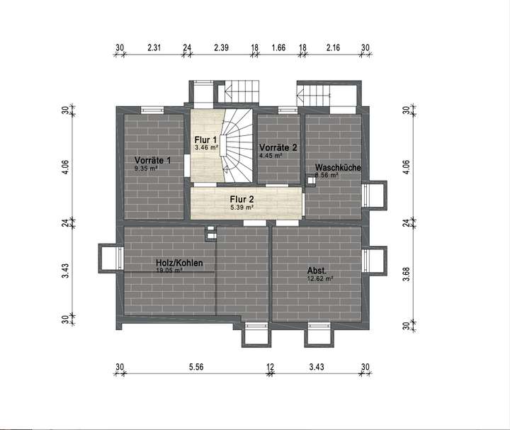
Im Kellergeschoss befinden sich drei Abstellräume und Lagerräume, ein Raum für ein neues Heizsystem und ein Waschraum mit Zugang nach draußen in den Garten. Der Garten bietet Ihnen die Möglichkeit Ihre eigene Wohlfühloase zu gestalten und sich zu verwirklichen. Ein praktisches Gartenhäuschen ist bereits vorhanden.
Die alte Heizung sowie die Elektrik wurden im ganzen Haus entfernt.
Diese ansprechende Immobilie wartet darauf, von Ihnen wieder neu zum Leben erweckt zu werden.
Das perfekte Projekt für Handwerker. Ein- bis Zweifamilienhaus in schöner Lage.
72461 Albstadt
Die vollständige Adresse der Immobilie erhalten Sie vom Anbieter.
Auf Karte anzeigen
Die vollständige Adresse der Immobilie erhalten Sie vom Anbieter.
Finanzierungszertifikat
In nur zwei Minuten zu Ihrem persönlichen Finanzierungszertifkat.
Infos
| Haustyp | Einfamilienhaus |
|---|---|
| Wohnfläche ca. | 164 m2 |
| Grundstücksfläche | 452 m2 |
| Zimmer | 7 |
| Badezimmer | 2 |
Kosten
| Kaufpreis |
185.000 € |
|---|---|
| Provision |
siehe Sonstiges |
Finanzierungsrechner:
Kaufpreis:
600.000 €
Eigenkapital:
600.000 €
Monatliche Rate
0 €
Effektiver Jahreszins
0 %
Sollzinsbindung
10 Jahre
Bausubstanz & Energieausweis
| Baujahr | 1963 |
|---|---|
| Heizungsart | Ofenheizung |
| Energieausweis | liegt vor |
| Energieausweistyp | Bedarfsausweis |
| Energieverbrauchskennwert | 432,4 kWh/(m²*a) |
| Energieeffizienzklasse | H |
432,4
kWh/(m²*a)
Energieeffizienzklasse H
- A+
- A
- B
- C
- D
- E
- F
- G
- H
- 0
- 25
- 50
- 75
- 100
- 125
- 150
- 175
- 200
- 225
- >250
Beschreibung des Objekts
Ausstattung
Blick ins Grüne
Vollunterkellert
Kamin
Lage
Das entkernte Ein-bzw. Zweifamilienhaus befindet sich in einer der begehrtesten Gegenden der Schwäbischen Alb.
Bekannt für seine malerische Landschaften, zieht Albstadt-Onstmettingen Käufer an, die sowohl die Ruhe der Natur als auch die Nähe zu urbanem Komfort schätzen.
Diese Region bietet eine perfekte Balance zwischen naturnaher Idylle und einer gut ausgebauten Infrastruktur.
Diese besteht aus mehreren Kindergärten, einer Grund- und Werkrealschule, verschiedenen Unternehmen, Metzgerei, Bäckerei, verschiedenen Ärzten und Apotheke.
Die Verkehrsanbindung ist sehr gut: Der Bahnhof Albstadt-Ebingen ist nur etwa 10 Minuten mit dem Auto entfernt, und von dort erreichen Sie Stuttgart in weniger als einer Stunde mit dem Zug.
Mit dem Auto sind Sie in ca. 40 Minuten in Tübingen, oder in 25 Minuten in Balingen.
Ein besonderes Highlight ist der nahegelegene Schlossberg mit der historischen Burg Hohenzollern, die einen spektakulären Blick über die Region bietet und zu den bekanntesten Sehenswürdigkeiten Deutschlands zählt.
Sonstige Angaben
Der Makler-Vertrag mit uns und/oder unserem Beauftragten kommt durch die Beauftragung der Maklertätigkeit in Textform (z.B. E-Mail mit Bestätigung der gewollten Inanspruchnahme) zustande. Die Höhe der Courtage richtet sich nach den ab dem 23.12.2020 in Kraft getretenen gesetzlichen Regelungen zur Teilung der Maklercourtage. Hiernach wird die Courtage regelmäßig für beide Parteien (Eigentümer und Käufer) jeweils in Höhe von 3 % zuzüglich Umsatzsteuer in jeweils geltender Höhe, derzeit also insgesamt 3,57 % des Kaufpreises einschließlich Umsatzsteuer bei notariellem Vertragsabschluss verdient und fällig. Die Höhe der Bruttocourtage unterliegt einer Anpassung bei Steuersatzänderung. Grunderwerbssteuer, Notar- und Gerichtskosten trägt der Käufer.
Grundriss
Grundriss EG
>
>
Grundriss OG
>
>
Grundriss DG
>
>
Grundriss UG
>
>
Adresse
72461 Albstadt
Interessante Orte
Preis- und Lageinformationen
Preistrend für Bestandsimmobilien in Albstadt