Das Einfamilienhaus wurde im Jahr 2009 in Massivbauweise erbaut und befindet sich in einem neuwertigen Zustand. Mit einer Wohnfläche von 172 m² bietet es ausreichend Platz für eine Familie.
Schon beim Grundriss sehen Sie die durchdachte und großzügige Planung. Flur, Wohn- und Esszimmer sowie die Küche sind offen miteinander verbunden. Das Esszimmer öffnet sich mit großer Glasfront zur sonnigen Terrasse. Von dieser genießen Sie bei Sonnenuntergang auf der nachbarschaftlichen Koppel grasende Pferde. Ein Arbeitszimmer, das Gäste-WC mit der Dusche und die Speis vervollständigen diese Ebene.
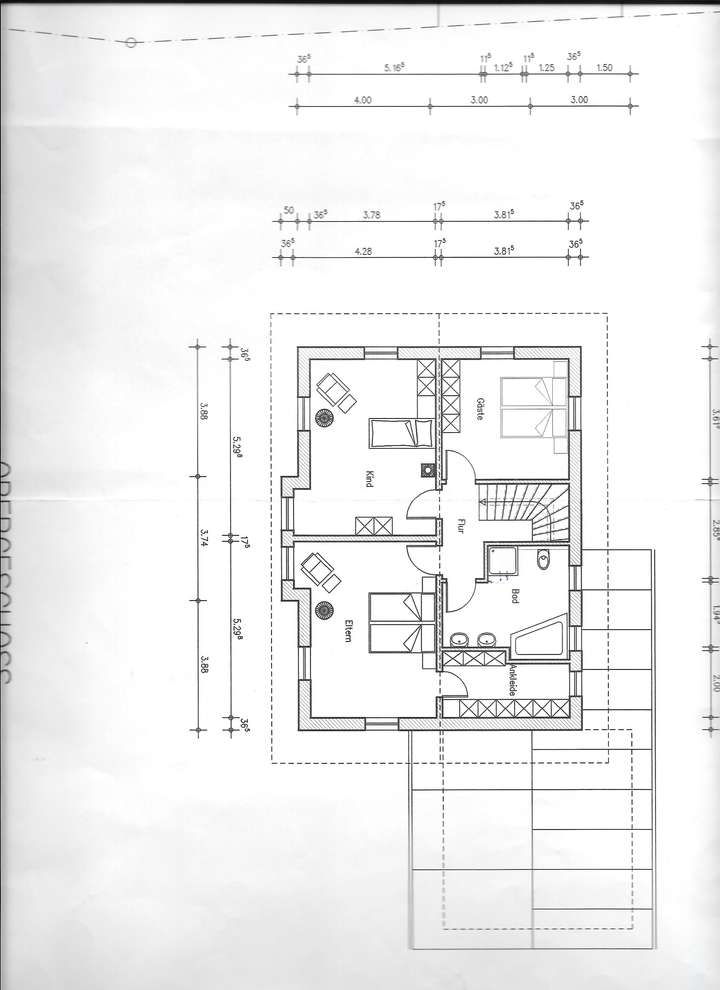
Im Obergeschoss finden Sie 3 großzügige und bis zum Dachstuhl offene Zimmer vor. Das Elternschlafzimmer bietet nebenan einen begehbaren Kleiderschrank. Ein mit 2 Fenstern attraktiv hell gestaltetes Bad rundet im Obergeschoss das Angebot ab.
Der wohnraumähnlich ausgebaute Keller bietet zusätzlichen Stauraum und hat eine Fläche von ca. 79 m². Durch Abgrabungen bieten 2 Kellerräume eine gute Belichtung.
Ein weiteres Highlight des Hauses ist die Energieeffizienzklasse. A+ bestätigt niedrige Energiekosten. Die Wärme wird mit einer Wärmepumpe in Verbindung mit aufwändigen als auch effizienten Erdkollektoren gewonnen. Zur Effizienz tragen auch die aus natürlichen und mineralischen Rohstoffen bestehenden Porenbetonsteine bei.
Das Haus verfügt über zwei Garagen und einen Stellplatz. Ein rund 500 qm großer Garten ist derzeit pflegeleicht angelegt. Hier kann sich jeder Hobbygärtner verwirklichen.
.
Energieeffizientes EFH in traumhafter ruhiger Lage vor den Toren Münchens
83626 Valley
Die vollständige Adresse der Immobilie erhalten Sie vom Anbieter.
Auf Karte anzeigen
Die vollständige Adresse der Immobilie erhalten Sie vom Anbieter.
Finanzierungszertifikat
In nur zwei Minuten zu Ihrem persönlichen Finanzierungszertifkat.
Infos
| Haustyp | Einfamilienhaus |
|---|---|
| Etagenzahl | 3 |
| Wohnfläche ca. | 172 m2 |
| Grundstücksfläche | 655 m2 |
| Bezugsfrei ab | nach Vereinbarung |
| Zimmer | 5 |
| Schlafzimmer | 4 |
| Badezimmer | 2 |
| Garage/Stellplatz | Garage |
| Anzahl Garage/Stellplatz | 3 |
Kosten
| Kaufpreis |
1.295.000 € |
|---|---|
| Provision |
1,785 inkl. MwSt. |
Finanzierungsrechner:
Kaufpreis:
600.000 €
Eigenkapital:
600.000 €
Monatliche Rate
0 €
Effektiver Jahreszins
0 %
Sollzinsbindung
10 Jahre
Bausubstanz & Energieausweis
| Baujahr | 2010 |
|---|---|
| Objektzustand | Neuwertig |
| Qualität der Austattung | Gehoben |
| Heizungsart | Wärmepumpe |
| Wesentliche Energieträger | Strom |
| Energieausweis | liegt vor |
| Energieausweistyp | Verbrauchsausweis |
| Energieverbrauchskennwert | 24,1 kWh/(m²*a) |
| Energieeffizienzklasse | A+ |
24,1
kWh/(m²*a)
Energieeffizienzklasse A+
- A+
- A
- B
- C
- D
- E
- F
- G
- H
- 0
- 25
- 50
- 75
- 100
- 125
- 150
- 175
- 200
- 225
- >250
Beschreibung des Objekts
Ausstattung
Diese Ausstattung wird Sie begeistern:
***geschmackvolle Fliesenböden im Erd- als auch Untergeschoss sowie im Bad
***Fußbodenheizung auf allen Ebenen (bis auf den Vorratsraum im UG sowie der Speis im EG)
***weiße Kunststofffenster mit 3 Scheiben Verglasung
***Tageslicht helles Gäste-WC mit Dusche im EG
***Tageslicht helles Bad mit Wanne, Dusche, WC, Doppelwaschtisch mit Unterschrank und ebenfalls farblich passendem Hängeschrank
***Einbauspots im Essbereich und im Bad
***gepflegte Einbauküche mit Markengeräten
Lage
Grub ist einer der 9 Ortsteile der Gemeinde Valley. Sie liegt am Hochufer der Mangfall (Naturschutzgebiet) und hat somit die Naherholung direkt vor der Haustüre. Zahlreiche Wander- oder Radwege sind in der Umgebung vorhanden.
Der öffentliche Nahverkehr ist über die S-Bahn Station Kreuzstraße in rund 1,5 km erreichbar. Für Schulkinder gibt es entsprechende Schulbuslinien. Eine Kinderkrippe und 2 Kindergärten stehen in Valley bzw. Oberdarching zur Verfügung.
Die nächsten Einkaufsmöglichkeiten befinden sich in rund 3,5 km Entfernung.
Der Glasfaseranschluss liegt bereits im Haus.
Grundriss
Grundriss EG
>
>
Grundriss OG
>
>
Grundriss UG
>
>
Adresse
83626 Valley
Interessante Orte
Preis- und Lageinformationen
Preistrend für Bestandsimmobilien in Valley