Diese bezaubernde Maisonette-Wohnung liegt in der idyllischen Lutherstadt Wittenberg und bietet auf rund 76 m² Wohnfläche ein gemütliches Zuhause in einer ruhigen, grünen Lage. Die Wohnung erstreckt sich über zwei Etagen und eignet sich hervorragend für Singles, Paare oder auch kleine Familien.
Die Wohnung überzeugt mit einem durchdachten Raumkonzept, das auf insgesamt drei gut geschnittene Zimmer verteilt ist. Der großzügige Wohnbereich lädt geradezu dazu ein, gemütliche Abende mit Familie und Freunden zu verbringen oder einfach mal entspannt die Seele baumeln zu lassen. Hier findet jeder seinen Lieblingsplatz, egal ob auf dem Sofa beim Film oder am Esstisch beim gemeinsamen Essen. Das separate Schlafzimmer bietet ausreichend Platz, um nach einem langen Tag Ruhe und Erholung zu finden – ideal, um neue Energie zu tanken.
Ein modernes Badezimmer mit einer neuen Dusche aus dem Jahr 2021 rundet das Gesamtbild perfekt ab und sorgt mit zeitgemäßer Ausstattung für einen komfortablen Start in den Tag. Die Kombination aus pflegeleichten Fliesen- und PVC-Böden verleiht der Wohnung nicht nur einen stilvollen Look, sondern macht die Pflege auch besonders einfach.
Besonders praktisch ist der private Balkon, der zusätzlichen Freiraum bietet und zum Entspannen an der frischen Luft einlädt – sei es für den Morgenkaffee, einen entspannten Feierabend oder zum Gärtnern in kleinem Stil.
Darüber hinaus gibt es einen Kellerraum, der wertvollen Stauraum für Alltagsgegenstände, Sportgeräte oder Vorräte bietet. Für Ihr Fahrzeug steht eine eigene Garage zur Verfügung, die bequemes und sicheres Parken direkt hinter dem Haus ermöglicht.
Und das Beste: Mit einem Hausgeld von nur 210,00 € im Monat ist diese Wohnung nicht nur attraktiv, sondern auch wirtschaftlich äußerst vernünftig – perfekt für alle, die komfortables Wohnen mit einem guten Preis-Leistungs-Verhältnis verbinden möchten.
Nutzen Sie diese einmalige Gelegenheit und erwerben Sie ein Stück Lebensqualität in einer der geschichtsträchtigsten Städte Deutschlands! Kontaktieren Sie uns noch heute, um einen Besichtigungstermin zu vereinbaren.
Exklusive Maisonettewohnung mit Garage in bester Lage von Lutherstadt Wittenberg zu verkaufen
06886 Lutherstadt Wittenberg
Die vollständige Adresse der Immobilie erhalten Sie vom Anbieter.
Auf Karte anzeigen
Die vollständige Adresse der Immobilie erhalten Sie vom Anbieter.
Finanzierungszertifikat
In nur zwei Minuten zu Ihrem persönlichen Finanzierungszertifkat.
Infos
| Wohnungskategorie | Maisonette |
|---|---|
| Etagenzahl | 3 |
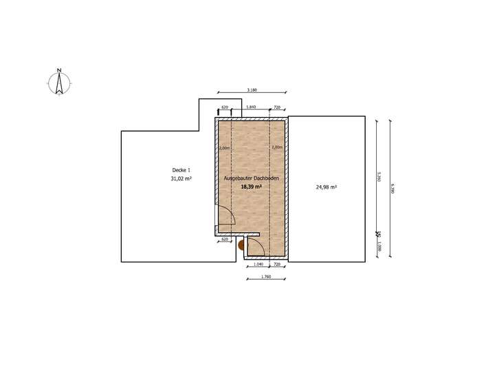
| Wohnfläche ca. | 76 m2 |
| Zimmer | 3 |
| Schlafzimmer | 1 |
| Badezimmer | 1 |
| Anzahl Garage/Stellplatz | 1 |
Kosten
| Kaufpreis |
139.000 € |
|---|---|
| Hausgeld |
210 € |
| Provision |
Käuferprovision 3,57% vom Kaufpreis inklusive MWST |
Finanzierungsrechner:
Kaufpreis:
600.000 €
Eigenkapital:
600.000 €
Monatliche Rate
0 €
Effektiver Jahreszins
0 %
Sollzinsbindung
10 Jahre
Bausubstanz & Energieausweis
| Baujahr | 1997 |
|---|---|
| Qualität der Austattung | Normal |
| Wesentliche Energieträger | Erdgas schwer |
| Energieausweis | liegt vor |
| Energieausweistyp | Verbrauchsausweis |
| Energieverbrauchskennwert | 157,9 kWh/(m²*a) |
| Energieeffizienzklasse | E |
157,9
kWh/(m²*a)
Energieeffizienzklasse E
- A+
- A
- B
- C
- D
- E
- F
- G
- H
- 0
- 25
- 50
- 75
- 100
- 125
- 150
- 175
- 200
- 225
- >250
Beschreibung des Objekts
Ausstattung
- inkl. Stellplatz, Garage
- inkl. Kellerraum
- Balkon wurde 2024 saniert
- Neuer Bodenbelag 2021
- Bad mit Fenster, Dusche und Wanne
- Glasfaser-Ausbau in Planung (1&1)
- Bis DSL 250 MBit/s möglich
- Hausgeld 210€/Monat
Lage
Diese exklusive Maisonette-Wohnung befindet sich in einer der begehrtesten Gegenden von Lutherstadt Wittenberg, der geschichtsträchtigen Stadt in Sachsen-Anhalt, die weltweit als Geburtsort der Reformation bekannt ist. Die Umgebung besticht durch ihre reiche Kultur und Geschichte, die sich in den prächtigen Bauwerken, den charmanten Straßen und den traditionellen Fachwerkhäusern widerspiegelt.
Das Viertel bietet eine Fülle von Annehmlichkeiten, darunter gemütliche Cafés, erstklassige Restaurants und zahlreiche Einkaufsmöglichkeiten, die alle nur einen kurzen Spaziergang entfernt sind. In unmittelbarer Nähe befinden sich auch mehrere Parks, die perfekte Orte für Entspannung und Freizeitaktivitäten im Freien bieten.
Die Verkehrsanbindung ist hervorragend, mit einfachen Zugängen zu den öffentlichen Verkehrsmitteln, die eine schnelle Verbindung zum Stadtzentrum und den umliegenden Städten gewährleisten. Dies macht die Lage ideal für Berufspendler und all jene, die die perfekte Balance zwischen urbanem Leben und wohltuender Ruhe suchen.
Die Nachbarschaft ist bekannt für ihr lebendiges Gemeinschaftsleben und bietet zahlreiche kulturelle Veranstaltungen und Aktivitäten das ganze Jahr über. Die Nähe zu Schulen, medizinischen Einrichtungen und Bildungseinrichtungen macht diese Lage besonders attraktiv für Familien und Berufsanfänger gleichermaßen.
Insgesamt bietet diese Maisonette-Wohnung nicht nur ein hochwertiges Wohngefühl, sondern auch die Vorzüge einer strategisch ideal gelegenen Adresse in einer der historischsten Städte Deutschlands.
Sonstige Angaben
Sämtliche Angaben und Darstellungen beruhen auf Angaben Dritter. Daher kann ein Inhaltsirrtum, trotz sorgfältig geprüfter Informationen, nicht ausgeschlossen werden. Wir als Makler sind nicht verpflichtet, die Richtigkeit der vom Auftraggeber erhaltenen Angaben zu überprüfen, eigene Erkundigungen einzuholen oder eigene Ermittlungen anzustellen. Deshalb wird für die hier im Exposé gemachten Angaben keine Gewähr übernommen. Zwischenverkauf und Preisänderungen bleiben ausdrücklich vorbehalten. Es wird hier explizit darauf hingewiesen, dass wir als Makler sowohl für den Verkäufer als auch für den Käufer provisionspflichtig tätig sind. Dabei ist unsere Maklertätigkeit für den Verkäufer vermittelnd und den Käufer nachweisend. Sollen wir für beide Seiten vermittelnd tätig sein, bedarf dies der beiderseitigen schriftlichen Erklärung.
Es wird vor einer Besichtigung gewünscht, dass Interessenten die potenzielle Finanzierbarkeit des Kaufpreises umsetzen können. Es ist im allgemeinen Interesse, nur mit bonitätsgeprüften Interessenten eine Besichtigung durchzuführen.
Hinweise zum Abruf von Objektunterlagen
Die von uns bereitgestellten Objektunterlagen und Fotos sind nur für Sie als Immobilieninteressent persönlich bestimmt. Eine Weitergabe an Dritte ist nur mit unserer ausdrücklichen Zustimmung möglich und vorher schriftlich einzuholen. Alle Gespräche sind über unser Büro zu führen.
Sollten mehrere Interessenten die Immobilie kaufen wollen, werden wir den Verkauf aus Gründen der Chancengleichheit in einem transparenten und fairen Prozessablauf abschließen, mit Hilfe des digitalen Angebotsverfahrens.
Wir freuen uns, Ihnen ein Komplettpaket mit Service- und Finanzdienstleistungen anbieten zu können. Das erspart Zeit und Aufwand.
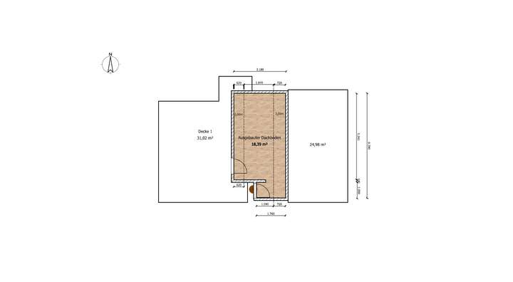
Grundriss
Grundriss 3. Etage
>
>
Grundriss DG
>
>
Adresse
06886 Lutherstadt Wittenberg
Interessante Orte
Preis- und Lageinformationen
Preistrend für Bestandsimmobilien in Lutherstadt Wittenberg