Wenn Sie Altbaucharakter bevorzugen, sich selbst verwirklichen wollen und handwerkliches Geschick mitbringen, dann sind Sie wahrscheinlich der ideale Nachfolger für unser neuestes Anwesen:
Wir verkaufen ein ehemals bäuerliches Handwerkeranwesen in einem Ortsteil von Tauberbischofsheim.
Wohnhaus - Lagerhalle - Gewölbekeller - Garagen
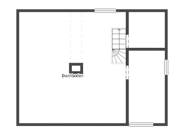
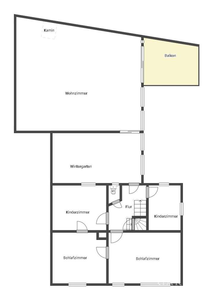
Das im Jahre 1908 erbaute Hauptgebäude bietet Ihnen mit einer Wohnfläche von ca. 190 qm reichlich Platz für die ganze Familie. Sie werden die Größe auf den ersten Blick gar nicht erkennen, denn viel Platz versteckt sich hinter der Straßenfassade: 2002 wurde aus der früheren Dachterrasse über den Garagen ein Wintergarten und ein großzügiges Wohnzimmer mit Kaminofen. Das ist in unseren Augen ein absolutes Highlight. Das noch nicht ausgebaute Dachgeschoss eröffnet Ihnen die Möglichkeit aus dem Wohnhaus ein Generationenhaus zu machen. Die Betonung liegt auf Machen, denn angepackt werden muss. Worüber wir auch schreiben sollten, das ist die Lagerhalle, denn die hat wirklich das Potenzial für eine große Werkstatt, ein platzeinnehmendes Hobby oder für das, was uns gerade nicht durch den Kopf geht, in Ihrem aber schon verankert ist.
Das Grundstück ist mit 359 qm nicht atemberaubend groß. Wer sich zu Ackerbau und Viehzucht berufen fühlt, der wird hier sicher nicht glücklich. Aber wir versprechen Ihnen: Für ein Kräuterbeet und die klassische Hauskatze gibts allemal genug Platz.
Die Immobiliendaten auf einen Blick:
- Baujahr 1908
- ca. 190 qm Wohnfläche
- 359 qm Grundstück
- 2002 Umbau Dachterrasse zu Wintergarten und Wohnzimmer
- Dach 2005 erneuert und z.T. gedämmt - ausbaufähig
- Zwei große Gewölbekeller
- Nebengebäude als ehemaliges Getränkelager mit ca. 128 qm Fläche
- Doppelgarage
- Balkon
- Isolierverglaste Holzrahmenfenster aus 70er, im DG von 2005
- Elektrische Wärmespeicheröfen
- Bad vor ca. 20 Jahren erneuert
Wenn wir Ihr Interesse wecken konnten, dann rufen Sie uns gerne an uns vereinbaren Sie einen Besichtigungstermin mit uns.
Historisches Schmuckstück mit Potenzial
97941 Tauberbischofsheim
Die vollständige Adresse der Immobilie erhalten Sie vom Anbieter.
Auf Karte anzeigen
Die vollständige Adresse der Immobilie erhalten Sie vom Anbieter.
Finanzierungszertifikat
In nur zwei Minuten zu Ihrem persönlichen Finanzierungszertifkat.
Infos
| Haustyp | Einfamilienhaus |
|---|---|
| Etagenzahl | 3 |
| Wohnfläche ca. | 190 m2 |
| Grundstücksfläche | 359 m2 |
| Bezugsfrei ab | ab sofort |
| Zimmer | 7 |
| Badezimmer | 1 |
| Garage/Stellplatz | Garage |
| Anzahl Garage/Stellplatz | 2 |
Kosten
| Kaufpreis |
260.000 € |
|---|---|
| Provision |
3,57 % inkl. ges. MwSt. Die Maklercourtage für den Käufer beträgt 3 % aus dem Kaufpreis zuzüglich der gesetzlichen MwSt., somit gesamt 3,57 %. |
Finanzierungsrechner:
Kaufpreis:
600.000 €
Eigenkapital:
600.000 €
Monatliche Rate
0 €
Effektiver Jahreszins
0 %
Sollzinsbindung
10 Jahre
Bausubstanz & Energieausweis
| Baujahr | 1908 |
|---|---|
| Bauphase | Haus fertig gestellt |
| Objektzustand | Renovierungsbedürftig |
| Qualität der Austattung | Einfach |
| Heizungsart | Nachtspeicherofen |
| Wesentliche Energieträger | Strom |
| Energieausweis | liegt vor |
| Energieausweistyp | Bedarfsausweis |
| Energieverbrauchskennwert | 198,6 kWh/(m²*a) |
| Energieeffizienzklasse | F |
198,6
kWh/(m²*a)
Energieeffizienzklasse F
- A+
- A
- B
- C
- D
- E
- F
- G
- H
- 0
- 25
- 50
- 75
- 100
- 125
- 150
- 175
- 200
- 225
- >250
Beschreibung des Objekts
Lage
Das Anwesen befindet sich in einem Ortsteil von Tauberbischofsheim, der Kreisstadt des Main-Tauber-Kreises.
In Tauberbischofsheim finden Sie alles, was Sie zum täglichen Bedarf brauchen. Der Ortsteil selbst verfügt über einen Kindergarten, Biergarten sowie einen Bahnhof, der einen Haltepunkt der Bahnstrecke Lauda - Wertheim darstellt. Zudem pflegt der Ort ein reges Vereinsleben und wird durch den Radweg "Liebliches Taubertal" durchquert.
Die Autobahnanschlussstelle an die A81 ist mit dem Auto in Kürze erreicht.
Sonstige Angaben
Energiebedarfsausweis Energiekennwert: 198,64 kWh/(qm*a) Energieeffizienz: Klasse F (kl.200) Heizung: Nachtspeicheröfen mit Strom Baujahr laut Energieausweis: 1908
2 x Garage, 1 x Stellplatz außen
Grundriss
Untergeschoss
>
>
Erdgeschoss
>
>
Erdgeschoss
>
>
Obergeschoss
>
>
Dachgeschoss
>
>
Adresse
97941 Tauberbischofsheim
Interessante Orte
Preis- und Lageinformationen
Preistrend für Bestandsimmobilien in Tauberbischofsheim