Alles Erdenkliche für ein anspruchsvolles Wohnen auf einer Etage. Dieser Wunsch könnte mit diesem exklusiven Neubau- Walmdachbungalow wahr werden!
In unserem beliebten Kur- und Ferienort Bad Zwischenahn steht in zentrumsnaher Lieblings- Wohnlage dieser exklusive Walmdachbungalow mit Carport zur langfristigen Vermietung an. Diese imposante Neubau- Immobilie ist mit viel Liebe zum Detail, durchdachtem Konzept, hochwertigsten Materialien sowie architektonischer Glanzleistung errichtet worden.
Luxus und Komfort sind die selbstverständlichen Charaktereigenschaften dieser anspruchsvollen Immobilie. Der exzellente Wohnwert, die herausragenden Ausstattungsmerkmale in höchster Qualität, eine imponierende Raumaufteilung sowie die beliebte Lage in zentrumsnaher Lage unseres Kurortes sind nur wenige Highlights die Sie begeistern werden.
Der erstklassige Neubau- Bungalow bietet Ihnen auf einer Etage einen lichtdurchfluteten Wohn- und Essbereich mit ansprechendem Gaskamin als optisches Highlight, einen offen gestalteten Kochbereich inkl. exklusiver Einbauküche, ein großzügiges Schlafzimmer mit Einbau- Kleiderschrank, ein geräumiges Gästezimmer/ Büro, ein imposantes Wohnfühl- Duschbad mit begehbarer Regen- Dusche (Infrarot- Wärmekabine möglich), ein modernes Gäste- WC, eine einladende Eingangsdiele mit Garderobenbereich (Einbauschrank kann übernommen werden), ein praktikabler Hauswirtschaftsraum mit Einbauschränken sowie Nebeneingang zum Carport. Vom Wohn- und Essbereich gelangen Sie auf die große Südterrasse mit komplett angelegtem Gartenbereich. Der Terrassenbereich beeindruckt durch einen geschützt liegenden großzügigen Sommergarten mit Beschattungsanlage und Schiebeelementen. Abgerundet wird dieses einmalige Mietangebot durch eine Carport- Anlage mit Elektro-Wallbox sowie angrenzendem Geräteraum für Fahrräder und Gartengeräte sowie durch den Dachbodenbereich als Abstellfläche.
Luxuriöser Neubau- Walmdachbungalow mit Erdwärmetechnik, Gaskamin u. Einbauküche in Bad Zwischenahn
26160 Bad Zwischenahn
Die vollständige Adresse der Immobilie erhalten Sie vom Anbieter.
Auf Karte anzeigen
Die vollständige Adresse der Immobilie erhalten Sie vom Anbieter.
Infos
| Haustyp | Bungalow |
|---|---|
| Wohnfläche ca. | 124 m2 |
| Nutzfläche | 24 m2 |
| Grundstücksfläche | 650 m2 |
| Bezugsfrei ab | 01.12.2025 |
| Zimmer | 3 |
| Schlafzimmer | 2 |
| Badezimmer | 1 |
| Haustiere | Nein |
| Garage/Stellplatz | Carport |
| Anzahl Garage/Stellplatz | 1 |
Kosten
| Kaltmiete |
1.650 € |
|---|---|
| Nebenkosten | + 460 € |
| Heizkosten | in Nebenkosten enthalten |
| Gesamtmiete | 2.110 € |
| Kaution o. Genossenschaftsanteile | 3 Monatskaltmieten |
Weiter mieten oder doch kaufen?
Wer in Miete wohnt, überweist dem Vermieter im Laufe der Jahre hohe Summen, die sich
auch in die eigenen vier Wände investieren lassen könnten.
Bausubstanz & Energieausweis
| Baujahr | 2022 |
|---|---|
| Objektzustand | Neuwertig |
| Qualität der Austattung | Luxus |
| Heizungsart | Fußbodenheizung |
| Wesentliche Energieträger | Erdwärme |
| Energieausweis | liegt zur Besichtigung vor |
Beschreibung des Objekts
Ausstattung
• das Gebäude wurde gemäß den Richtlinien der aktuellen Energiesparverordnung erstellt (Niedrigenergiehaus (KfW 55- Haus))
• Es wurden hochwertige und bewährte Kunststofffenster (außen in anthrazit/ innen in weiss) verbaut. Zur besseren Wärme- und Schalldämmung wurde eine Drei- Scheiben-Isolierverglasungen gem. Wärmeberechnung eingesetzt. Die Fenster bestehen zum Teil aus Drehflügeln und feststehenden Elementen.
• großes Schiebefenster zum Sommergarten
• sämtliche Fenster mit elektrisch betriebenen Außenrollläden ausgestattet
• Innen- Fensterbänke aus Aglo-Marmor, Außen- Fensterbänke aus Klinker bzw. Aluminium anthrazit
• Dachbodenbereich dient als Abstellfläche; über eine Bodeneinschubtreppe vom Gästezimmer aus begehbar
• Hauseingangstür ebenfalls in Kunststoffausführung (außen= anthrazit/ innen= weiss) mit Glasausschnitt und Wärmeschutzverglasung
• die stilvollen Innentüren mit entsprechender Holzzarge wurden als helle Qualitätstüren mit Edelstahl- Drückergarnitur verbaut.
• Die Versorgung der Immobilie mit Heizenergie und Warmwasser erfolgt durch eine zukunftsfähige Erd- Wärmepumpe für niedrigen Energiebedarf und hohen Wärmekomfort. Weiterhin wurde ein Warmwasserspeicher eingebaut. Alle Zimmer sind mit einer Fußbodenheizung mit Einzelraumsteuerung
• Photovoltaik- Anlage mit Speicher auf der Dachfläche installiert
• Lüftungsanlage mit Wärmerückgewinnung (Vorteile: ideale Raumluftfeuchte das ganze Jahr über, Pollen und Giftstoffe in der Luft gelangen erst gar nicht in die Wohnung und durch immer frische Luft bleibt Schimmelbefall aus)
• Die Fußböden im Haus sind mit einem einheitlichen Fliesenfußboden in Holzoptik mit dazu passenden Fußleisten versehen (ausgenommen Badbereiche)
• alle Zimmer sind im Wand- und Deckenbereich mit einer Feinvlies- Tapezierung mit einem weißen Anstrich versehen
• Kochbereich mit einer erstklassigen Einbauküche mit weißen Hochglanzfronten und dunkler Arbeitsplatte inkl. hochwertigen SIEMENS- Elektrogeräten ausgestattet (bereits im angegebenen Mietpreis enthalten)
• optisch ansprechender Gaskamin als Mittelpunkt im Wohn- und Esszimmer sorgt für ein zauberhaftes Ambiente
• der Badbereich ist gestaltet mit anthrazitfarbenen Bodenfliesen sowie einer sandgrauen Wandfliese, Ausstattung mit einer großen begehbaren Dusche mit Echtglas- Duschtür und Regendusche, einem modernen Doppel- Waschtisch mit Unterschrank sowie beleuchtetem Spiegelschrank, wandhängendem WC sowie Handtuchheizkörper (Sanitärobjekte in weiss)
• im Badbereich sind der Platz als auch die Anschlüsse für die Installation einer Infrarot- Wärmekabine vorgesehen
• das Gäste-WC ist ebenfalls gestaltet mit anthrazitfarbenen Bodenfliesen sowie sandgrauen Wandfliesen, Ausstattung mit Design- Waschtischanlage mit Unterschrank und beleuchtetem Spiegel sowie wandhängendem WC (Sanitärobjekte in weiss)
• Sommergarten zur Größe von 6,0 m x 4,0 m wurde mit einer Verglasung versehen- so entsteht ein geschützter, wintergartenähnlicher Platz; Die Verglasung lässt sich zu allen Seiten hin öffnen; innenliegende Markise mit elektrischem Antrieb und Beleuchtung
• das Haus ist mit einer umfassenden Elektroausstattung ausgerüstet
• für eine stimmungsvolle Beleuchtung wurden im Deckenbereich überwiegend abgestimmte LED- Deckenstrahler installiert
• das Schlafzimmer wurde mit einem maßangefertigtem Einbau- Kleiderschrank in Tischlerqualität versehen
• Waschmaschinen- und Trockneranschluss im Hauswirtschaftsraum vorhanden; weiterhin ist der Hauswirtschaftsraum mit Einbaumöbeln ausgestattet
• Carport- Anlage unmittelbar am Haus mit angrenzendem Geräteraum für Fahrräder bzw. Gartengeräten
• moderne Wallbox zum schnellen Laden für Elektrofahrzeuge
• die Außenanlagen werden den gehobenen Wohnanspruch der Immobilie unterstreichen. Das Gartengrundstück wurde in liebevoller Weise angelegt und von einem Gärtner betreut und gepflegt.
Lage
Dieser exklusiv ausgestattete, ebenerdige Walmdachbungalow mit Carport- Anlage und imposanter Ausstattung liegt in begehrter und zentrumsnaher Wohnlage in Bad Zwischenahn. In wenigen Minuten gelangen Sie fußläufig zu allen Annehmlichkeiten, die dieser Ort zu bieten hat (die Flaniermeile, das Zwischenahner Meer, zahlreiche Cafés und Restaurants). Alle Einkaufsmöglichkeiten und weitere Dienstleistungen, Ärzte, Apotheken, der Bahnhof etc. und sind in wenigen Schritten zu erreichen.
In nur wenigen Autominuten erreichen Sie das Zwischenahner Meer sowie weitere Attraktionen von Bad Zwischenahn u.a. den Park der Gärten, das Gourmet-Restaurant APICIUS (1 Michelin- Stern), den Golfplatz sowie den Sport-Segelflughafen. Bad Zwischenahn wird Sie begeistern und Sie werden sich vom ersten Moment an vertraut und wie zuhause fühlen. An einem der schönsten Seen Deutschland, dem Zwischenahner Meer, können Sie sich erholen, das milde Klima genießen und auf Entdeckertour gehen.
Sonstige Angaben
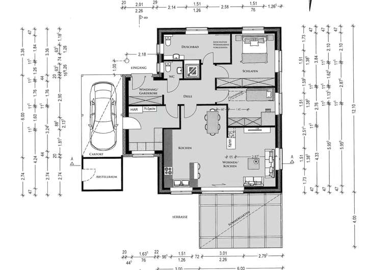
Walmdachbungalow - Erdgeschoss
lichtdurchfluteter Wohn- und Essbereich mit Gaskamin sowie mit offenem Kochbereich inkl. neuer Einbauküche, praktikabler Hauswirtschaftraum, großzügiges Schlafzimmer mit Einbau- Kleiderschrank, moderner Badbereich mit Regendusche, geräumiges Gästezimmer/ Büro, elegantes Gäste- WC sowie Eingangsdiele mit Garderobenbereich
Vom Wohn-, Ess- und Kochbereich aus gelangen Sie in den geschützt liegenden Sommergarten in Südausrichtung (zu allen Seiten hin zum Öffnen mit elektrischer Markise und Beleuchtung)
Carport mit angrenzendem Geräteraum
Dachboden als Abstellfläche
Grundriss
Grundriss Bungalow
>
>
Adresse
26160 Bad Zwischenahn
Interessante Orte
Preis- und Lageinformationen
Preistrend für Bestandsimmobilien in Bad Zwischenahn