Zum Verkauf steht ein helles und modernes Architektenhaus in ruhiger und familienfreundlicher Lage von Hamburg-Boberg. Das im Jahr 1989 erbaute Einfamilienhaus bietet auf rund 154 m² Wohnfläche viel Raum für Wohnen, Arbeiten und Familienleben.
Das Highlight ist das ca. 53 m² große Wohnzimmer mit Kamin und einer beachtlichen Deckenhöhe von 2,80 m im Erdgeschoss – ein offenes Raumgefühl, das nur selten zu finden ist.
Das Haus überzeugt durch seine großzügige Aufteilung, helle Räume und eine zeitlose Architektur, die auch heutigen Ansprüchen an modernes Wohnen gerecht wird.
Grundstück & Erbpacht
Das Haus steht auf einem 645 m² großen Erbpachtgrundstück der Freien und Hansestadt Hamburg.
Ein entscheidender Vorteil:
Der Erbpachtzins wurde bereits bis 2063 vollständig im Voraus bezahlt – es fallen daher keine zusätzlichen jährlichen Erbpachtkosten an.
Informationen zur Erbpacht in Hamburg
* Das Grundstück muss nicht gekauft werden – Sie erwerben das Haus und das Nutzungsrecht am Grundstück.
* Erbpachtverträge sind langfristig (in der Regel 60–99 Jahre) und rechtlich abgesichert.
* In Hamburg ist diese Form der Grundstücksnutzung weit verbreitet, insbesondere bei städtischen Grundstücken.
Vorteile für junge Familien
Kein sofortiger Grundstückskauf erforderlich – das Kapital kann anderweitig genutzt werden (z. B. für Modernisierung, Einrichtung oder Familienprojekte).
Planungssicherheit durch den bereits bezahlten Erbpachtzins bis 2063.
Familienfreundliche Lage mit Garten und viel Platz.
Fazit
Ein besonderes Angebot: Dieses Einfamilienhaus verbindet großzügiges Wohnen, eine attraktive Lage im grünen Hamburg-Boberg und die Vorteile eines bereits bezahlten Erbpachtgrundstücks. Eine ideale Gelegenheit für junge Familien, die ein helles, modernes und bezahlbares Zuhause suchen.
Großzügiges Architektenhaus im Herzen von Boberg
21033 Hamburg
Die vollständige Adresse der Immobilie erhalten Sie vom Anbieter.
Auf Karte anzeigen
Die vollständige Adresse der Immobilie erhalten Sie vom Anbieter.
Finanzierungszertifikat
In nur zwei Minuten zu Ihrem persönlichen Finanzierungszertifkat.
Infos
| Haustyp | Einfamilienhaus |
|---|---|
| Etagenzahl | 3 |
| Wohnfläche ca. | 154 m2 |
| Nutzfläche | 51 m2 |
| Grundstücksfläche | 645 m2 |
| Zimmer | 4,5 |
| Schlafzimmer | 3 |
| Badezimmer | 1 |
| Garage/Stellplatz | Carport |
| Anzahl Garage/Stellplatz | 2 |
Kosten
| Kaufpreis |
675.000 € |
|---|---|
| Provision |
3,57% inkl. MwSt. vom Käufer zu zahlen. |
Finanzierungsrechner:
Kaufpreis:
600.000 €
Eigenkapital:
600.000 €
Monatliche Rate
0 €
Effektiver Jahreszins
0 %
Sollzinsbindung
10 Jahre
Bausubstanz & Energieausweis
| Baujahr | 1989 |
|---|---|
| Objektzustand | Vollständig Renoviert |
| Heizungsart | Zentralheizung |
| Wesentliche Energieträger | Gas |
| Energieausweis | liegt vor |
| Energieausweistyp | Verbrauchsausweis |
| Energieverbrauchskennwert | 187,6 kWh/(m²*a) |
| Energieeffizienzklasse | F |
187,6
kWh/(m²*a)
Energieeffizienzklasse F
- A+
- A
- B
- C
- D
- E
- F
- G
- H
- 0
- 25
- 50
- 75
- 100
- 125
- 150
- 175
- 200
- 225
- >250
Beschreibung des Objekts
Ausstattung
* Wohnfläche ca. 150 m²
* Grundstücksgröße ca. 645 m² (Erbpacht)
* Baujahr 1989
* Großzügiges Wohnzimmer (ca. 53 m²) mit Kamin
* Deckenhöhe im Erdgeschoss: ca. 2,80 m
* Helle, moderne Architektur mit viel Tageslicht
* Gepflegter Garten mit viel Platz für Kinder, Freizeit und Erholung
Sonstiges
* Erbpachtgeber: Freie und Hansestadt Hamburg
* Erbpachtzins: bereits vollständig bezahlt bis 2063
* Übergabe nach Vereinbarung
Lage
Hamburg-Boberg liegt im grünen Südosten Hamburgs und bietet die perfekte Mischung aus Natur und guter Anbindung.
* Nahe der Boberger Niederung mit Wiesen, Wäldern und Boberger Dünen – ideal für Spaziergänge, Sport und Freizeit.
* Einkaufsmöglichkeiten, Schulen und Kitas befinden sich in unmittelbarer Umgebung.
* Gute Anbindung an den öffentlichen Nahverkehr sowie an die Hamburger Innenstadt.
Sonstige Angaben
Bitte haben Sie dafür Verständnis, dass wir die Vermarktung des angegebenen Objektes für alle Beteiligten so angenehm wie möglich gestalten möchten. Daher werden wir Exposéanfragen nur beantworten, wenn Sie uns Ihre vollständige Adresse und eine Telefonnummer nennen. Besichtigungen werden nur und ausschließlich über unser Büro organisiert. Bitte betreten Sie unter keinen Umständen das Grundstück alleine ohne Begleitung durch einen unserer Makler.
Für den Käufer fällt beim Kauf eine Maklercourtage i.H.v. 3,57% inkl. MwSt. an. Sie ist verdient und fällig bei Abschluss des notariellen Kaufvertrages. Es wurde über das Objekt ein provisionspflichtiger Maklervertrag in gleicher Höhe mit dem Verkäufer geschlossen.
Als Immobilienmaklerunternehmen ist die Firma Springfeld & Oelkers Immobilien GmbH nach § § 1, 2 Abs. 1 Nr. 10, 4 Abs. 3 Geldwäschegesetz (GwG) dazu verpflichtet, vor Begründung einer Geschäftsbeziehung die Identität des Vertragspartners festzustellen und zu überprüfen. Hierzu ist es erforderlich, dass wir die relevanten Daten Ihres Personalausweises festhalten – beispielsweise mittels einer Kopie. Bei juristischen Personen/Firmen ist der Handelsregisterauszug vorzulegen.
Wir bedanken uns für Ihr Verständnis. Das Geldwäschegesetz (GwG) sieht vor, dass der Makler die Kopien bzw. Unterlagen fünf Jahre aufbewahren muss.
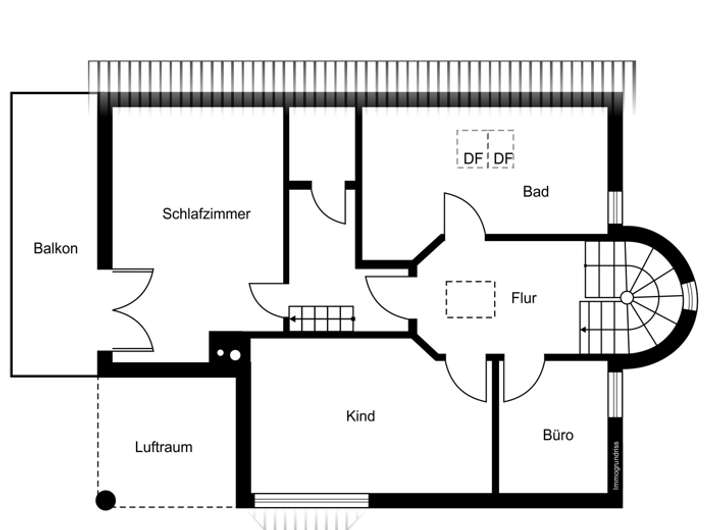
Grundriss
Grundriss EG
>
>
Grundriss OG
>
>
Adresse
21033 Hamburg
Interessante Orte
Preis- und Lageinformationen
Preistrend für Bestandsimmobilien in Lohbrügge