Ideal zum Wohnen, Arbeiten und für Gäste bietet dieses Haus jede Menge Raum. Sie gestalten es ganz nach Ihren Bedürfnissen.
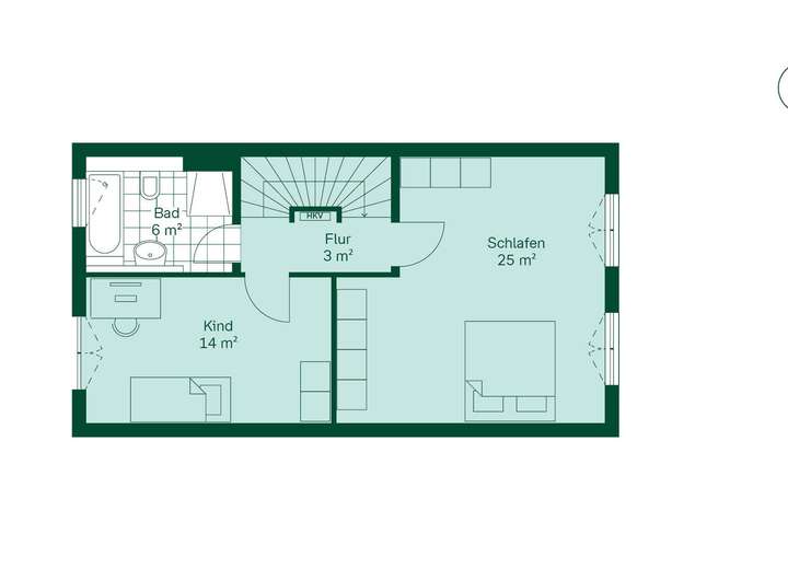
Diese moderne Doppelhaushälfte bietet Ihnen maximalen Wohnkomfort. Im Souterrain erwartet Sie ein großes und helles Arbeitszimmer. Die angrenzende Terrasse ist ideal für entspannte Abende im Freien. Ein großzügiger Wohnbereich mit offener Küche im Erdgeschoss sorgt für ausreichend Platz, um sich zu entfalten. Im Obergeschoss befinden sich zwei helle und freundliche Zimmer. Das moderne Tageslichtbad mit Badewanne und bodengleicher Dusche schafft eine natürliche Atmosphäre. Homeoffice, Gästezimmer oder kreativer Raum - das ausgebauten Studio mit umlaufender Dachterrasse bietet Ihnen vielfältige Nutzungsmöglichkeiten. Sicher und wettergeschützt parken Sie ihr Auto in der Garage direkt neben dem Haus.
Finanzierungszertifikat
In nur zwei Minuten zu Ihrem persönlichen Finanzierungszertifkat.
Infos
| Haustyp | Doppelhaushaelfte |
|---|---|
| Wohnfläche ca. | 162 m2 |
| Nutzfläche | 38,36 m2 |
| Grundstücksfläche | 254 m2 |
| Bezugsfrei ab | September 2026 |
| Zimmer | 5 |
| Schlafzimmer | 3 |
| Badezimmer | 1 |
| Garage/Stellplatz | Garage |
| Anzahl Garage/Stellplatz | 2 |
Kosten
| Kaufpreis |
669.900 € |
|---|---|
| Provision | Nein |
Finanzierungsrechner:
Kaufpreis:
600.000 €
Eigenkapital:
600.000 €
Monatliche Rate
0 €
Effektiver Jahreszins
0 %
Sollzinsbindung
10 Jahre
Bausubstanz & Energieausweis
| Baujahr | 2025 |
|---|---|
| Bauphase | Haus im Bau |
| Objektzustand | Erstbezug |
| Qualität der Austattung | Gehoben |
| Heizungsart | Fußbodenheizung |
| Wesentliche Energieträger | expose.parameter.energySourcesEnev2014.HEAT_SUPPLY |
Beschreibung des Objekts
Ausstattung
- Massivhaus als Effizienzhaus 55
- unterkellert
- inklusive erschlossenem Grundstück von 254 m²
- großzügig Wohnen über 4 Etagen
- heller Wohnbereich mit offener Küche
- Fußbodenheizung
- tolles Dachstudio
- Dachterrasse und Terrasse
- Gäste-WC mit Fenster
- Familienbad mit Fenster
- Isolierglas-Fenster
- elektrische Rollläden
- Badewanne und bodengleiche Dusche
- Handtuchheizkörper
- großer Hauswirtschaftsraum
- sehr helles Gäste- oder Arbeitszimmer im Untergeschoss
- Garage und Außenstellplatz
Lage
Wenige Minuten laufen Sie zum Ruhr-Ufer und dem Leinpfad, einem beliebten Spazier- und Radweg entlang der Ruhr. Die hübsche Hattinger Altstadt liegt nur 2 km entfernt. Zum nächsten Discounter sind es nur 450 Meter und zum Landschaftspark Henrichshütte radeln Sie etwa 10 Minuten.
Sonstige Angaben
*Unsere Sparaktion für kurze Zeit:
Wir schenken wir Ihnen den Ausbau eines zusätzlichen Zimmers im Obergeschoss. Durch clevere Raumteilung entsteht so ein weiteres Zimmer – ideal für Ihren Nachwuchs, für Gäste oder als Arbeitszimmer. Unser Angebot gilt bei notariellem Kauf im Aktionszeitraum vom 20.10.2025 bis 31.12.2025.
Adresse
Im Westenfeld 35, 45529 Hattingen
Interessante Orte
Preis- und Lageinformationen
Preistrend für Bestandsimmobilien in Hattingen