EIN HAUS MIT KUNST- UND URLAUBSFLAIR:
Das liebevoll geplante Wohnhaus wurde ca. 1968 in damals sehr zeitgemäß-moderner Bauweise errichtet und bietet auf einem ca. 1715m² Grundstück sowie mit ca. 178 m² Wohnfläche (plus ca. 120 m² Hobby- Nutzfläche in der ehemaligen Praxis) ein großes Maß an Wohnkomfort. Mit vielen kreativen und geschmackvollen Raffinessen sowie 2 Vollbädern plus zwei Gäste-WC, vielfältigen Ausblicken zum Außenraum und einer Küche mit halboffenem Übergang zum Essbereich (nebst überdachtem Patio-Essplatz) und einem großen Wohnzimmer, wird es selbst hohen Wohnansprüchen gerecht, während das fast uneinsehbare Grundstück den perfekten Ort für einen Rückzug aus dem Alltag darstellt und die Praxis sich als Atelier/Arbeitsbereich eignet.
Kaum sind Sie in das Haus eingetreten, empfängt Sie - hinter der Treppe – der weite, in Summe ca. 80 m² großer Wohn-Essbereich, der in Teilen über eine weitläufige Glasfront oder bodentiefe Fenster Blicke in den Garten mit angrenzender Terrasse frei gibt. Mit ca. 3,00 m Deckenhöhe – als Wohnzone zwischen Terrasse und Essbereich – und angrenzenden Flächen, ist dieses Areal das Herzstück des Hauses.
Vorgelagert – ebenfalls auf EG-Ebene – liegen neben dem Eingangsbereich des Hauses: eine Einbau-Garderobe im Stil der 1960er sowie angrenzend ein Gäste-WC mit Fenster. Der überdachte Essplatz (ehemals Patio), bildet den Übergang zum Garten vom Essbereich, und lässt sich in den Herbst-Wintermonaten stimmungsvoll beleuchten oder kann in den kühleren Monaten als Wintergarten genutzt werden. Von hier lässt sich die Terrasse mit einem Ofen und Außenkamin betreten, die das ganz Jahr für Urlaubsfeeling sorgt. Ergänzt wird das Raumprogramm des EG durch die Küche, die zum Kochen einlädt und sich ggf. auch zum Essplatz hin öffnen lässt. Über ein Büro im EG hinaus befinden sich drei weitere Zimmer und ein Wannen-Duschbad im OG. Zudem bieten eine Terrasse im OG, eine Doppelgarage, ein Doppelcarport und 8 Stellplätze weiteren Wohnluxus.
WALSRODE - FÜR ARCHITEKTURFANS: HAUS MIT 295 m2 WOHN-/NUTZFLÄCHE PERFEKT ZUM WOHNEN & ARBEITEN
29664 Walsrode
Die vollständige Adresse der Immobilie erhalten Sie vom Anbieter.
Auf Karte anzeigen
Die vollständige Adresse der Immobilie erhalten Sie vom Anbieter.
Finanzierungszertifikat
In nur zwei Minuten zu Ihrem persönlichen Finanzierungszertifkat.
Infos
| Haustyp | Sonstige |
|---|---|
| Etagenzahl | 2 |
| Wohnfläche ca. | 200 m2 |
| Nutzfläche | 200 m2 |
| Grundstücksfläche | 1.715 m2 |
| Bezugsfrei ab | sofort |
| Zimmer | 15 |
| Schlafzimmer | 3 |
| Badezimmer | 2 |
| Garage/Stellplatz | Garage |
| Anzahl Garage/Stellplatz | 2 |
Kosten
| Kaufpreis |
440.000 € |
|---|---|
| Provision |
3,57% |
Finanzierungsrechner:
Kaufpreis:
600.000 €
Eigenkapital:
600.000 €
Monatliche Rate
0 €
Effektiver Jahreszins
0 %
Sollzinsbindung
10 Jahre
Bausubstanz & Energieausweis
| Baujahr | 1966 |
|---|---|
| Letzte Sanierung | 2025 |
| Objektzustand | Renovierungsbedürftig |
| Qualität der Austattung | Normal |
| Heizungsart | Öl-Heizung |
| Wesentliche Energieträger | Öl |
| Energieausweis | liegt vor |
| Energieausweistyp | Bedarfsausweis |
| Energieverbrauchskennwert | 182,0 kWh/(m²*a) |
| Energieeffizienzklasse | F |
182,0
kWh/(m²*a)
Energieeffizienzklasse F
- A+
- A
- B
- C
- D
- E
- F
- G
- H
- 0
- 25
- 50
- 75
- 100
- 125
- 150
- 175
- 200
- 225
- >250
Beschreibung des Objekts
Ausstattung
- Neben dem Haupthaus: ca. 117 m² Praxisfläche mit 5,5 Zimmern und Gäste-WC zum Arbeiten, als Atelier oder für Hobbies/Sport
- GRUNDSTÜCKSFLÄCHE: ca. 1715 m²
- WOHN-PRAXIS-FLÄCHE HAUS: Gesamt: ca. 295 m²
- ca. 178 m² Wohnfläche im Haupthaus mit 5 Zimmern, 2 Terrassen, 2 Bädern und Gäste-WC
- Keller- und Garagenfläche: ca. 85 m²
- Doppelgarage, Doppelcarport und 5-8 Außenstellplätze
- Pool wäre möglich (es gab früher einen)
ENERGIEANGABEN
BJ: ca. 1968 Haupthaus und Praxis ca.1975 als Erweiterung
Energieträger: Öl (Öltanks im Vorgarten)
Klasse: F, Endenergiebedarf: ca. 182 kWh (m2a)
CO2-Emissionen: ca.59 kg/(m2a)
Lage
Wir bieten Ihnen ein herausragendes Haus in idyllischer Lage sowie in einem Goldmedaillendorf auf einem weitläufigen Grundstück an, das zu zwei Seiten über einen unverbauten Blick bietet. Dadurch, dass das Haus rückversetzt auf dem großen Grundstück errichtet wurde, liegt es ruhig und abgeschirmt von der Orts-Durchgangsstraße - in einer verkehrsberuhigten und sehr gehobenen Nebenstraße. Neben einem repräsentativen Haupthaus, verfügt das Haus über einen vorgelagerten Garagentrakt mit zwei Garagen- Stellplätzen, die als Pufferzone zwischen Straße und Einliegerbereich liegt. Zudem gibt es ein Carport mit zwei weiteren überdachten Stellplatzen für Autos, während sich auf dem Grundstück noch ca. 5-8 weitere PKWs parken lassen, so dass das Haus auch für Autofans keine Wünsche offenlässt.
Für anspruchsvolle Kunst und Architekturliebhaber bietet das Gebäude nicht nur einen repräsentativen Lebensmittelpunkt mit hohem Freizeitwert und Privatsphäre – sondern auch viel Platz für individuelles Wohnen und Arbeiten. Zum ca. 1715m² großen Grundstück wurde seitens der Stadt Walsrode die Nutzung des Nebengebäudes (ehemals Praxis) offengelassen, so dass sich das Gebäude auch als (Kunst-) Atelier, (Architektur-) Büro, für Schulungszwecke oder Ähnliches nutzen lässt. Alternativ ist auch Wohnen im Nebengebäude (zweite Wohneinheit, Gästewohnen oder Kinder/Eltern) nach einer Nutzungsänderung möglich. Ansonsten liegt das Gebäude ca. 8 km von Walsrode sowie ca. 20 km von Verden entfernt und besticht durch sein gutes Umfeld mit einer sehr guten bis exzellenten Nachbarschaft. Vor Ort gibt es einen Kindergarten, einen Sportplatz, eine Schule sowie eine Kirche. Ein Bistro sowie ein Hotel, eine Tankstelle, eine Sparkasse und eine Bäckerei lassen sich zudem fußläufig erreichen. Weitere Läden für den täglichen Bedarf (u.a. Inneneinrichter, Sanitärbetrieb) befinden sich ebenfalls im Ort.
Man erreicht Hannover -Zentrum und Hamburg in ca. 60 min. mit dem PKW.
Sonstige Angaben
Alle Angaben sind ohne Gewähr, da sie uns vom Auftraggeber übermittelt worden sind. Auch wird keine Gewähr für die Aktualität, die Richtigkeit und Vollständigkeit der Angaben übernommen.
Sollte es zu einem Erwerb des Objektes/der Immobilie – aufgrund einer von uns erbrachten Vermittlungstätigkeit als Immobilienmakler – kommen, so ist eine Courtage mit dem Zustandekommen eines notariellen Kaufvertrages verdient und fällig. Die Höhe der Courtage beträgt 6% auf den Kaufpreis zuzüglich der gesetzlichen Umsatzsteuer (in Summe derzeit 7,14%). Hierbei wird von einem kapital-gewerblichen Erwerb der Immobilie an Sie, Ihre Firma oder anderer mit ihnen gewerblich in Kontakt stehenden Firmen/Personen ausgegangen, also nicht für den Erwerb zur Eigennutzung im Sinne eines Verbrauchers.
Ebenfalls wird eine Courtage bei einem wirksamen Zustandekommen eines Kaufvertragsabschlusses fällig, wenn der Käufer das Objekt/die Immobilie, ohne uns zu informieren, direkt vom Eigentümer erwirbt und dies aufgrund einer von uns nachgewiesenen Gelegenheit oder unserer Vermittlungstätigkeit basiert. Dann gilt unsere Leistung als erbracht. Die Höhe der Courtage gilt wie oben und beträgt 6% des Kaufpreises zuzüglich der gesetzlichen Umsatzsteuer (in Summe derzeit 7,14%).
Sie möchten den Wert Ihrer Immobilie durch uns ermitteln lassen oder ebenfalls eine Immobilie verkaufen - bzw. kennen jemanden, der dies vorhat? Wir unterstützen Sie und/oder Ihre Freunde, Familie und Bekannten gerne dabei. Nehmen Sie für diese Anliegen unverbindlich direkt Kontakt zu uns auf unter: 0160-7978567 bzw. info@dr-haepke.de
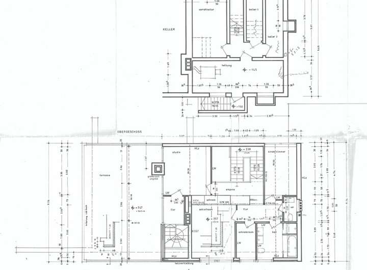
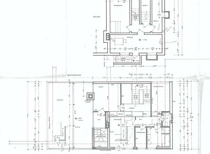
Grundriss
Grundriss OG und Keller
>
>
Grundriss EG und Praxis
>
>
Adresse
29664 Walsrode
Interessante Orte
Preis- und Lageinformationen
Preistrend für Bestandsimmobilien in Walsrode