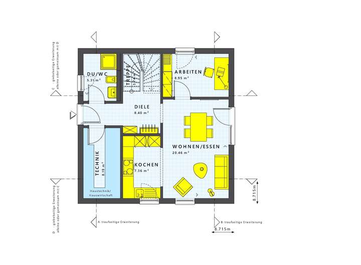
Dieses wunderschöne Fertighaus von LivingHaus wird ganz nach deinen persönlichen Vorstellungen projektiert und bietet dir mit 124 m² Wohnfläche und 5 Zimmern ausreichend Platz für deine Familie. Mit einer großzügigen Grundstücksgröße von 680 m² hast du genügend Raum für einen Garten, in dem du entspannen und die Natur genießen kannst. Das klassische Satteldach mit einer Neigung von 38 Grad verleiht dem Haus einen zeitlosen Charme, während Erker oder Giebel den Wohnbereich vergrößern und einladend gestalten. Die bodentiefen Fenster bringen viel Licht in dein Zuhause und schaffen eine angenehme, freundliche Atmosphäre.
LivingHaus bietet dir zahlreiche zusätzliche Leistungen, die deinen Hausbau zu einem stressfreien Erlebnis machen. Die Traumküche wird individuell auf deinen Grundriss abgestimmt und liefert dir modernste Technik sowie clevere Stauraumlösungen, sodass du direkt nach dem Einzug mit dem Kochen beginnen kannst. Das Living Haus Bau-Cockpit sorgt dafür, dass du jederzeit den Überblick über dein Bauprojekt behältst. Die App ermöglicht dir den Zugriff auf Zeitpläne und Dokumente und macht den gesamten Bauprozess transparent und einfach.
Mit I-KON - Intelligentes Bauen wird dein neues Zuhause nicht nur energieeffizient, sondern auch umweltfreundlich gestaltet. Das I-KON Effizienzhaus 55 benötigt nur 55 % der Energie eines Standardhauses und sorgt so für niedrige Betriebskosten. Zudem profitierst du von dem Zuhause-Darlehen, mit dem du bis zu 250.000 EUR zu besonders günstigen Konditionen finanzieren kannst.
Das Zuhause-Paket bietet eine hochwertige Grundausstattung mit modernen Böden, edlen Türen und stilvollen Sanitäranlagen. Alles ist perfekt aufeinander abgestimmt und wird fix und fertig geliefert. Wenn du gerne selbst Hand anlegst, kannst du mit dem DIY-Ausbau-Coaching von Experten lernen, wie du den Innenausbau deines neuen Heims selbst meisterst und somit noch mehr persönlichen Charakter hineinbringst.
Mit LivingHaus erhältst du ein durchdachtes Gesamtkonzept, das alle Aspekte von der Finanzierung über die Planung bis zur individuellen Ausgestaltung abdeckt und dir die Möglichkeit gibt, dein Traumhaus nach deinen Wünschen zu gestalten.
Dein individuelles Traumhaus in Celle - Freiheit und Gestaltung nach deinen Wünschen
29229 Celle
Die vollständige Adresse der Immobilie erhalten Sie vom Anbieter.
Auf Karte anzeigen
Die vollständige Adresse der Immobilie erhalten Sie vom Anbieter.
Finanzierungszertifikat
In nur zwei Minuten zu Ihrem persönlichen Finanzierungszertifkat.
Infos
| Haustyp | Einfamilienhaus |
|---|---|
| Etagenzahl | 2 |
| Wohnfläche ca. | 124 m2 |
| Nutzfläche | 124 m2 |
| Grundstücksfläche | 680 m2 |
| Zimmer | 5 |
| Schlafzimmer | 3 |
| Badezimmer | 1 |
Kosten
| Kaufpreis |
482.721 € |
|---|
Finanzierungsrechner:
Kaufpreis:
600.000 €
Eigenkapital:
600.000 €
Monatliche Rate
0 €
Effektiver Jahreszins
0 %
Sollzinsbindung
10 Jahre
Bausubstanz & Energieausweis
| Baujahr | 2026 |
|---|---|
| Bauphase | Haus in Planung (projektiert) |
| Qualität der Austattung | Gehoben |
| Energieausweis | liegt vor |
| Energieausweistyp | Bedarfsausweis |
| Energieverbrauchskennwert | 18,0 kWh/(m²*a) |
| Energieeffizienzklasse | A+ |
18,0
kWh/(m²*a)
Energieeffizienzklasse A+
- A+
- A
- B
- C
- D
- E
- F
- G
- H
- 0
- 25
- 50
- 75
- 100
- 125
- 150
- 175
- 200
- 225
- >250
Beschreibung des Objekts
Ausstattung
Dein neues Zuhause kommt mit einer Vielzahl an hochwertigen Ausstattungsmerkmalen, die für Komfort und Stil sorgen. Die Ausstattung umfasst moderne Böden, die sowohl funktional als auch ästhetisch ansprechend sind. Edle Türen und stilvolle Sanitäranlagen runden das Gesamtbild ab und schaffen eine harmonische Atmosphäre. Zudem sind alle Materialien optimal aufeinander abgestimmt, sodass du dir keine Gedanken um die Auswahl machen musst. Ob du dich für eine moderne Küche oder spezielle Fliesen entscheidest, alles wird nach deinen Vorstellungen realisiert. Dein individuelles Traumhaus ist somit nicht nur ein Ort zum Wohnen, sondern auch ein Ort, der deinen persönlichen Stil widerspiegelt - dein "Wie ich es will Fertighaus".
Lage
Celle ist ein wunderbarer Ort für Familien, Naturliebhaber und Pendler. Die Stadt bietet eine hervorragende Infrastruktur mit zahlreichen Bildungseinrichtungen, darunter die Grundschule und das Gymnasium, die für Familien mit Kindern von großer Bedeutung sind. In der Nähe findest du auch mehrere Kindergärten, die eine liebevolle Betreuung bieten. Supermärkte wie Rewe und Edeka sind gut erreichbar und sorgen dafür, dass du alles für den täglichen Bedarf schnell besorgen kannst.
Die medizinische Versorgung ist durch diverse Ärzte und Fachkliniken gesichert, die in der Umgebung ansässig sind. Für deine Freizeitgestaltung stehen zahlreiche Angebote zur Verfügung, darunter Sportvereine, Parks und Wanderwege, die sich perfekt für entspannte Spaziergänge oder sportliche Aktivitäten eignen. Die historische Altstadt von Celle mit ihren charmanten Fachwerkhäusern lädt zum Bummeln und Verweilen ein.
Die Verkehrsanbindung ist ebenso vorteilhaft: Die Autobahn A2 ist in kurzer Zeit erreichbar, was Pendlern eine schnelle Verbindung nach Hannover und ins Umland ermöglicht. Zudem gibt es ausgezeichnete ÖPNV-Verbindungen mit Bus und Bahn, die dir Flexibilität bieten. All diese Faktoren machen Celle zu einem idealen Standort für dein neues Zuhause, wo du sowohl Ruhe als auch eine lebendige Gemeinschaft findest.
Adresse
29229 Celle
Interessante Orte
Preis- und Lageinformationen
Preistrend für Bestandsimmobilien in Celle