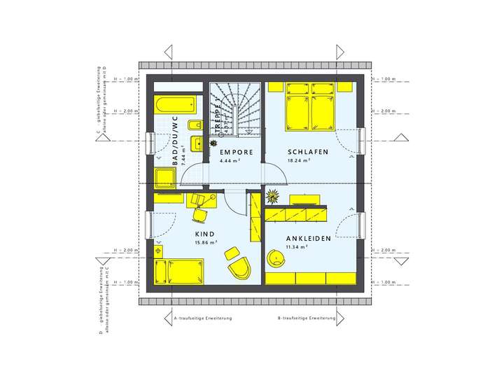
In Vechelde entsteht dein ganz persönliches Traumhaus, das ganz nach deinen Wünschen und Vorstellungen projektiert wird. Mit einer großzügigen Wohnfläche von 124 m² und insgesamt fünf Zimmern, darunter drei Schlafzimmer und ein Badezimmer, bietet dir dieses Einfamilienhaus ausreichend Platz, um deinen Wohntraum zu verwirklichen. Das klassische Satteldach mit einer Neigung von 38 Grad verleiht dem Haus nicht nur einen zeitlosen Charme, sondern sorgt auch für eine optimale Raumausnutzung. Der optionale Erker oder Giebel erweitert deinen Wohnbereich und die bodentiefen Fenster lassen viel Licht in die Räume strömen, was eine einladende und helle Atmosphäre schafft. Zusätzlich zu der exzellenten Architektur erwarten dich bei LivingHaus eine Vielzahl von zusätzlichen Leistungen, die dein Zuhause zu einem ganz besonderen Ort machen. Die hochwertige Traumküche von LivingHaus wird individuell auf deinen Grundriss abgestimmt und kommt mit modernster Technik sowie cleveren Stauraumlösungen. So kannst du direkt nach deinem Einzug mit dem Kochen beginnen. Das Living Haus Bau-Cockpit ermöglicht dir, während des gesamten Bauprojektes den Überblick zu behalten - alles ist digital und einfach zugänglich. Mit I-KON, dem intelligenten Bauen, wird dein Zuhause nicht nur nachhaltig, sondern auch energieeffizient und perfekt auf deine Bedürfnisse angepasst. Das Zuhause-Darlehen bietet dir exklusive Finanzierungsvorteile, damit du deinen Traum vom Eigenheim realisieren kannst. Darüber hinaus beinhaltet das Zuhause-Paket eine hochwertige Grundausstattung mit modernen Böden, edlen Türen und stilvollen Sanitäranlagen. Wenn du gerne selbst Hand anlegen möchtest, unterstützt dich das DIY-Ausbau-Coaching, bei dem Experten dir zeigen, wie du den Innenausbau selbst meisterst. Mit LivingHaus wird der Weg zu deinem individuellen Traumhaus einfach und stressfrei.
Dein individuelles LivingHaus - So wird dein Traum vom Eigenheim Wirklichkeit!
38159 Vechelde
Die vollständige Adresse der Immobilie erhalten Sie vom Anbieter.
Auf Karte anzeigen
Die vollständige Adresse der Immobilie erhalten Sie vom Anbieter.

Finanzierungszertifikat
In nur zwei Minuten zu Ihrem persönlichen Finanzierungszertifkat.
Infos
Haustyp | Einfamilienhaus |
---|---|
Etagenzahl | 2 |
Wohnfläche ca. | 124 m2 |
Nutzfläche | 124 m2 |
Grundstücksfläche | 590 m2 |
Zimmer | 5 |
Schlafzimmer | 3 |
Badezimmer | 1 |
Kosten
Kaufpreis |
452.768 € |
---|
Finanzierungsrechner:
Kaufpreis:
600.000 €
Eigenkapital:
600.000 €
Monatliche Rate
0 €
Effektiver Jahreszins
0 %
Sollzinsbindung
10 Jahre
Bausubstanz & Energieausweis
Baujahr | 2026 |
---|---|
Bauphase | Haus in Planung (projektiert) |
Qualität der Austattung | Gehoben |
Energieausweis | liegt vor |
Energieausweistyp | Bedarfsausweis |
Energieverbrauchskennwert | 18,0 kWh/(m²*a) |
Energieeffizienzklasse | A+ |
18,0
kWh/(m²*a)
Energieeffizienzklasse A+
- A+
- A
- B
- C
- D
- E
- F
- G
- H
- 0
- 25
- 50
- 75
- 100
- 125
- 150
- 175
- 200
- 225
- >250
Beschreibung des Objekts
Ausstattung
Das LivingHaus bietet dir eine Vielzahl an hochwertigen Ausstattungsmerkmalen, die dein Zuhause zu etwas Besonderem machen. Du erhältst eine hochwertige, individuell geplante Traumküche, die perfekt auf deinen Grundriss abgestimmt ist. Modernste Technik und durchdachte Stauraumlösungen sorgen für Funktionalität und Stil. Die Grundausstattung umfasst moderne Böden, edle Türen und stilvolle Sanitäranlagen, alles optimal aufeinander abgestimmt und fixfertig geliefert. Dank des hohen Vorfertigungsgrads mit geschlossenen Wänden wird der Bauprozess effizient gestaltet und auf die Grundkonstruktion des Gebäudes gibt es 30 Jahre Garantie. Die integrierte PV-Anlage mit Speicherbatterie ermöglicht es dir, einen Großteil deines Strombedarfs selbst zu erzeugen, während die moderne Wärmepumpentechnik für ein angenehmes Raumklima sorgt. Du profitierst außerdem von einem umfassenden Sicherheitspaket, das essenzielle Bauversicherungen sowie eine 18-monatige Festpreisgarantie beinhaltet. All dies führt dazu, dass du dein "Wie ich es will Fertighaus" in den eigenen vier Wänden verwirklichen kannst.
Lage
Vechelde ist ein lebendiger Ort, der dir und deiner Familie eine Vielzahl von Möglichkeiten bietet. In der Umgebung findest du zahlreiche Bildungsangebote, darunter mehrere Kindergärten und Schulen, die allesamt sehr gut bewertet sind. Die Grundschule Vechelde sowie das Gymnasium bieten eine hervorragende Ausbildung für deine Kinder. Für den täglichen Bedarf stehen dir mehrere Supermärkte zur Verfügung, darunter Edeka und Rewe, sowie Bäckereien und Drogeriemärkte. Auch Ärzte und Apotheken sind in der Nähe, sodass du schnell und unkompliziert medizinische Versorgung erhältst. In deiner Freizeit kannst du die Natur erkunden, denn Vechelde liegt in einer attraktiven Umgebung mit vielen Grünflächen und Radwegen. Der nahegelegene Naturpark Elm-Lappwald lädt zu ausgedehnten Spaziergängen und Wanderungen ein. Zudem sind die Anbindungen an den öffentlichen Nahverkehr und die Autobahn optimal, sodass du schnell in die größeren Städte wie Braunschweig oder Wolfsburg gelangst. Vechelde ist somit nicht nur ein idealer Wohnort für Familien, sondern auch für Naturliebhaber und Pendler, die die Vorzüge des Landlebens genießen möchten.
Adresse
38159 Vechelde
Interessante Orte
Preis- und Lageinformationen
Preistrend für Bestandsimmobilien in Vechelde