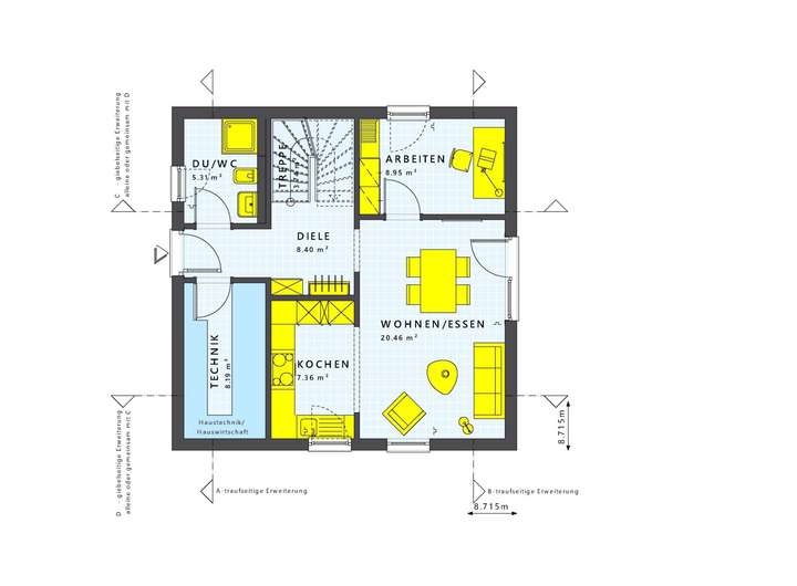
Das LivingHaus in Winsen ist mehr als nur ein Fertighaus - es ist dein persönliches Rückzugsort, das nach deinen individuellen Wünschen und Vorstellungen gestaltet wird. Mit einer großzügigen Wohnfläche von 124 m² auf einem 540 m² großen Grundstück, bietet dieses Einfamilienhaus genügend Platz für die ganze Familie. Die klassische Architektur mit einem Satteldach und einer Neigung von 38 Grad verleiht dem Haus einen zeitlosen Charme. Erker oder Giebel können deinen Wohnbereich erweitern und schaffen somit ein einladendes Ambiente. Große, bodentiefe Fenster durchfluten die Räume mit Licht und sorgen für eine warme, freundliche Atmosphäre. Hier kannst du die Verbindung zur Natur genießen und gleichzeitig in deinem stilvollen Zuhause entspannen.
LivingHaus bietet dir eine Vielzahl an zusätzlichen Leistungen, die dein Bauprojekt zu einem rundum gelungenen Erlebnis machen. Die Traumküche von LivingHaus wird exakt auf deinen Grundriss angepasst, ausgestattet mit modernster Technik und cleveren Stauraumlösungen, damit du beim Kochen keine Kompromisse eingehen musst. Mit der LivingHaus Bau-App, dem Bau-Cockpit, behältst du jederzeit den Überblick über dein Bauprojekt. Von der Dokumentenverwaltung bis hin zur Terminplanung - alles ist digital und einfach zugänglich, sodass du stressfrei bauen kannst.
Das I-KON-System von LivingHaus sorgt dafür, dass dein Zuhause energieeffizient und umweltfreundlich wird. Mit dem I-KON Effizienzhaus 55 benötigst du nur 55 % der Energie eines Standardhauses, dank innovativer Dämmung und intelligenter Heiztechnik. Das Zuhause-Darlehen ermöglicht es dir, bis zu 250.000 Euro zu besonders günstigen Konditionen zu finanzieren und staatliche Förderprogramme zu nutzen. Das Zuhause-Paket liefert dir zudem eine hochwertige Grundausstattung mit modernen Böden, edlen Türen und stilvollen Sanitäranlagen, alles perfekt aufeinander abgestimmt und fix und fertig geliefert.
Und wenn du den Innenausbau selbst in die Hand nehmen möchtest, unterstützt dich das DIY-Ausbau-Coaching mit professionellen Tipps und Tricks, damit du dein Zuhause nach deinen Vorstellungen gestalten kannst. Mit LivingHaus wird dein Traum vom individuellen Eigenheim Wirklichkeit - genau so, wie du es willst.
Dein maßgeschneidertes Traumhaus von LivingHaus in Winsen
29308 Winsen (Aller)
Die vollständige Adresse der Immobilie erhalten Sie vom Anbieter.
Auf Karte anzeigen
Die vollständige Adresse der Immobilie erhalten Sie vom Anbieter.
Finanzierungszertifikat
In nur zwei Minuten zu Ihrem persönlichen Finanzierungszertifkat.
Infos
| Haustyp | Einfamilienhaus |
|---|---|
| Etagenzahl | 2 |
| Wohnfläche ca. | 124 m2 |
| Nutzfläche | 124 m2 |
| Grundstücksfläche | 540 m2 |
| Zimmer | 5 |
| Schlafzimmer | 3 |
| Badezimmer | 1 |
Kosten
| Kaufpreis |
461.768 € |
|---|
Finanzierungsrechner:
Kaufpreis:
600.000 €
Eigenkapital:
600.000 €
Monatliche Rate
0 €
Effektiver Jahreszins
0 %
Sollzinsbindung
10 Jahre
Bausubstanz & Energieausweis
| Baujahr | 2026 |
|---|---|
| Bauphase | Haus in Planung (projektiert) |
| Qualität der Austattung | Gehoben |
| Energieausweis | liegt vor |
| Energieausweistyp | Bedarfsausweis |
| Energieverbrauchskennwert | 18,0 kWh/(m²*a) |
| Energieeffizienzklasse | A+ |
18,0
kWh/(m²*a)
Energieeffizienzklasse A+
- A+
- A
- B
- C
- D
- E
- F
- G
- H
- 0
- 25
- 50
- 75
- 100
- 125
- 150
- 175
- 200
- 225
- >250
Beschreibung des Objekts
Ausstattung
Die Ausstattung deines LivingHaus lässt keine Wünsche offen. Du erhältst eine hochwertige Grundausstattung, die moderne Böden, edle Türen und stilvolle Sanitäranlagen umfasst. Neben der individuell geplanten Traumküche, die perfekt auf deinen Grundriss abgestimmt ist, sorgen bodentiefe Fenster für eine helle und freundliche Atmosphäre in deinem neuen Zuhause. Die Verwendung von modernen Materialien und innovativer Technik garantiert dir nicht nur ein ansprechendes Design, sondern auch höchste Funktionalität und Energieeffizienz. Dank der I-KON-Lösung kannst du mit einer integrierten PV-Anlage und moderner Wärmepumpentechnik umweltfreundlich und kostensparend wohnen. Du wirst begeistert sein von der Kombination aus Qualität, Stil und Funktionalität, die dein neues Zuhause zu einem Ort macht, an dem du dich rundum wohlfühlst. Dies wird dein "Wie ich es will Fertighaus".
Lage
Winsen bietet dir eine erstklassige Lage mit einer Vielzahl an Vorteilen für Familien, Naturliebhaber und Pendler. Im Umkreis findest du zahlreiche Kindergärten und Schulen, die eine hervorragende Bildung für deine Kinder gewährleisten. Die Grundschule Winsen hat in der Region einen sehr guten Ruf und wird von den Eltern hoch geschätzt. Für die medizinische Versorgung gibt es mehrere Ärzte und Fachärzte in der Nähe, die schnell erreichbar sind. Auch Einkaufsmöglichkeiten sind in der Umgebung reichlich vorhanden: Supermärkte, Fachgeschäfte und ein Wochenmarkt sorgen dafür, dass du alles für den täglichen Bedarf findest. Die gute Anbindung an den öffentlichen Nahverkehr sowie die Autobahn A39 ermöglicht dir eine schnelle Erreichbarkeit von Hamburg und anderen umliegenden Städten. Für Freizeitaktivitäten gibt es zahlreiche Optionen, darunter Parks, Sporteinrichtungen und Radwege, die zum Entspannen und Erholen einladen. Diese lebendige und familienfreundliche Umgebung macht Winsen zu einem idealen Ort für dein zukünftiges Zuhause.
Adresse
29308 Winsen (Aller)
Interessante Orte
Preis- und Lageinformationen
Preistrend für Bestandsimmobilien in Winsen (Aller)