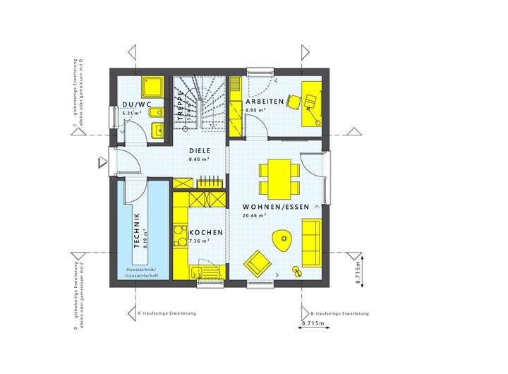
Willkommen in deinem zukünftigen Zuhause in Celle! Dieses wunderschöne Einfamilienhaus, das nach deinen Wünschen und Vorstellungen projektiert wird, bietet dir alles, was du dir für ein modernes und komfortables Leben wünschst. Mit einer großzügigen Wohnfläche von 124 m² und 5 Zimmern, darunter 3 gemütliche Schlafzimmer und ein stilvolles Badezimmer, schafft es einen perfekten Raum für die ganze Familie. Das klassische Satteldach mit einer Neigung von 38 Grad verleiht dem Haus nicht nur einen eleganten Look, sondern sorgt auch für eine optimale Raumausnutzung. Durch den optionalen Erker oder Giebel kannst du deinen Wohnbereich noch weiter vergrößern, während die bodentiefen Fenster für ein lichtdurchflutetes Ambiente sorgen.
Doch LivingHaus bietet dir nicht nur ein schönes Zuhause, sondern auch ein durchdachtes Gesamtkonzept. Die hochwertige Traumküche wird individuell auf deinen Grundriss angepasst und kommt mit modernster Technik sowie cleveren Stauraumlösungen. So kannst du direkt nach dem Einzug in deiner neuen Küche loskochen. Um den Überblick über dein Bauprojekt zu behalten, steht dir das Living Haus Bau-Cockpit zur Verfügung, eine praktische App, die dir alle Informationen jederzeit zugänglich macht. Mit I-KON - Intelligentes Bauen wird dein Zuhause energieeffizient und umweltfreundlich gestaltet. Das I-KON Effizienzhaus 55 benötigt lediglich 55 % der Energie eines Standardhauses, dank innovativer Dämmung und moderner Heiztechniken.
Für die Finanzierung deines Traumhauses bieten wir das Zuhause-Darlehen mit bis zu 250.000 EUR, das dir attraktive Zinssätze und staatliche Förderprogramme sichert. Das Zuhause-Paket sorgt dafür, dass dein Haus mit einer hochwertigen Grundausstattung kommt, inklusive moderner Böden, edler Türen und stilvollen Sanitäranlagen - alles optimal aufeinander abgestimmt und sofort bezugsfertig.
Wenn du gerne selbst Hand anlegen möchtest, steht dir unser DIY-Ausbau-Coaching zur Verfügung. Innerhalb von drei Tagen lernst du von Experten, wie du den Innenausbau selbst meisterst. LivingHaus bietet dir somit ein Rundum-Paket, das dir hilft, dein individuelles Traumhaus stressfrei zu realisieren.
Dein individuelles Traumhaus in Celle - mit LivingHaus zum persönlichen Wohntraum
Am Brunnen 2,
29229 Celle
Auf Karte anzeigen
Finanzierungszertifikat
In nur zwei Minuten zu Ihrem persönlichen Finanzierungszertifkat.
Infos
| Haustyp | Einfamilienhaus |
|---|---|
| Etagenzahl | 2 |
| Wohnfläche ca. | 124 m2 |
| Nutzfläche | 124 m2 |
| Grundstücksfläche | 670 m2 |
| Zimmer | 5 |
| Schlafzimmer | 3 |
| Badezimmer | 1 |
Kosten
| Kaufpreis |
447.768 € |
|---|
Finanzierungsrechner:
Kaufpreis:
600.000 €
Eigenkapital:
600.000 €
Monatliche Rate
0 €
Effektiver Jahreszins
0 %
Sollzinsbindung
10 Jahre
Bausubstanz & Energieausweis
| Baujahr | 2026 |
|---|---|
| Bauphase | Haus in Planung (projektiert) |
| Qualität der Austattung | Gehoben |
| Energieausweis | liegt vor |
| Energieausweistyp | Bedarfsausweis |
| Energieverbrauchskennwert | 18,0 kWh/(m²*a) |
| Energieeffizienzklasse | A+ |
18,0
kWh/(m²*a)
Energieeffizienzklasse A+
- A+
- A
- B
- C
- D
- E
- F
- G
- H
- 0
- 25
- 50
- 75
- 100
- 125
- 150
- 175
- 200
- 225
- >250
Beschreibung des Objekts
Ausstattung
Dein zukünftiges Zuhause überzeugt durch eine hochwertige Ausstattung, die keine Wünsche offenlässt. Die individuelle Planung ermöglicht dir eine maßgeschneiderte Traumküche, die perfekt in deinen Grundriss integriert wird. Die Grundausstattung umfasst stilvolle Böden, edle Türen und moderne Sanitäranlagen, alles aufeinander abgestimmt und fix und fertig geliefert. Zudem profitierst du von einem hohen Vorfertigungsgrad, was den Bauprozess effizient gestaltet. Aluminiumgeschäumte Rollläden bieten im Sommer optimalen Hitzeschutz und tragen im Winter zur Wärmedämmung bei.
Zusätzlich erhältst du professionelle Unterstützung durch das DIY-Ausbau-Coaching, mit dem du den Innenausbau selbst in die Hand nehmen kannst. So wird dein Haus nicht nur ein Gebäude, sondern ein echtes Zuhause, das ganz nach deinen Vorstellungen gestaltet ist.
Lage
Celle, eine charmante Stadt in Niedersachsen, bietet dir eine perfekte Kombination aus ländlichem Flair und urbaner Lebensqualität. In der Umgebung findest du zahlreiche Bildungseinrichtungen, darunter Grundschulen und weiterführende Schulen, die für Familien besonders wichtig sind. Die Stadt hat mehrere Kindergärten, die dir eine optimale Betreuung für deine Kleinen bieten.
Für den täglichen Bedarf stehen dir zahlreiche Supermärkte und Fachgeschäfte zur Verfügung, sodass du alles bequem erreichen kannst. Auch Arztpraxen und Gesundheitszentren befinden sich in der Nähe, sodass du jederzeit schnell die nötige medizinische Versorgung findest.
Celle ist von einer idyllischen Natur umgeben, die dir zahlreiche Freizeitmöglichkeiten bietet. Ob ausgedehnte Spaziergänge im nahegelegenen Wald, Radfahren entlang der malerischen Wege oder Ausflüge zu den zahlreichen Seen in der Umgebung - hier findest du die perfekte Balance zwischen Erholung und Aktivität.
Die Anbindung an den öffentlichen Nahverkehr ist hervorragend, sodass du schnell und unkompliziert in die umliegenden Städte gelangst. Auch die Autobahn ist nur wenige Minuten entfernt, was Pendlern eine bequeme Anreise zu ihren Arbeitsplätzen ermöglicht. In Celle ist für jeden etwas dabei, ob für Familien, Naturliebhaber oder Berufspendler - deine neue Heimat wartet auf dich!
Adresse
Am Brunnen 2, 29229 Celle
Interessante Orte
Preis- und Lageinformationen
Preistrend für Bestandsimmobilien in Celle