Dieses großzügige Zweifamilienhaus aus dem Jahr 1965 verbindet vielfältige Nutzungsmöglichkeiten mit einem durchdachten Raumkonzept und einer attraktiven Grundstückssituation. Die Wohnfläche von rund 226 Quadratmetern verteilt sich auf insgesamt sechs Zimmer. Damit eignet sich das Haus sowohl als Mehrgenerationenhaus als auch zur Vermietung oder zur Kombination von Wohnen und Arbeiten. Beide Etagen sind als eigenständige Wohneinheiten konzipiert und jeweils mit Vollbad, Küche sowie Wohn- und Schlafräumen ausgestattet.
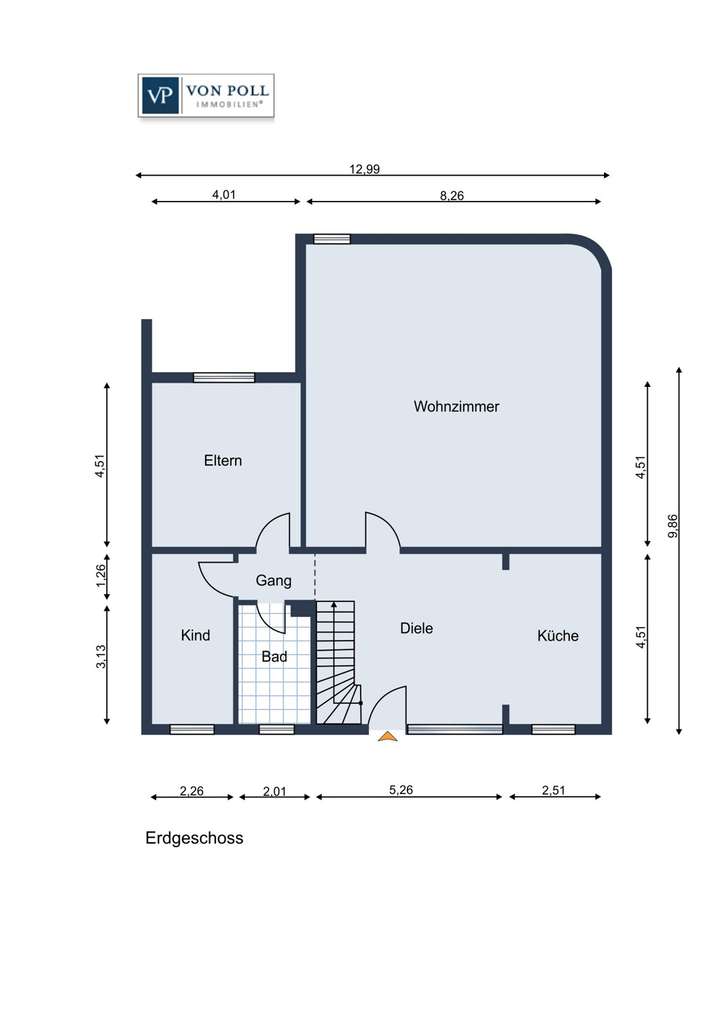
Im Erdgeschoss erwartet Sie ein großzügiges Wohnzimmer mit Kamin, der für eine gemütliche Atmosphäre sorgt. Angrenzend befindet sich die offene Küche mit Essbereich, die 2019 vollständig erneuert wurde. Ein besonderes Detail ist der historische Wiener Kachelofen, der den Charme dieser Immobilie zusätzlich unterstreicht. Ergänzt wird das Raumangebot im Erdgeschoss durch ein Schlafzimmer, ein Gäste-WC mit Dusche sowie ein großes Badezimmer.
Im Obergeschoss befinden sich drei weitere Schlafzimmer. Eines davon ist besonders geräumig und kann flexibel als Wohn- oder Schlafraum genutzt werden. Hier wurde die Küche 2024 erneuert. Zudem steht ein Badezimmer zur Verfügung. Die beiden Etagen sind durch eine elegante Mahagoni-Holztreppe miteinander verbunden.
Die Böden im Erdeschoss wurden 2019 großflächig durch hochwertiges Bio-Vinyl mit Korkdämmung ersetzt und schaffen ein angenehmes Wohngefühl. Im Obergeschoss geschah dies 2024. Sonnenschutzfenster mit zweifacher Verglasung tragen zu einem ausgeglichenen Raumklima bei. Das Haus ist vollunterkellert, verfügt über eine Ölheizung aus dem Jahr 1985 mit einem Tankvolumen von 6.000 Litern und ist rundum drainiert. Zusätzlich steht ein eigener Brunnen mit zwei Schächten und Pumpe zur Verfügung. Das gedämmte Dach und der Spitzboden bieten weiteren Stauraum sowie Ausbaureserve. Ein rollstuhlgerechter Eingang rundet die solide Ausstattung ab.
Zum Verkauf stehen insgesamt vier Flurstücke mit einer Gesamtfläche von rund 16.762 Quadratmetern. Das 804 Quadratmeter große Hauptgrundstück trägt das Wohnhaus. Ein weiteres Flurstück mit 2.943 Quadratmetern ist teilweise als Bauland, teilweise als Grünland ausgewiesen. Hinzu kommen zwei große Grünlandflächen mit rund 4.015 und 9.000 Quadratmetern, die derzeit für die Pferdehaltung genutzt werden.
Für Pferdeliebhaber bietet das Anwesen beste Voraussetzungen: Die Weideflächen sind über einen gepflasterten Weg bequem vom Haus aus erreichbar. Vor den Weiden stehen Pferdeboxen. 2025 wurden beheizte Tränken installiert und die Zuleitungen erneuert. Zusätzlich gibt es einen Pony-Paddock. Ein weiterer Reitplatz wurde hinzugepachtet, die jährlichen Kosten hierfür belaufen sich auf lediglich 280 Euro.
Neben der Tierhaltung bietet das Grundstück auch praktische Nebengebäude, darunter eine Scheune, ein Carport sowie eine große LKW-Halle. Auf dem Areal, auf dem sich die Halle befindet, wäre sogar zusätzlicher Wohnraum denkbar, da die entsprechenden Anschlüsse bereits vorbereitet sind. Dazu gehören ein (Stark-)Strom- sowie ein Wasseranschluss. Ein Kanalanschluss ließe sich problemlos realisieren. Das Nebengebäude ist gemauert und mit Holz verkleidet, die Zwischendecke ist gedämmt. Mehrere Stellplätze ergänzen das großzügige Angebot.
Dieses Objekt vereint Wohnkomfort mit ländlicher Idylle, praktischen Ausstattungsdetails und einem weitläufigen Grundstück. Damit bietet es sowohl Familien als auch Tier- und Naturfreunden ideale Möglichkeiten.
Charmantes Zweifamilienhaus mit großem Grundstück und Möglichkeit zur Pferdehaltung!
27283 Verden (Aller)
Die vollständige Adresse der Immobilie erhalten Sie vom Anbieter.
Auf Karte anzeigen
Die vollständige Adresse der Immobilie erhalten Sie vom Anbieter.
Finanzierungszertifikat
In nur zwei Minuten zu Ihrem persönlichen Finanzierungszertifkat.
Infos
| Etagenzahl | 2 |
|---|---|
| Wohnfläche ca. | 226 m2 |
| Grundstücksfläche | 16.762 m2 |
| Zimmer | 6 |
| Schlafzimmer | 4 |
| Badezimmer | 3 |
| Garage/Stellplatz | Außenstellplatz |
| Anzahl Garage/Stellplatz | 10 |
Kosten
| Kaufpreis |
765.000 € |
|---|---|
| Provision |
Käuferprovision beträgt 3,57 % (inkl. MwSt.) des beurkundeten Kaufpreises |
Finanzierungsrechner:
Kaufpreis:
600.000 €
Eigenkapital:
600.000 €
Monatliche Rate
0 €
Effektiver Jahreszins
0 %
Sollzinsbindung
10 Jahre
Bausubstanz & Energieausweis
| Baujahr | 1965 |
|---|---|
| Objektzustand | Gepflegt |
| Heizungsart | Öl-Heizung |
| Wesentliche Energieträger | Öl |
| Energieausweis | liegt vor |
| Energieausweistyp | Verbrauchsausweis |
| Energieverbrauchskennwert | 133,9 kWh/(m²*a) |
| Energieeffizienzklasse | E |
133,9
kWh/(m²*a)
Energieeffizienzklasse E
- A+
- A
- B
- C
- D
- E
- F
- G
- H
- 0
- 25
- 50
- 75
- 100
- 125
- 150
- 175
- 200
- 225
- >250
Beschreibung des Objekts
Ausstattung
- Baujahr 1965
- Zweifamilienhaus mit ca. 226 m² Wohnfläche
- 6 Zimmer, 2 Vollbäder, Gäste-WC mit Dusche
- Vollunterkellert
- Gedämmtes Dach, Spitzboden als Stauraum und Ausbaureserve nutzbar
- Zwei eigenständige Wohneinheiten (EG & OG)
- Böden 2019 (EG) und 2024 (OG) erneuert (Bio-Vinyl mit Korkdämmung)
- Rollstuhlgerechter Eingang
- Sonnenschutzfenster, 2-fach verglast
- Ölheizung Baujahr 1985, 6.000 Liter Tankvolumen (4 x 1.500 Liter)
- Rundum drainiertes Haus
- Eigener Brunnen mit zwei Schächten und Pumpe
- Wohnzimmer im Erdgeschoss mit Kamin
- Offene Küche im Erdgeschoss mit Essbereich (Einbauküche 2019)
- Historischer Wiener Kachelofen in der Küche
- Schlafzimmer im Erdgeschoss
- Großes Badezimmer und Gäste-WC mit Dusche im Erdgeschoss
- Obergeschoss mit drei Schlafzimmern und großem, flexibel nutzbarem Zimmer
- Küche im Obergeschoss (Einbauküche 2024)
- Badezimmer im Obergeschoss
- Verbindung der Ebenen über Mahagoni-Holztreppe
- Grundstücksgröße insgesamt ca. 16.762 m² (vier Flurstücke)
- Hausgrundstück 804 m²
- Weiteres Grundstück 2.943 m², teils Bauland, teils Grünland
- Grünland ca. 4.015 m²
- Grünland ca. 9.000 m², ideal für Pferdehaltung
- vollständig gepflasterter Hof vom Haus zur Weide
- Pferdeboxen und Pony-Paddock
- Zusätzlich gepachteter Reitplatz (280 € jährlich)
- Scheune, Carport und LKW-Halle auf dem Grundstück
- Möglichkeit, auf dem Hallen-Areal weiteren Wohnraum zu errichten
- Mehrere Stellplätze vorhanden
Lage
Verden, eine charmante Kreisstadt an der Aller in Niedersachsen, ist bekannt für ihre historische Altstadt, die reiche Pferdetradition und eine hohe Lebensqualität. Die Stadt bietet eine gelungene Mischung aus historischer Atmosphäre und moderner Infrastruktur. Besonders hervorzuheben ist der imposante Dom zu Verden, ein beeindruckendes gotisches Bauwerk, das die Geschichte der Region widerspiegelt.
Verden (Walle) – Ländliche Idylle mit besonderem Charme
Der Ortsteil Walle, im nördlichen Teil Verdens gelegen, ist geprägt von seiner ländlichen Idylle und naturnahen Umgebung. Mit weitläufigen Feldern, kleinen Höfen und einer dörflichen Gemeinschaft strahlt Walle einen besonderen Reiz aus. Hier erleben Bewohner und Besucher die perfekte Balance zwischen Ruhe und Nähe zur Stadt.
Die Infrastruktur in Walle ist überschaubar, doch durch die kurze Distanz zur Verdener Innenstadt sind alle wichtigen Einrichtungen des täglichen Lebens schnell erreichbar. Ein besonderes Highlight für Naturfreunde ist die Nähe zu den Allerwiesen und den umliegenden Wander- und Radwegen, die einlädt, die reizvolle Landschaft Verdens zu erkunden.
Verden ist eine Stadt, in welcher sich Tradition und Moderne verbinden. Junge Familien und Ruhesuchende lassen sich hier gerne nieder, um die naturnahe Lebensweise zu genießen. Der Ortsteil steht für Gemeinschaft und eine enge Verbundenheit mit der Natur – ein perfekter Rückzugsort!
Verden punktet nicht nur durch seine charmante Atmosphäre, sondern auch durch seine hervorragende Verkehrsanbindung an die Metropolen der Region. Die Stadt liegt verkehrsgünstig an der Autobahn A27, die eine schnelle Verbindung nach Bremen und Hannover ermöglicht. Die Fahrzeit nach Bremen beträgt etwa 30 Minuten, während Hannover in knapp einer Stunde zu erreichen ist.
Auch Hamburg ist gut erreichbar: Über die Autobahnen A27 und A1 benötigt man rund 1,5 Stunden. Zusätzlich bietet der Bahnhof Verden als Teil des Regional- und Fernverkehrsnetzes eine direkte Anbindung an wichtige Zugstrecken. Regelmäßige Regionalzüge und ICE-Verbindungen sorgen dafür, dass Bremen, Hannover und Hamburg bequem und schnell auch ohne Auto erreicht werden können.
Mit seiner charmanten Mischung aus Stadt und Land ist Verden – und insbesondere Walle – ein idealer Ort, um Wurzeln zu schlagen oder einfach nur die ruhige Seite des Lebens zu genießen.
Sonstige Angaben
GELDWÄSCHE: Als Immobilienmaklerunternehmen ist die von Poll Immobilien GmbH nach § 2 Abs. 1 Nr. 14 und § 11 Abs. 1, 2 Geldwäschegesetz (GwG) dazu verpflichtet, bei der Begründung einer Geschäftsbeziehung die Identität des Vertragspartners festzustellen und zu überprüfen, bzw. sobald ein ernsthaftes Interesse an der Durchführung des Immobilienkaufvertrages besteht. Hierzu ist es erforderlich, dass wir nach § 11 Abs. 4 GwG die relevanten Daten Ihres Personalausweises festhalten (wenn Sie als natürliche Person handeln) – beispielsweise mittels einer Kopie. Bei einer juristischen Person benötigen wir eine Kopie des Handelsregisterauszugs, aus welchem der wirtschaftlich Berechtigte hervorgeht. Das Geldwäschegesetz sieht vor, dass der Makler die Kopien bzw. Unterlagen fünf Jahre aufbewahren muss. Als unser Vertragspartner haben Sie auch eine Mitwirkungspflicht nach § 11 Abs. 6 GwG.
HAFTUNG: Wir weisen darauf hin, dass die von uns weitergegebenen Objektinformationen, Unterlagen, Pläne etc. vom Verkäufer bzw. Vermieter stammen. Eine Haftung für die Richtigkeit oder Vollständigkeit der Angaben übernehmen wir daher nicht. Es obliegt daher unseren Kunden, die darin enthaltenen Objektinformationen und Angaben auf ihre Richtigkeit hin zu überprüfen. Alle Immobilienangebote sind freibleibend und vorbehaltlich Irrtümer, Zwischenverkauf- und Vermietung oder sonstiger Zwischenverwertung.
UNSER SERVICE FÜR SIE ALS EIGENTÜMER:
Planen Sie den Verkauf oder die Vermietung Ihrer Immobilie, so ist es für Sie wichtig, deren Marktwert zu kennen. Lassen Sie kostenfrei und unverbindlich den aktuellen Wert Ihrer Immobilie professionell durch einen unserer Immobilienspezialisten einschätzen. Unser bundesweites und internationales Netzwerk ermöglicht es uns, Verkäufer bzw. Vermieter und Interessenten bestmöglich zusammenzuführen.
Grundriss
Grundriss EG
>
>
Grundriss OG
>
>
Grundriss KG
>
>
Adresse
27283 Verden (Aller)
Interessante Orte
Preis- und Lageinformationen
Preistrend für Bestandsimmobilien in Verden (Aller)