Charmantes Einfamilienhaus mit traumhaftem Ausblick auf den Gräbelesberg:
In ruhiger und familienfreundlicher Wohnlage von Albstadt-Laufen erwartet Sie dieses gepflegte Einfamilienhaus mit ca. 160 m² Wohnfläche auf einem 592 m² großen Grundstück. Das Haus überzeugt durch seinen Charme, eine durchdachte Raumaufteilung und viel Platz für die ganze Familie.
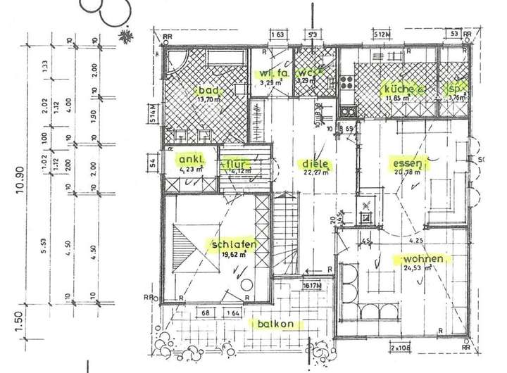
Beim Betreten des Hauses empfängt Sie eine einladende Diele im Erdgeschoss. Über das großzügige Treppenhaus erreicht man das Obergeschoss mit WOW-Effekt: lichtdurchflutete Lebensräume mit großem Essplatz, großzügiges Wohnen mit schöner Aussicht und gemütlichem Kachelofen. Hier trifft sich die Familie und Freunde, um miteinander gemeinsame Stunden zu verbringen. Die angrenzende Küche ist großzügig und bietet direkten Zugang zur Terrasse und in den Garten. Ergänzt wird diese Ebene durch ein Schlafzimmer und ein geräumiges Tageslichtbad mit Badewanne und Dusche.
Ein weiteres Highlight ist das ausgebaute, lichtdurchflutete Dachgeschoss mit großzügigem Wohnbereich und Holzofen sowie einem Schlafzimmer und einen WC mit Waschbecken.
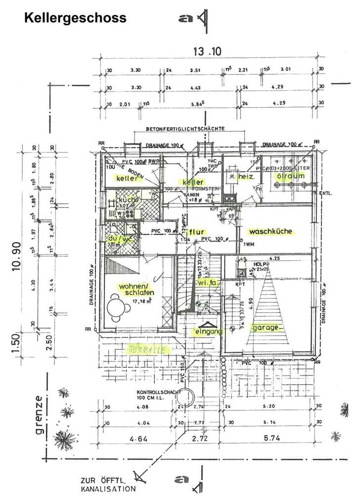
Vom Hauseingang aus erreicht man die angrenzende Garage, zwei Kellerräume, Heizraum und Waschküche. Ein großzügiges Zimmer, ein weiteres Zimmer und ein Duschbad sind perfekt als Büro/Homeoffice oder Gästebereich nutzbar.
Der liebevoll angelegte Garten bietet schöne Terrassen, besondere Sitzplätze, drei kleine Teiche und Holzschopf.
Dieses Haus überzeugt durch seine charmante Ausstrahlung, großzügige Raumaufteilung und vielfältige Nutzungsmöglichkeiten. FREUDE PUR für ALLE, die naturnahes und ruhiges Wohnen schätzen, ohne auf Komfort zu verzichten.
EXCLUSIVES WOHLFÜHLHAUS: EFH mit Aussicht in Laufen
72459 Albstadt
Die vollständige Adresse der Immobilie erhalten Sie vom Anbieter.
Auf Karte anzeigen
Die vollständige Adresse der Immobilie erhalten Sie vom Anbieter.
Finanzierungszertifikat
In nur zwei Minuten zu Ihrem persönlichen Finanzierungszertifkat.
Infos
| Haustyp | Einfamilienhaus |
|---|---|
| Etagenzahl | 3 |
| Wohnfläche ca. | 160 m2 |
| Grundstücksfläche | 592 m2 |
| Bezugsfrei ab | kurzfristig frei |
| Zimmer | 6 |
| Schlafzimmer | 3 |
| Badezimmer | 2 |
| Garage/Stellplatz | Garage |
| Anzahl Garage/Stellplatz | 2 |
Kosten
| Kaufpreis |
418.000 € |
|---|---|
| Provision |
3,57% inkl. der gesetzl. MwSt. Zuzüglich zum Kaufpreis sind folgende Nebenkosten vom Käufer zu entrichten: Grunderwerbsteuer 5%, Notargebühren ca. 2% und Maklergebühren 3,57% inkl. der gesetzlichen Mehrwertsteuer. Bei Kaufpreis unter 100.000,- Euro beträgt die Maklergebühr pauschal 3.570,- Euro inkl. der gesetzlichen Mehrwertsteuer. |
Finanzierungsrechner:
Kaufpreis:
600.000 €
Eigenkapital:
600.000 €
Monatliche Rate
0 €
Effektiver Jahreszins
0 %
Sollzinsbindung
10 Jahre
Bausubstanz & Energieausweis
| Baujahr | 1981 |
|---|---|
| Bauphase | Haus fertig gestellt |
| Objektzustand | Gepflegt |
| Qualität der Austattung | Normal |
| Heizungsart | Öl-Heizung |
| Wesentliche Energieträger | Öl |
| Energieausweis | liegt vor |
| Energieausweistyp | Bedarfsausweis |
| Energieverbrauchskennwert | 193,1 kWh/(m²*a) |
| Energieeffizienzklasse | F |
193,1
kWh/(m²*a)
Energieeffizienzklasse F
- A+
- A
- B
- C
- D
- E
- F
- G
- H
- 0
- 25
- 50
- 75
- 100
- 125
- 150
- 175
- 200
- 225
- >250
Beschreibung des Objekts
Ausstattung
Das Haus ist hochwertig ausgestattet:
- Öl-Zentralheizung (1991)
- Kachelofen (1993)
- Holzfenster (1981)
- Parkett + Fliesen
- Terrasse + Garten
- Keller + Garage
Lage
Das Objekt liegt in einem ruhigen und gewachsenen Wohngebiet von Albstadt-Laufen. Die Umgebung ist geprägt von Ein- und Zweifamilienhäusern mit gepflegten Gärten und wenig Durchgangsverkehr. Durch die naturnahe Lage am Ortsrand ist man schnell im Grünen und genießt dennoch eine gute Erreichbarkeit des Ortskerns und des Bahnhofs.
Im Wohngebiet befinden sich zudem ein Kindergarten, sowie eine Grundschule, die Sie und Ihre Kinder gut zu Fuß erreichen können. Alle Geschäfte des täglichen Bedarfs, sowie Ärzte, Apotheken, Krankenhäuser, weiterführende Schulen und ein großes Freizeitangebot befinden sich im Nahe gelegenen Balingen und in Albstadt.
Albstadt-Laufen ist ein ruhiger und naturnaher Stadtteil der Großen Kreisstadt Albstadt im Zollernalbkreis. Die Umgebung der Schwäbischen Alb ist geprägt von idyllischer Landschaft, sanften Hügeln und ausgedehnten Wanderwegen – ideal für Naturliebhaber und Erholungssuchende.
Grundriss
Grundriss UG
>
>
Grundriss EG
>
>
Adresse
72459 Albstadt
Interessante Orte
Preis- und Lageinformationen
Preistrend für Bestandsimmobilien in Albstadt