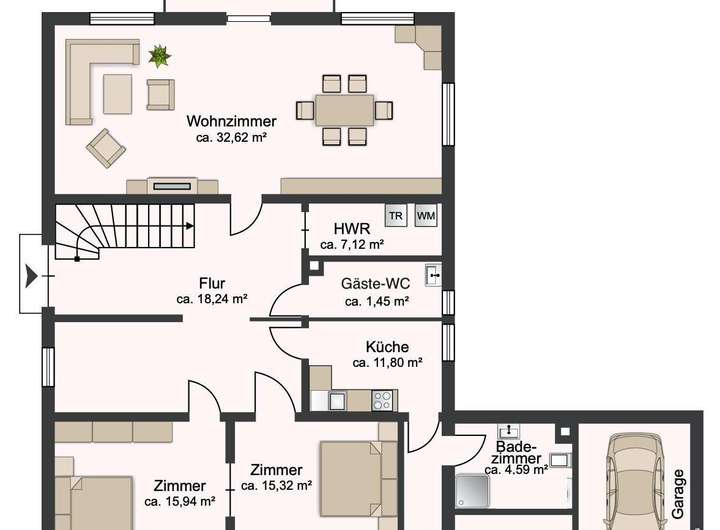
Diese in ca. 1878 errichtete Immobilie verfügt über rd. 211 m² Wohnfläche, die sich geräumig auf insgesamt zwei Etagen und acht Zimmer, eine Küche, zwei Badezimmer, ein Gäste-WC, einen Hauswirtschaftsraum sowie eine Diele und zwei Flure verteilen. Erdgeschoss ausgehen. Auf dieser Ebene befinden sich das große Wohnzimmer mit ca. 32,62 m² Fläche, zwei weitere Wohnräume, das Gäste-WC, die Küche, das natürlich belichtete Duschbad, der Hauswirtschaftsraum mit Ausgang zum Garten und ein Abstellraum. Die knapp 12 m² große Küche ist mit einer Einbauküche ausgestattet, von hier gelangt man in den Flur, der in das Duschbad und den Abstellraum führt. Vom Wohnzimmer aus gelangt man auf die nach Süd-Osten ausgerichtete Terrasse und in den Garten. Der schön angelegte und wenig einsehbare Gartenbereich ist besonders geeignet für Familien mit Kindern und lädt zum gemütlichen Beisammensein mit Freunden und der Familie ein. Eine mit Teppich verlegte Holztreppe führt in das Obergeschoss, in welchem sich fünf weitere Zimmer sowie das natürlich belichtete Badezimmer mit Wanne und Dusche befinden. Als Bodenbelag wurden Fliesen in der Diele und dem Flur des Erdgeschosses sowie den Bädern gewählt, die Wohnräume, die Treppe und der Flur im Obergeschoss sind größtenteils mit Teppich ausgestattet. Die Fenster sind doppelverglaste Holzfenster verschiedener Baujahre: die Fenster im Erdgeschoß zur Straße sind aus 2007, die in der Küche aus 2005, die Fenster im Wohnraum sind aus 1967. Die Fenster im Obergeschoss sind aus 1969, 1982, 1986 und 1988. Alle Fenster verfügen über manuell bzw. teilweise über elektrisch bedienbare Rollläden. Die Heizung ist eine Gaszentralheizung aus 1990. Mit ein wenig Aufwand kann diese schöne Immobilie als Ein-Zweifamilienhaus nach eigenen Vorstellungen gestaltet werden. Aufgrund des guten Raumangebots von acht Zimmern und zwei Bädern bietet sich das Haus auch für größere Familien an. Das Haus ist ideal für Interessenten, die sich in einer gut geschnittenen Immobilie mit vielerlei Gestaltungsmöglichkeiten in ruhiger Lage Arbergens wohl fühlen. Das Haus kann ab sofort frei geliefert werden, Besichtigungen sind nach Absprache möglich.
Freistehendes Einfamilienhaus mit schönem Garten und Garage in Arbergen
28307 Bremen
Die vollständige Adresse der Immobilie erhalten Sie vom Anbieter.
Auf Karte anzeigen
Die vollständige Adresse der Immobilie erhalten Sie vom Anbieter.

Finanzierungszertifikat
In nur zwei Minuten zu Ihrem persönlichen Finanzierungszertifkat.
Infos
Haustyp | Einfamilienhaus |
---|---|
Etagenzahl | 2 |
Wohnfläche ca. | 211 m2 |
Grundstücksfläche | 858 m2 |
Bezugsfrei ab | 01.12.2025 |
Zimmer | 8 |
Schlafzimmer | 2 |
Badezimmer | 2 |
Garage/Stellplatz | Garage |
Anzahl Garage/Stellplatz | 1 |
Kosten
Kaufpreis |
479.000 € |
---|---|
Provision |
3,57 % des Kaufpreises Das Angebot ist provisionspflichtig für den Erwerber. Die Provision in Höhe von 3,57 % inkl. der gesetzlichen Mwst. bezogen auf den Kaufpreis ist mit Vertragsabschluss verdient und fällig und vom Käufer an Studio 40 Immobilien Bremen zu zahlen. Irrtum und Zwischenverkauf sind vorbehalten. |
Finanzierungsrechner:
Kaufpreis:
600.000 €
Eigenkapital:
600.000 €
Monatliche Rate
0 €
Effektiver Jahreszins
0 %
Sollzinsbindung
10 Jahre
Bausubstanz & Energieausweis
Baujahr | 1878 |
---|---|
Objektzustand | Renovierungsbedürftig |
Qualität der Austattung | Normal |
Heizungsart | Gas-Heizung |
Wesentliche Energieträger | Gas |
Energieausweis | liegt vor |
Energieausweistyp | Bedarfsausweis |
Energieverbrauchskennwert | 313,6 kWh/(m²*a) |
Energieeffizienzklasse | H |
313,6
kWh/(m²*a)
Energieeffizienzklasse H
- A+
- A
- B
- C
- D
- E
- F
- G
- H
- 0
- 25
- 50
- 75
- 100
- 125
- 150
- 175
- 200
- 225
- >250
Beschreibung des Objekts
Ausstattung
- Zentrale und ruhige Lage in Arbergen - Großzügiges Haus mit gutem Raumangebot - Gäste-WC im Erdgeschoss - Zwei Bäder - Rückwärtige Terrasse - Balkon im Obergeschoss - Schuppen und Gartenhaus im Garten - Außenrollläden - Separate Küche mit Einbauküche - Teilkeller - Garage
Lage
Dieses schöne Einfamilienhaus befindet sich in Bremen-Arbergen, die Nachbarschaft des Hauses ist geprägt von gepflegten Einfamilienhäusern und Doppelhaushälften. Das Gebäude selber besticht insbesondere durch die uneinsehbare Lage in einer ruhigen Straße in einem geschlossenen Wohngebiet. Die Fassade passt sich gut dem Straßenzug mit den zahlreichen Einfamilienhäusern an und ergibt somit ein harmonisches Gesamtbild. Arbergen liegt im Osten Bremens und gehört zum Stadtteil Hemelingen. Der Ortsteil überzeugt durch seine ruhige, grüne Lage an der Weser und die gleichzeitig gute Anbindung an die Innenstadt. Am ca. 250 m entfernten und somit fußläufig erreichbaren Arberger Dorfmarkt befinden sich eine Arztpraxis und eine Apotheke. An jedem Freitagvormittag versorgt man sich dort auf dem beliebten Wochenmarkt. Der Weserpark mit seinen vielfältigen Geschäften, einem Kinokomplex sowie zahlreichen gastronomischen Angeboten ist nur 3,5 km von Arbergen gelegen. Der Ortsteil ist ideal für alle, die ein ruhiges und naturnahes Umfeld mit guter Infrastruktur suchen.
Sonstige Angaben
Diese Immobilie wird von Studio 40 Immobilien betreut. Wir sichern Ihnen einen professionellen und umfangreichen Service zu und bemühen uns, Ihre Anfrage zeitnah zu beantworten und Ihren Besichtigungswünschen flexibel entgegen zu kommen. Selbstverständlich stehen wir Ihnen auch außerhalb der gewöhnlichen Geschäftszeiten bei allen Fragen rund um die Immobilien zur Verfügung. Die Europäische Kommission stellt eine Plattform zur Online-Streitbeilegung (OS) bereit, die Sie hier finden http://ec.europa.eu/consumers/odr/. Verbraucher haben die Möglichkeit, diese Plattform für die Beilegung ihrer Streitigkeiten zu nutzen.
Grundriss
Grundriss Erdgeschoss
>

Grundriss Obergeschoss
>

Adresse
28307 Bremen
Interessante Orte
Preis- und Lageinformationen
Preistrend für Bestandsimmobilien in Arbergen