Dieses Haus vereint eine solide Bausubstanz mit modernen Erweiterungen und ist perfekt für Familien, die ein geräumiges Zuhause in einer angenehmen Lage suchen. Gerne vereinbaren wir einen Besichtigungstermin, um Ihnen dieses schöne Objekt persönlich vorzustellen.Dieses gepflegte Einfamilienhaus aus dem Baujahr ca. 1950 bietet auf einer Wohnfläche von etwa 186 m² viel Platz für die ganze Familie. Im Jahr 1993 wurde ein großzügiger Anbau hinzugefügt, der zusätzlichen Raum schafft, und im Jahr 2022 erfolgte ein weiterer Anbau, der das Haus noch vielseitiger nutzbar macht.
Das Haus verfügt über eine große Sonnenterrasse, die zum Entspannen im Freien einlädt und ideal für gesellige Stunden mit Familie und Freunden ist. Die kleine Gartenfläche bietet Raum für individuelle Gestaltungsmöglichkeiten, sei es für einen Gemüsegarten, Blumenbeete oder eine Sitzecke.
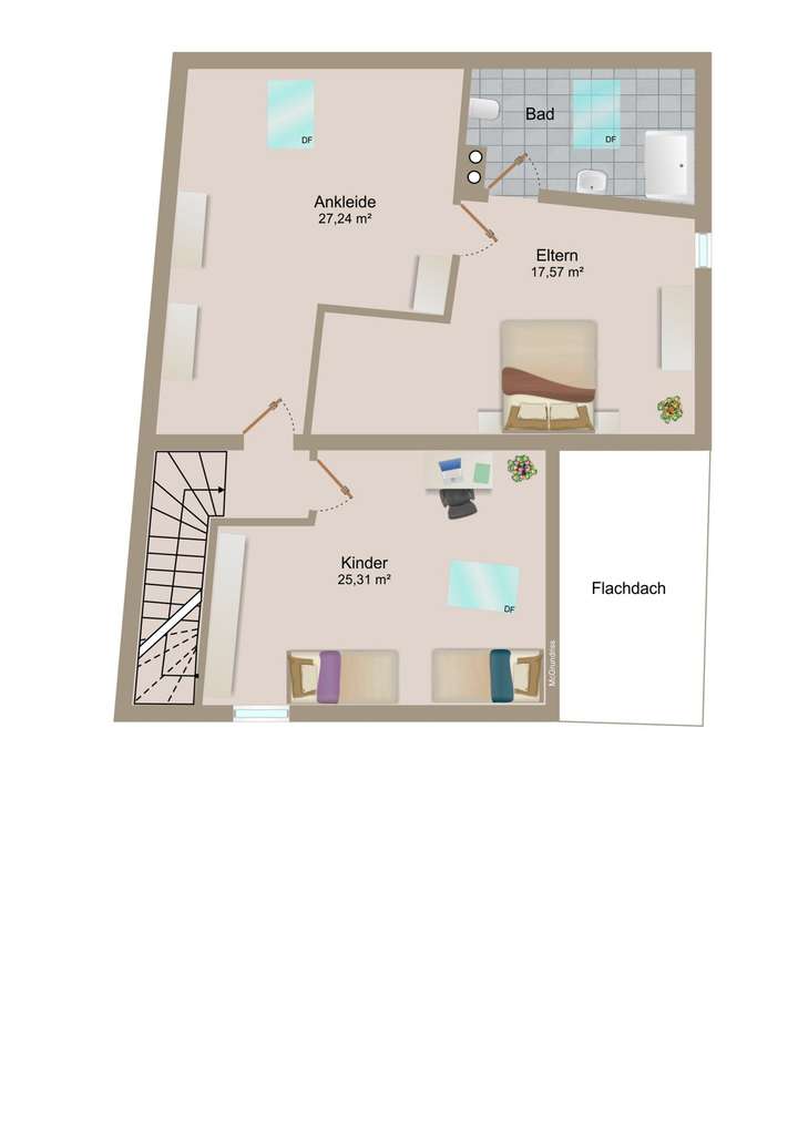
Im Dachgeschoss wurde im Jahr 2022 ein modernes Badezimmer fertiggestellt, das mit zeitgemäßer Ausstattung überzeugt und den Wohnkomfort erhöht. Die Doppelgarage bietet ausreichend Platz für Fahrzeuge und zusätzlichen Stauraum.
Dieses Haus vereint eine solide Bausubstanz mit modernen Erweiterungen und ist perfekt für Familien, die ein geräumiges Zuhause in einer angenehmen Lage suchen.
Gerne vereinbaren wir einen Besichtigungstermin, um Ihnen dieses schöne Objekt persönlich vorzustellen.
Attraktives Einfamilienhaus in Bilfingen – Viel Raum, moderne Ausstattung und eine schöne Lage
75236 Kämpfelbach
Die vollständige Adresse der Immobilie erhalten Sie vom Anbieter.
Auf Karte anzeigen
Die vollständige Adresse der Immobilie erhalten Sie vom Anbieter.
Finanzierungszertifikat
In nur zwei Minuten zu Ihrem persönlichen Finanzierungszertifkat.
Infos
| Haustyp | Einfamilienhaus |
|---|---|
| Wohnfläche ca. | 186 m2 |
| Nutzfläche | 50 m2 |
| Grundstücksfläche | 318 m2 |
| Zimmer | 6 |
| Schlafzimmer | 5 |
| Badezimmer | 2 |
| Garage/Stellplatz | Garage |
| Anzahl Garage/Stellplatz | 2 |
Kosten
| Kaufpreis |
589.000 € |
|---|---|
| Provision |
3,57 % inkl. MwSt. |
Finanzierungsrechner:
Kaufpreis:
600.000 €
Eigenkapital:
600.000 €
Monatliche Rate
0 €
Effektiver Jahreszins
0 %
Sollzinsbindung
10 Jahre
Bausubstanz & Energieausweis
| Baujahr | 1950 |
|---|---|
| Heizungsart | Holz-Pelletheizung |
| Wesentliche Energieträger | Gas |
| Energieausweis | liegt vor |
| Energieausweistyp | Bedarfsausweis |
| Energieverbrauchskennwert | 92,0 kWh/(m²*a) |
| Energieeffizienzklasse | C |
92,0
kWh/(m²*a)
Energieeffizienzklasse C
- A+
- A
- B
- C
- D
- E
- F
- G
- H
- 0
- 25
- 50
- 75
- 100
- 125
- 150
- 175
- 200
- 225
- >250
Beschreibung des Objekts
Ausstattung
- Massive Bauweise
- Ursprungsbaujahr ca. 1950
- Anbau ca. 1993
- Erweiterung ca. 2022
- Kunststoffenster weiss
- Gas Zentralheizung aus 1993
- Bad im DG 2022
- Bad im EG 1993
- Böden und Wände Eingangsbereich sowie im OG neu
- Dach aus 1993
- Einbauküche
- Doppelgarage
- Stellplatz neben der Garage
Lage
Bilfingen ist ein charmantes und ruhiges Ortsteil der Gemeinde Kämpfelbach in Baden-Württemberg. Die Ortschaft zeichnet sich durch ihre idyllische Lage aus, umgeben von grünen Wäldern und sanften Hügeln, die eine angenehme und naturnahe Atmosphäre schaffen.
Das Leben in Bilfingen ist geprägt von einer harmonischen Mischung aus ländlichem Charme und guter Anbindung an die städtische Infrastruktur. Hier finden Sie eine freundliche Gemeinschaft, gepflegte Häuser und gepflegte Grünflächen, die zum Verweilen und Entspannen einladen.
In Bilfingen gibt es eine gute Auswahl an Einkaufsmöglichkeiten, Schulen und Vereinen, die das Gemeinschaftsleben bereichern. Die Nähe zu Natur und Erholungsgebieten macht den Ort besonders attraktiv für Familien, Naturliebhaber und alle, die eine ruhige und dennoch gut angebundene Wohnlage suchen.
Ob Spaziergänge durch die umliegenden Wälder, Ausflüge in die Natur oder das genussvolle Leben in einer gepflegten Umgebung – Bilfingen bietet eine angenehme Lebensqualität in einer schönen, ländlichen Umgebung.
Grundriss
Grundriss EG
>
>
Grundriss DG
>
>
Grundriss UG
>
>
Adresse
75236 Kämpfelbach
Interessante Orte
Preis- und Lageinformationen
Preistrend für Bestandsimmobilien in Kämpfelbach