Willkommen in deinem zukünftigen Einfamilienhaus im Landhausstil mit Walmdach. Die ansprechende Fassadenaufdopplung sorgt für eine harmonische Ästhetik und fügt sich perfekt in die Umgebung ein. Der Übereck-Panorama-Erker im Erdgeschoss erweitert den Wohnraum und bietet dir viel Gestaltungsfreiheit. Er geht nahtlos in die Eingangsüberdachung über, sodass du dein Zuhause immer trocken und geschützt betreten kannst.
Bei LivingHaus kannst du dein Traumhaus ganz nach deinen individuellen Wünschen und Vorstellungen gestalten. Die hochwertige Traumküche wird speziell auf deinen Grundriss angepasst und bietet modernste Technik sowie clevere Stauraumlösungen. Diese wird rechtzeitig zum Einzug geliefert, sodass du sofort mit dem Kochen beginnen kannst.
Mit dem LivingHaus Bau-Cockpit behältst du jederzeit den Überblick über dein Bauprojekt. Die App ermöglicht dir den Zugriff auf Zeitpläne, Dokumente und viele weitere Informationen, die dir ein stressfreies Bauen ermöglichen.
I-KON - Intelligentes Bauen ist ein weiteres Highlight, das nachhaltiges Bauen mit modernster Technik kombiniert. Dein Haus wird energieeffizient und umweltfreundlich gestaltet, sodass du die Vorteile eines I-KON Effizienzhaus 55 genießen kannst, das nur 55 % der Energie eines Standardhauses benötigt.
Das Zuhause-Darlehen bietet dir die Möglichkeit, dein Traumhaus zu einem besonders günstigen Zinssatz zu finanzieren und von staatlichen Förderprogrammen zu profitieren.
Das Zuhause-Paket sorgt dafür, dass dein Haus mit einer hochwertigen Grundausstattung geliefert wird, inklusive moderner Böden, edler Türen und stilvollen Sanitäranlagen. Alles ist optimal aufeinander abgestimmt und fix und fertig geliefert.
Mit dem DIY-Ausbau-Coaching wirst du zum Profi in deinem eigenen Zuhause! In nur drei Tagen lernst du von Experten, wie du den Innenausbau selbst meisterst, und erhältst praxisnahe Tipps und Unterstützung.
Dein Zuhause, deine Freiheit: LivingHaus macht Träume lebendig!
74912 Kirchardt
Die vollständige Adresse der Immobilie erhalten Sie vom Anbieter.
Auf Karte anzeigen
Die vollständige Adresse der Immobilie erhalten Sie vom Anbieter.
Finanzierungszertifikat
In nur zwei Minuten zu Ihrem persönlichen Finanzierungszertifkat.
Infos
| Haustyp | Einfamilienhaus |
|---|---|
| Wohnfläche ca. | 134 m2 |
| Grundstücksfläche | 472 m2 |
| Zimmer | 5 |
| Schlafzimmer | 4 |
| Badezimmer | 1 |
Kosten
| Kaufpreis |
578.396 € |
|---|---|
| Provision | Nein |
Finanzierungsrechner:
Kaufpreis:
600.000 €
Eigenkapital:
600.000 €
Monatliche Rate
0 €
Effektiver Jahreszins
0 %
Sollzinsbindung
10 Jahre
Bausubstanz & Energieausweis
| Baujahr | 2026 |
|---|---|
| Bauphase | Haus in Planung (projektiert) |
| Heizungsart | Wärmepumpe |
| Energieausweis | liegt vor |
| Energieausweistyp | Bedarfsausweis |
| Energieverbrauchskennwert | 18,0 kWh/(m²*a) |
| Energieeffizienzklasse | A+ |
18,0
kWh/(m²*a)
Energieeffizienzklasse A+
- A+
- A
- B
- C
- D
- E
- F
- G
- H
- 0
- 25
- 50
- 75
- 100
- 125
- 150
- 175
- 200
- 225
- >250
Beschreibung des Objekts
Ausstattung
Dein zukünftiges Zuhause bietet eine Vielzahl von Ausstattungsmerkmalen, die auf deine individuellen Bedürfnisse abgestimmt sind. Du erhältst eine hochwertige Traumküche, die exakt auf deinen Grundriss zugeschnitten ist. Die moderne Ausstattung umfasst einen I-KON-Effizienzhaus-Standard, der für ein hohes Maß an Energieeffizienz sorgt. Das Zuhause-Paket beinhaltet edle Türen, moderne Böden und stilvolle Sanitäranlagen, alles optimal aufeinander abgestimmt. Zudem profitierst du von einer 18-monatigen Festpreisgarantie sowie essenziellen Bauversicherungen. Eine komplette Bauantragsplanung durch erfahrene Architekten und ein Bodengutachten für die ideale Gründung sind ebenfalls im Paket enthalten. Du erhältst zwei Tage Ausstattungsberatung und kannst die Baustelle mit einem Abfallcontainer und weiteren notwendigen Einrichtungen ausstatten lassen. Das DIY-Ausbau-Coaching bietet dir die Möglichkeit, den Innenausbau selbst zu gestalten, während die integrierte PV-Anlage und moderne Wärmepumpentechnik für ein angenehmes Raumklima sorgen. Dein "Wie ich es will Fertighaus" wird mit einem hohen Vorfertigungsgrad effizient und stressfrei errichtet.
Lage
Kirchardt bietet dir eine traumhafte Lage mit hervorragender Infrastruktur. Die Gemeinde im Landkreis Heilbronn überzeugt durch ihre zentrale Lage und vielfältigen Möglichkeiten.
Bildung ist top organisiert: Direkt vor Ort findest du mehrere Grundschulen und weiterführende Schulen. Der Kindergarten ist fußläufig erreichbar, perfekt für Familien mit kleinen Kindern.
Für die medizinische Versorgung stehen mehrere Allgemeinmediziner und Fachärzte zur Verfügung. Das nächste Krankenhaus in Eppingen ist schnell erreichbar.
Einkaufsmöglichkeiten sind vielfältig: Ein REWE-Markt, Aldi und Nahversorger decken deinen täglichen Bedarf ab. Größere Einkaufszentren in Heilbronn sind nur 20 Autominuten entfernt.
Pendler profitieren von der ausgezeichneten Verkehrsanbindung: Die A6 und A81 sind schnell erreichbar, was kurze Wege nach Heilbronn, Stuttgart und Karlsruhe ermöglicht. Der Bahnhof Kirchardt-Berwangen bietet zusätzliche Pendlermöglichkeiten.
Freizeitmöglichkeiten sind reichhaltig: Zahlreiche Wanderwege, Radstrecken und Naherholungsgebiete laden Naturliebhaber ein. Sportbegeisterte finden Tennisplätze, Fußballvereine und Reitanlagen in der Umgebung.
Ein Ort, an dem Familienglück, Natur und Infrastruktur perfekt zusammenspielen!
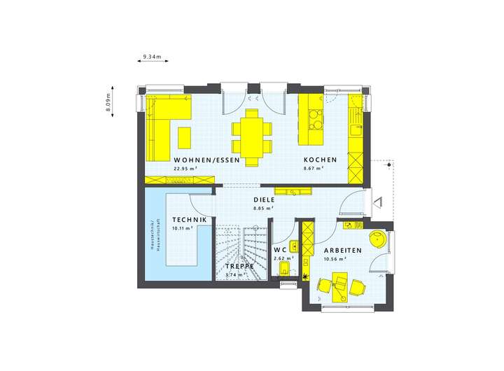
Grundriss
Cleverer Wohnraum kompakt
>
>
Familienfreundlicher Grundriss
>
>
Adresse
74912 Kirchardt
Interessante Orte
Preis- und Lageinformationen
Preistrend für Bestandsimmobilien in Kirchardt