Ihr Traum beginnt hier: Baugrundstück mit Planung für ein Zweifamilienhaus
Dieses großzügige Grundstück in ruhiger und begehrter Lage bietet Ihnen die ideale Basis für Ihr Bauvorhaben. Mit ca. 2.048 m² Grundstücksfläche eröffnen sich Ihnen vielseitige Möglichkeiten.
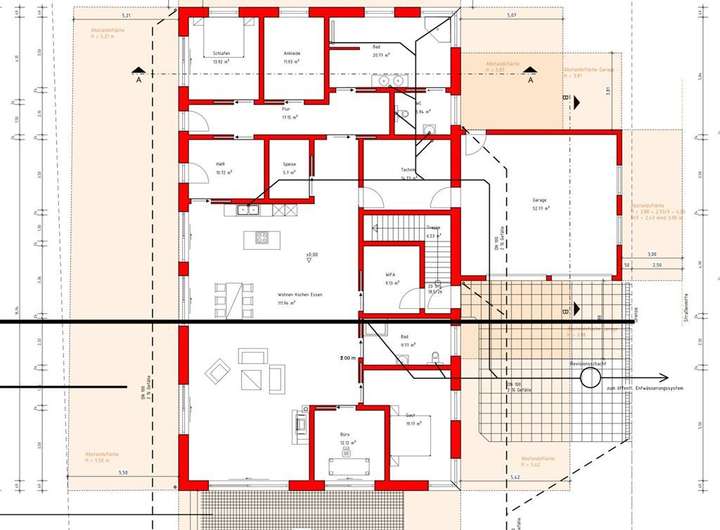
Besonders attraktiv: Es liegt bereits eine Planung für ein modernes Zweifamilienhaus vor – perfekt geeignet zur Vermietung, als Mehrgenerationenhaus oder für Wohnen mit Nebeneinkünften zugleich.
Die Planung sieht zwei großzügige Wohneinheiten vor:
- Jede Einheit bietet ein großes, lichtdurchflutetes Wohn- und Esszimmer mit offener Küche, das den Mittelpunkt des Familienlebens bildet.
- Ein Schlafzimmer, ein Ankleidezimmer sowie zwei weitere Zimmer bieten ausreichend Platz für Kinder, Gäste oder ein Homeoffice.
- Zudem sind pro Einheit zwei moderne Badezimmer sowie ein zusätzliches Gäste-WC mit Dusche vorgesehen.
- Terrasse oder Balkon schaffen zusätzlichen Wohnkomfort im Freien.
- Durch die geplante Doppelgarage, haben beide Einheiten jeweils eine Garage und ein Stellplatz.
Durchdachte Grundrisse, helle Räume und eine klare Architektur machen dieses Haus zu einer zukunftssicheren Wohnlösung mit viel Gestaltungsfreiheit.
Bitte beachten Sie: Alle Angaben zur Bebaubarkeit basieren auf Informationen des Bauamts und sind ohne Gewähr. Die Realisierung Ihrer Bauwünsche hängt von der individuellen Prüfung und Genehmigung durch die zuständigen Behörden ab. Wir empfehlen, frühzeitig mit einem Architekten oder Fachplaner in die Detailabstimmung zu gehen.
Großzügiges Baugrundstück mit Planung für ein Zweifamilienhaus
91735 Muhr am See
Die vollständige Adresse der Immobilie erhalten Sie vom Anbieter.
Auf Karte anzeigen
Die vollständige Adresse der Immobilie erhalten Sie vom Anbieter.
Finanzierungszertifikat
In nur zwei Minuten zu Ihrem persönlichen Finanzierungszertifkat.
Infos
| Vermarktungsart | Kaufen |
|---|---|
| Grundstücksfläche | 2.048 m2 |
| Erschließung | Erschlossen |
Kosten
| Miete pro Jahr |
379.500 € |
|---|---|
| Provision |
3,57 % inkl. MwSt. |
Finanzierungsrechner:
Kaufpreis:
600.000 €
Eigenkapital:
600.000 €
Monatliche Rate
0 €
Effektiver Jahreszins
0 %
Sollzinsbindung
10 Jahre
Beschreibung des Objekts
Lage
Das Grundstücke befindet sich in begehrter Wohnlage von Muhr am See und bietet eine ideale Kombination aus Ruhe und guter Verkehrsanbindung:
- Öffentliche Verkehrsmittel: Die Bushaltestelle ist nur etwa 200 m entfernt, der Bahnhof Muhr am See ist
in ca. 10 Gehminuten erreichbar
- Autobahnanbindung: In ca. 15 Minuten ist man auf der A6 und damit schnell in Ansbach oder Nürnberg
- Einkaufsmöglichkeiten: Geschäfte des täglichen Bedarfs befinden sich in einem Umkreis von ca. 2 km
- Freizeit: Der Altmühlsee liegt in unmittelbarer Nähe und ist in wenigen Minuten zu Fuß erreichbar.
Besonders hervorzuheben ist die Vogelinsel mit einem ca. 1,5 km langen Lehrpfad und Aussichtsturm, die ca. 300 m entfernt liegt und in etwa 4 Gehminuten zu erreichen ist. Sie bietet natur- und vogelkundliche Führungen an und ist ein Paradies für Naturbeobachter.
Diese Lage ist ideal für Familien und Investoren, die kurze Wege und eine naturnahe Umgebung
schätzen.
Sonstige Angaben
Überzeugen Sie sich selbst von den vielseitigen Möglichkeiten dieses Grundstücks und lassen Sie Ihre Vision von einem neuen Zuhause oder einer attraktiven Investition wahr werden.
Wir sind Ihr exklusiver Ansprechpartner und freuen uns, Ihnen diese Grundstücke persönlich vorzustellen. Bitte senden Sie uns Ihre Anfrage mit Ihren vollständigen Kontaktdaten.
Wir vermitteln – mit Sicherheit.
Grundriss
EG
>
>
DG
>
>
Bauplanung 1
>
>
Bauplanung 2
>
>
Bauplanung / Zweifamilienhaus
>
>
ImmoScout24 Gold Partner
>
>
Top 10 Immobilienpreis
>
>
Immowelt Platin Partner
>
PDF
Download
>