Zum Verkauf steht ein liebevoll gestaltetes, freistehendes Einfamilienhaus aus dem Jahr 1953, welches 2010 umfassend saniert wurde.
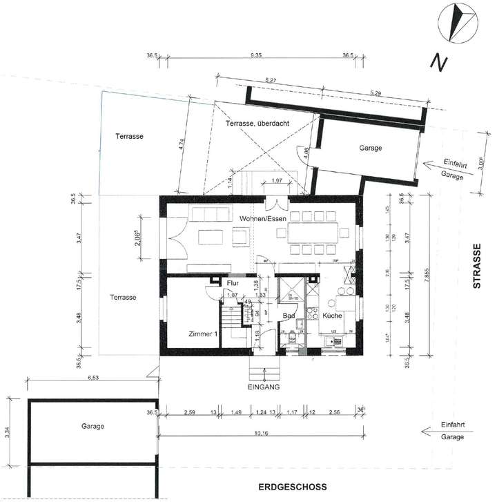
Schon beim Betreten des Hauses erwartet Sie ein heller und offener Eingangsbereich.
Von dort aus erreichen Sie das erste Badezimmer mit Außenfenster und ebenerdiger Dusche.
Geradeaus kommen Sie in den großzügigen, offenen und lichtdurchfluteten Wohn-/Essbereich mit Eichenholzfußboden, der mit seinen großen, bodentiefen Fenstern einen traumhaften Blick in Ihren großzügigen Garten bietet. Im Winter können Sie hier abends vor dem gemütlichen Kamin sitzen.
Von hier aus haben Sie Zugang zur einladenden, teilweise überdachten, Sonnenterrasse und den Garten und können die Natur in vollen Zügen genießen.
Die offene Küche mit zwei weiteren Fenstern zweigt vom Wohn/Essbereich ab und bietet Platz für eine moderne Einbauküche.
Ebenfalls auf dieser Etage befindet sich ein weiteres Zimmer mit Gartenblick, welches als Gäste- oder Kinderzimmer genutzt werden kann.
Über eine ansprechende Holztreppe erreichen Sie die obere Etage des Hauses.
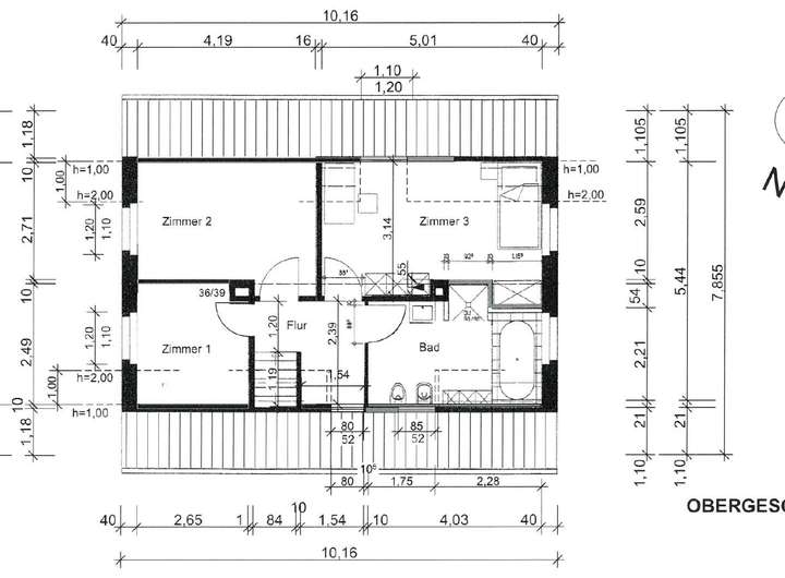
Hier befindet sich das zweite, hell geflieste, großzügige Badezimmer mit Dusche, Badewanne, Bidet, WC und zwei Fenstern.
Das Schlafzimmer mit Blick in den Garten bietet Morgensonne mit seiner Ausrichtung nach Osten.
Das Kinderzimmer verfügt über zwei Fenster und ist hell und geräumig.
Ein kleines Zimmer auf dieser Etage kann sehr gut als Arbeitszimmer genutzt werden.
Das gedämmte Dachgeschoss bietet weitere Ausbaureserven und wird aktuell als praktischer Lagerraum genutzt.
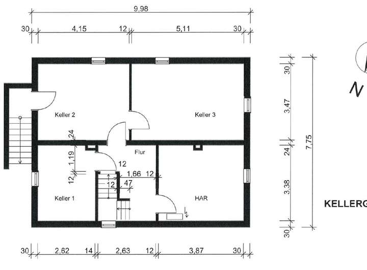
Gestaltungsmöglichkeiten bietet Ihnen auch der Keller mit seinen vier Räumen, die aktuell als Hobbyraum, Wäschekeller, Archiv und Vorratsraum genutzt werden.
Die Wohnfläche beträgt ca. 117 m² und lässt sich bei Bedarf um einen zum Garten hin ausgerichteten Anbau erweitern.
Mit aktuell 2 Schlafräumen bietet das Haus Platz für eine kleine Familie, Paare oder Singles mit besonderem Anspruch.
Freistehendes Einfamilienhaus mit großzügigem Garten im Herzen von Urdenbach - provisionsfrei
40593 Düsseldorf
Die vollständige Adresse der Immobilie erhalten Sie vom Anbieter.
Auf Karte anzeigen
Die vollständige Adresse der Immobilie erhalten Sie vom Anbieter.
Finanzierungszertifikat
In nur zwei Minuten zu Ihrem persönlichen Finanzierungszertifkat.
Infos
| Haustyp | Einfamilienhaus |
|---|---|
| Etagenzahl | 2 |
| Wohnfläche ca. | 117 m2 |
| Nutzfläche | 120 m2 |
| Grundstücksfläche | 881 m2 |
| Bezugsfrei ab | 11.11.2025 |
| Zimmer | 5 |
| Schlafzimmer | 2 |
| Badezimmer | 2 |
Kosten
| Kaufpreis |
880.000 € |
|---|---|
| Provision | Nein |
Finanzierungsrechner:
Kaufpreis:
600.000 €
Eigenkapital:
600.000 €
Monatliche Rate
0 €
Effektiver Jahreszins
0 %
Sollzinsbindung
10 Jahre
Bausubstanz & Energieausweis
| Baujahr | 1953 |
|---|---|
| Letzte Sanierung | 2018 |
| Bauphase | Haus fertig gestellt |
| Objektzustand | Modernisiert |
| Qualität der Austattung | Gehoben |
| Heizungsart | Gas-Heizung |
| Wesentliche Energieträger | Gas |
| Energieausweis | liegt vor |
| Energieausweistyp | Bedarfsausweis |
| Energieverbrauchskennwert | 170,9 kWh/(m²*a) |
| Energieeffizienzklasse | F |
170,9
kWh/(m²*a)
Energieeffizienzklasse F
- A+
- A
- B
- C
- D
- E
- F
- G
- H
- 0
- 25
- 50
- 75
- 100
- 125
- 150
- 175
- 200
- 225
- >250
Beschreibung des Objekts
Ausstattung
Neben dem Wohnhaus gibt es zwei Garagen und einen weiteren Stellplatz in der Einfahrt, einen separaten Geräteschuppen und ein schönes neues Gartenhaus.
Der Garten ist liebevoll gestaltet und von Hecken und alten Bäumen umgeben, hat aber dennoch den ganzen Tag Sonne.
Das Haus wurde bei Einzug im Jahre 2010 gründlich saniert.
Es wurden elektrische Leitungen und Wasserleitungen erneuert, alle Bäder saniert und Wände versetzt oder herausgenommen. Die alten Fenster wurden durch Fenster mit Dreifach-Verglasung ersetzt, teilweise vergrößert und mit elektrischen, automatisch gesteuerten Jalousien versehen. Im Erdgeschoss wurde Eichenparkett (geölt) verlegt. Im Wohnzimmer wurde ein Kaminofen angeschlossen.
Als Eingangstür wurde eine attraktive, moderne Haustür aus Holz verbaut.
Kellertür und Kellerfenster wurden erneuert.
Internetanschluss per Kabel ist vorhanden, ein moderner Glasfaseranschluss ist beantragt.
Bei der Heizungsanlage aus dem Jahre 2018 handelt es sich um eine moderne Gasheizung.
Lage
Düsseldorf-Urdenbach - das „Dorf mit Herz“ - ist ein Stadtteil mit besonderem Charme und einer hervorragenden Lage.
Das Haus liegt ruhig und dennoch zentral als eines der wenigen freistehenden Einfamilienhäuser der Schlossparksiedlung in einer kleinen Straße mit wenigen Doppelhäusern und netter Nachbarschaft.
Der große Garten ist durch hohe Hecken geschützt und bietet Raum für glückliche Stunden und vielseitige Hobbies.
Das Naturschutzgebiet „Urdenbacher Kämpe“ ist in wenigen Gehminuten zu erreichen, ebenso nah sind der Rhein und das Benrather Schloss.
In der Nähe finden Sie zahlreiche Einkaufsmöglichkeiten, Restaurants, Cafés und Freizeiteinrichtungen, die für eine hohe Lebensqualität sorgen.
Auch Schulen und Kindergärten befinden sich in der Nähe, was das Wohngebiet besonders attraktiv für Familien macht.
Hier erwartet Sie ein harmonisches Wohnumfeld mit optimaler Anbindung an die Innenstadt von Düsseldorf und die umliegenden Städte. Die Anbindung an die Autobahn und das gut ausgebaute Netz an öffentlichen Verkehrsmitteln, besonders die Nähe zum Bahnhof Benrath und seiner direkten Anbindung mit der Regionalbahn zum Flughafen Düsseldorf sorgen für eine unkomplizierte Mobilität.
Sonstige Angaben
Die Immobilie ist nicht vermietet und kann sofort bezogen werden.
Hinweis für Makler:
Der Verkauf erfolgt von privat. Es wird kein Maklervertrag abgeschlossen, und eine Provisionszahlung durch den Verkäufer ist ausgeschlossen.
Besichtigungstermine mit Maklern werden ausschließlich in Begleitung konkreter Kaufinteressenten vereinbart.
Etwaige Maklerbeauftragungen durch Interessenten erfolgen in deren eigenem Namen und auf eigene Rechnung.
Grundriss
Grundriss Erdgeschoss
>
>
Grundriss Dachgeschoss
>
>
Grundriss Kellergeschoss
>
>
Adresse
40593 Düsseldorf
Interessante Orte
Preis- und Lageinformationen
Preistrend für Bestandsimmobilien in Urdenbach