Erleben Sie das Beste vom Marktführer – Ihr unschlagbares Angebot für den Traum vom Eigenheim! Entscheiden Sie sich für ein Ausbauhaus, das keine Wünsche offenlässt: Außen fix und fertig, innen perfekt vorbereitet für Ihre individuelle Gestaltung. So wird Ihre Wohnverwirklichung einfach, flexibel und effizient. Und das beste daran: Sie können bis zu 70.000€ oder mehr dabei sparen!
Projekt Zweifamilienhaus – Kosten teilen, Vorteile doppelt nutzen
30938 Burgwedel
Die vollständige Adresse der Immobilie erhalten Sie vom Anbieter.
Auf Karte anzeigen
Die vollständige Adresse der Immobilie erhalten Sie vom Anbieter.

Finanzierungszertifikat
In nur zwei Minuten zu Ihrem persönlichen Finanzierungszertifkat.
Infos
Haustyp | Mehrfamilienhaus |
---|---|
Wohnfläche ca. | 205 m2 |
Grundstücksfläche | 800 m2 |
Zimmer | 8 |
Schlafzimmer | 6 |
Badezimmer | 2 |
Kosten
Kaufpreis |
810.000 € |
---|---|
Provision | Nein |
Finanzierungsrechner:
Kaufpreis:
600.000 €
Eigenkapital:
600.000 €
Monatliche Rate
0 €
Effektiver Jahreszins
0 %
Sollzinsbindung
10 Jahre
Bausubstanz & Energieausweis
Bauphase | Haus in Planung (projektiert) |
---|---|
Objektzustand | Erstbezug |
Qualität der Austattung | Gehoben |
Heizungsart | Fußbodenheizung |
Wesentliche Energieträger | Strom |
Beschreibung des Objekts
Ausstattung
✔ Hochdämmende Außenwände und 3-fach-Wärme-/Lärmschutzverglasung – Komfort und Energieeffizienz auf höchstem Niveau (KFW55 im Standard, 40 und 40PLUS möglich) ✔ Moderne Fußbodenheizung – Wohlfühlklima für jeden Schritt ✔ Kontrollierte Wohnraumlüftung – frische Luft, gesünderes Wohnen ✔ Luft-Wasser-Wärmepumpe – nachhaltige Energieversorgung, die sich auszahlt ✔ Freie Grundrissplanung mit unseren Architekten – Ihre Ideen, perfekt umgesetzt ✔ Beispielgrundstück inklusive, basierend auf den regionalen Preisen Und vieles mehr!
Lage
Wo möchten Sie Ihr Traumhaus bauen? Egal ob Sie bereits ein Grundstück haben oder noch auf der Suche sind – wir stehen Ihnen von Anfang an zur Seite! • Kostenfreie Unterstützung bei der Grundstückssuche – wir helfen Ihnen, den passenden Bauplatz zu finden. • Planung auch ohne Grundstück möglich – starten Sie einfach jetzt, ganz unabhängig vom Bauort. • 15 Monate Festpreisgarantie – volle Sicherheit, auch wenn die Grundstückssuche länger dauert. So können Sie ganz entspannt Ihr Eigenheim planen – selbst dann, wenn die Chancen im Moment gering erscheinen. Mit uns bleiben Ihre Wünsche realistisch und sicher umsetzbar!
Sonstige Angaben
Sind Sie bereit den ersten Schritt Richtung Eigenheim zu wagen? Rufen Sie mich einfach an oder schreiben Sie mir bequem per WhatsApp unter 0152 59141888. Ich freue mich darauf, von Ihnen zu hören und Sie auf dem Weg zu Ihrem eigenen Zuhause zu begleiten! Daniel Kraus Ihr Berater bei massa haus Musterhaus Langenhagen
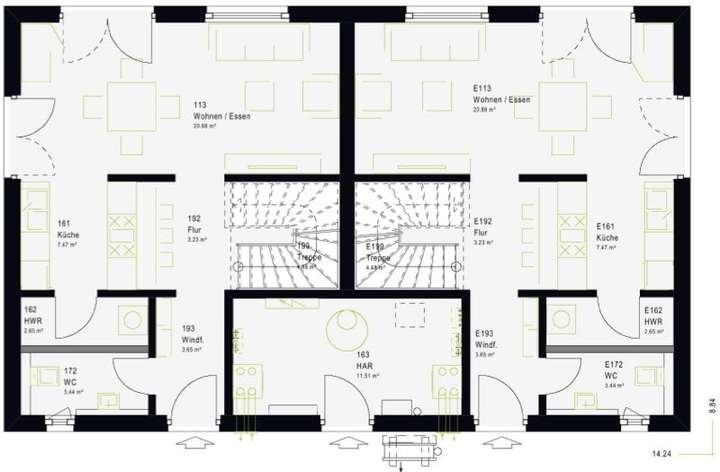
Grundriss
Erdgeschoss
>

Dachgeschoss
>

Adresse
30938 Burgwedel
Interessante Orte
Preis- und Lageinformationen
Preistrend für Bestandsimmobilien in Burgwedel