In Ihrem Zuhause wollen Sie sich frei entfalten und viel Platz haben? Dieses Haus bietet zudem 4 Stellplätze, einen Pool und ein sehr schön angelegtes Grundstück. Mitten in Bad Saarow!
Die Lage Ihres neuen Zuhauses könnte besser kaum sein, da es direkt im Ortskern von Bad Saarow ist. Details entnehmen Sie der unten angefügten Lagebeschreibung.
Fragen Sie jetzt das ausführliche Exposé an.
Zentral. Selten. Spektakulär. – Haus mit Traumgrundstück in Bad Saarow
15526 Bad Saarow
Die vollständige Adresse der Immobilie erhalten Sie vom Anbieter.
Auf Karte anzeigen
Die vollständige Adresse der Immobilie erhalten Sie vom Anbieter.
Finanzierungszertifikat
In nur zwei Minuten zu Ihrem persönlichen Finanzierungszertifkat.
Infos
| Haustyp | Einfamilienhaus |
|---|---|
| Etagenzahl | 2 |
| Wohnfläche ca. | 345 m2 |
| Nutzfläche | 110,5 m2 |
| Grundstücksfläche | 1.807 m2 |
| Bezugsfrei ab | Sofort |
| Zimmer | 8 |
| Badezimmer | 3 |
| Garage/Stellplatz | Garage |
| Anzahl Garage/Stellplatz | 4 |
Kosten
| Kaufpreis |
845.000 € |
|---|---|
| Provision |
3,57% vom vereinbarten Kaufpreis Bitte beachten Sie die Provisionsvereinbarungen, welche Sie vor Erhalt des Exposés digital bestätigt haben werden. |
Finanzierungsrechner:
Kaufpreis:
600.000 €
Eigenkapital:
600.000 €
Monatliche Rate
0 €
Effektiver Jahreszins
0 %
Sollzinsbindung
10 Jahre
Bausubstanz & Energieausweis
| Baujahr | 1922 |
|---|---|
| Letzte Sanierung | 2018 |
| Bauphase | Haus fertig gestellt |
| Objektzustand | Renovierungsbedürftig |
| Qualität der Austattung | Normal |
| Heizungsart | Zentralheizung |
| Wesentliche Energieträger | Gas |
| Energieausweis | liegt vor |
| Energieausweistyp | Bedarfsausweis |
| Energieverbrauchskennwert | 188,2 kWh/(m²*a) |
| Energieeffizienzklasse | F |
188,2
kWh/(m²*a)
Energieeffizienzklasse F
- A+
- A
- B
- C
- D
- E
- F
- G
- H
- 0
- 25
- 50
- 75
- 100
- 125
- 150
- 175
- 200
- 225
- >250
Beschreibung des Objekts
Ausstattung
Dieses Zuhause bietet eine seltene Gelegenheit in bester Lage von Bad Saarow – ein Haus mit großem Garten, das viel Platz für Familie, Freizeit und individuelle Gestaltungsideen eröffnet. Der Außenbereich ist das Herzstück: Ein weitläufiges Grundstück mit altem Baumbestand, Rasenflächen und Sitzbereichen schafft eine private Wohlfühloase.
Im Erdgeschoss erwartet Sie ein Wohnzimmer mit direktem Blick in den Garten. Große Fensterflächen lassen viel Tageslicht herein und schaffen ein freundliches Wohnklima. Eine Terrasse schließt an und macht den Übergang ins Freie besonders angenehm – ideal für lange Sommerabende oder Frühstück in der Morgensonne.
Die Küche ist funktional ausgestattet, entspricht aber nicht mehr den heutigen Designstandards. Zwei Bäder stehen zur Verfügung: das Bad im Erdgeschoss (2005) und das Bad im Obergeschoss (1998). Beide sind sauber und nutzbar, bieten jedoch Modernisierungspotenzial.
Im Obergeschoss sorgen gemütliche Dachschrägen für Atmosphäre. Der Keller stellt zusätzliche Abstellfläche sowie Platz für Hauswirtschaft oder Hobby bereit.
Technisch wurden wichtige Maßnahmen umgesetzt: Die Fenster stammen aus 1996, sind funktional, aber energetisch nicht mehr auf aktuellem Niveau. Die Heizungsanlage wurde 2020 erneuert und sorgt für eine zuverlässige Wärmeversorgung. Insgesamt zeigt sich das Haus gepflegt, mit solider Substanz – aber mit erkennbaren Modernisierungsbedarfen in mehreren Bereichen.
Lage
Bad Saarow – Großzügig wohnen im Herzen eines der begehrtesten Kurorte Brandenburgs
Wer das Besondere sucht, wird in Bad Saarow fündig: Der charmante Kurort am Scharmützelsee vereint hohe Lebensqualität mit hervorragender Infrastruktur und natürlicher Umgebung. Hier wohnen Menschen, die Erholung, Lebensstil und gute Erreichbarkeit miteinander verbinden möchten – sei es als Lebensmittelpunkt, Rückzugsort oder neue Heimat für die ganze Familie.
Zentrale Lage mit kurzen Wegen und hohem Komfort
Das Haus liegt in bester innerörtlicher Lage – alle wichtigen Einrichtungen des täglichen Lebens sind in wenigen Minuten fußläufig erreichbar:
• EDEKA, Netto, Bäckerei & Café: unter 200 m
• Kita, Grund- und Oberschule: ca. 450 m entfernt
• Bahnhof Bad Saarow: ca. 330 m – perfekte Anbindung nach Fürstenwalde oder Berlin
• Kurpark, Kino, Cafés und Gastronomie: direkt um die Ecke
• Ärzte, Apotheken und das Klinikum Bad Saarow: in unmittelbarer Nähe
Der Ortskern ist lebendig, aber nicht überlaufen – das Wohnumfeld bietet eine ideale Balance aus Infrastruktur, Natur und Privatsphäre.
Ein Standort mit Perspektive
Bad Saarow gehört zu den stabilsten Wohnmärkten Brandenburgs – geprägt durch Nachfrage aus dem Berliner Raum, medizinische Versorgung auf Klinikniveau, hochwertige Freizeitangebote und starke Lebensqualität. Immobilien in zentraler Lage mit hoher Wohnfläche sind äußerst selten und werden langfristig wertstabil bleiben. Die Wertentwicklung in den letzten Jahren war ebenfalls sehr beachtlich - ca. +87% (Quelle: Sprengnetter).
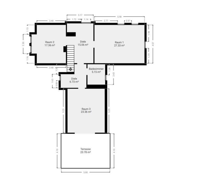
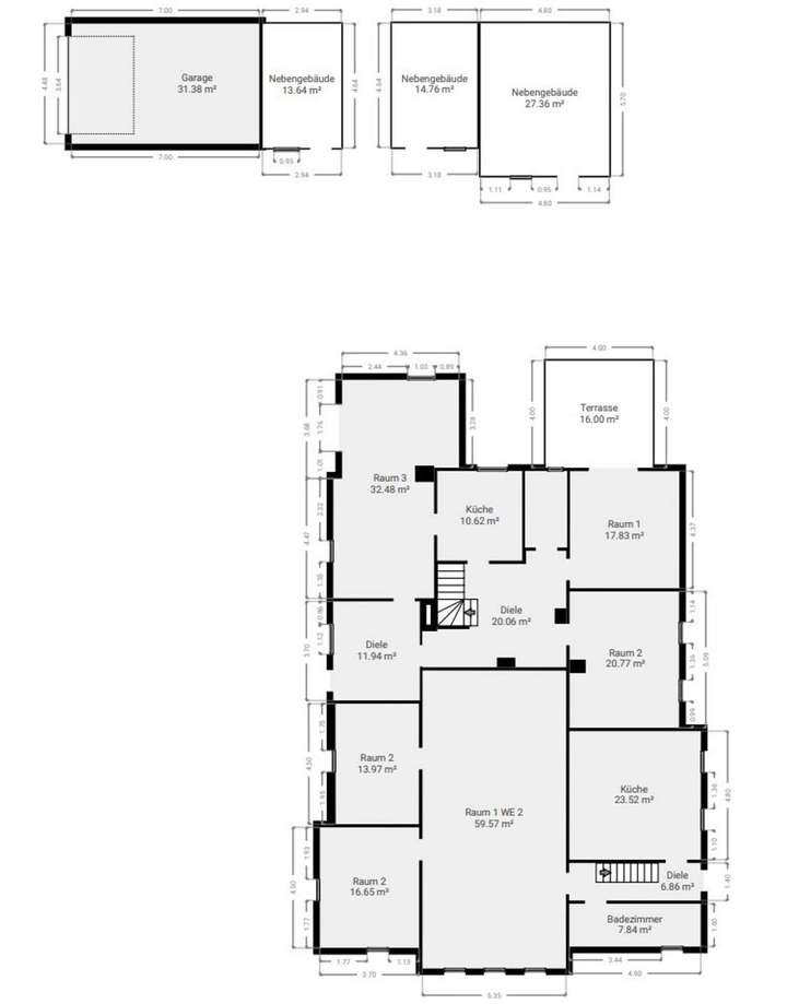
Grundriss
EG
>
>
DG
>
>
Adresse
15526 Bad Saarow
Interessante Orte
Preis- und Lageinformationen
Preistrend für Bestandsimmobilien in Bad Saarow