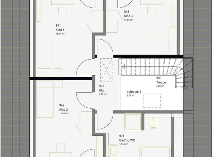
Bei dieser attraktiven Immobilie handelt es sich um einen Erstbezug. Das zweistöckige Einfamilienhaus zeichnet sich durch eine gehobene Innenausstattung aus. Neben fünf schönen Zimmern gibt es auch ein weiteres WC für Gäste. Das 2025 erbaute Gebäude wird per Wärmepumpe beheizt.
Bauen auch Sie mit dem Marktführer
37154 Northeim
Die vollständige Adresse der Immobilie erhalten Sie vom Anbieter.
Auf Karte anzeigen
Die vollständige Adresse der Immobilie erhalten Sie vom Anbieter.
Finanzierungszertifikat
In nur zwei Minuten zu Ihrem persönlichen Finanzierungszertifkat.
Infos
| Haustyp | Einfamilienhaus |
|---|---|
| Etagenzahl | 2 |
| Wohnfläche ca. | 145 m2 |
| Grundstücksfläche | 500 m2 |
| Zimmer | 5 |
| Schlafzimmer | 3 |
| Badezimmer | 1 |
Kosten
| Kaufpreis |
288.473 € |
|---|---|
| Provision | Nein |
Finanzierungsrechner:
Kaufpreis:
600.000 €
Eigenkapital:
600.000 €
Monatliche Rate
0 €
Effektiver Jahreszins
0 %
Sollzinsbindung
10 Jahre
Bausubstanz & Energieausweis
| Baujahr | 2025 |
|---|---|
| Bauphase | Haus in Planung (projektiert) |
| Objektzustand | Erstbezug |
| Qualität der Austattung | Gehoben |
| Energieausweis | liegt vor |
| Energieausweistyp | Bedarfsausweis |
| Energieverbrauchskennwert | 50,0 kWh/(m²*a) |
| Energieeffizienzklasse | A+ |
50,0
kWh/(m²*a)
Energieeffizienzklasse A+
- A+
- A
- B
- C
- D
- E
- F
- G
- H
- 0
- 25
- 50
- 75
- 100
- 125
- 150
- 175
- 200
- 225
- >250
Beschreibung des Objekts
Ausstattung
Bauen Sie mit dem Marktführer!
Dieses Haus, und über 100 weitere Haustypen stehen zur Auswahl.
Unsere projektierten Ausbauhäuser sind von außen fertig verputzt, mit Fenstern, Eingangstür, Dacheindeckung und Dachrinnen. Die Heizungsanlage mit Fußbodenheizung, mit kompletter Elektroinstallation, sowie der Buche-Holztreppe EG/DG sind inkl. Montage enthalten.
Weiter im Preis enthalten sind:
+ inkl. KFW 55 - Effizienzhaus (KFN ready 2023)
+ inkl. Architektenleistungen (Genehmigungsplanung und Bauantrag)
+ inkl. Bodenplatte (oder optional Keller)
+ inkl. Baugrunduntersuchung (Bodengutachten)
+ inkl. Dacheindeckung (Selbstreinigende Dachziegel)
+ inkl. mineralischer Struktur-Außenputz (weiß)
+ inkl. 3-fach verglaste Wärmeschutzfenster (weiß)
+ inkl. Aluminium-Rollläden (Alupanzer)
+ inkl. modernem Haustürelement (z. Auswahl)
+ inkl. Heizungsanlage mit Montage
+ inkl. Luft-Wasser-Wärmepumpe
+ inkl. Fußbodenheizung
+ inkl. Integrierte Be- und Entlüftungsanlage mit Wärmerückgewinnung
+ inkl. Sanitärrohinstallation
+ inkl. Elektroinstallation mit Montage
+ inkl. dem hochwertigen Materialpaket für Dämmung und Beplankung
+ inkl. Buche-Holztreppe EG/DG
Ihre Individuelle Ausstattung für den Innenausbau (Bodenbeläge, Sanitärobjekte) können Sie selbst auswählen und so bestimmen Sie den Preis und die Qualität der Materialien für Ihren Innenausbau.
zzgl. Baunebenkosten, Außenanlage und Ausstattung für den Innenausbau, gemäß Ihren Wünschen.
Gerne erstelle ich Ihnen ein detailliertes und individuelles Angebot und berücksichtige dabei exakt Ihre persönlichen Wünsche!
Lage
Ein Grundstück ist im Preis nicht inbegriffen.
Sie besitzen bereits ein Grundstück?
Perfekt, dann lassen Sie uns gemeinsam planen, was auf Ihrem Grundstück realisiert werden kann.
Sie beabsichtigen ein Grundstück zu kaufen? ...wir prüfen ob baurechtlich alles passt.
Bitte haben Sie Verständnis dafür, dass wir aufgrund der aktuell sehr angespannten Situation am Grundstücksmarkt vorab keine Adressen von Bauplätzen kommunizieren können.
Die Unterstützung bei der Grundstückssuche erfolgt ausschließlich für meine Kunden.
Sonstige Angaben
Deutschlands meistverkaufte Ausbauhäuser
- persönliche Erfahrung von mehr als 250 gebauten Häusern
- über 44 Jahre Bauerfahrung
- 15 Monate Festpreisgarantie
- Bezahlung des Hauses nach Montage / Abnahme
- keine Vorauszahlung
- Montage innerhalb von 2-4 Tagen
- professionelle Ausbauberatung vor Ort
- persönliche Baubetreuung
- 33 Jahre Gewährleistung auf Grundkonstruktion
- Nachweislich gesundes Bauen: TÜV
Siegel "Toxproof"
- Sicherheit von einem deutschen Großunternehmen
- über 39.000 Häuser "Made in Germany"
Vereinbaren Sie noch heute einen kostenlosen und unverbindlichen Beratungstermin.
Ich freue mich auf Ihren Anruf!
Ihr Verkaufsberater
Jörg Rakebrandt
Mobil: 0171 3833585
email: joerg.rakebrandt@massa-haus.de
Adresse
37154 Northeim
Interessante Orte
Preis- und Lageinformationen
Preistrend für Bestandsimmobilien in Northeim