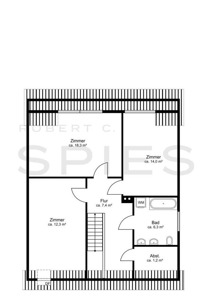
Das angebotene Einfamilienhaus wurde im Jahr 1973 in Massivbauweise auf dem 456 m² großen Grundstück errichtet. Auf etwa 119 m² Wohnfläche teilen sich vier Zimmer und zwei Tageslichtbäder im Erd- und Dachgeschoss des Hauses praktisch auf. Aufgrund der Raumaufteilung eignet sich das Einfamilienhaus ideal für Paare und Familien. Neben der gut durchdachten Raumaufteilung sowie dem uneinsehbaren Garten möchten wir auf Sie auf folgende Ausstattungsdetails besonders hinweisen: - Großzügiger Wohn-/ Essbereich mit Zugang auf die Terrasse - Terrasse mit Markise - Geräteraum neben der Terrasse - Küche mit Einbaumöbeln - Tageslichtbad mit Dusche im Erdgeschoss - Wannenbad mit Tageslicht im Dachgeschoss - Kunststofffenster mit Isolierverglasung und Außenrollläden - Öl-Zentralheizung von 2011 - Uneinsehbarer Garten - Garage
Einfamilienhaus mit guter Raumaufteilung in rückwärtiger Baureihe
28755 Bremen
Die vollständige Adresse der Immobilie erhalten Sie vom Anbieter.
Auf Karte anzeigen
Die vollständige Adresse der Immobilie erhalten Sie vom Anbieter.

Finanzierungszertifikat
In nur zwei Minuten zu Ihrem persönlichen Finanzierungszertifkat.
Infos
Haustyp | Einfamilienhaus |
---|---|
Wohnfläche ca. | 119 m2 |
Grundstücksfläche | 456 m2 |
Bezugsfrei ab | |
Zimmer | 4 |
Schlafzimmer | 3 |
Badezimmer | 2 |
Garage/Stellplatz | Garage |
Anzahl Garage/Stellplatz | 1 |
Kosten
Kaufpreis |
288.000 € |
---|---|
Provision |
3,57% inkl. gesetzl. MwSt. vom beurkundeten Kaufpreis Provisionpflichtig für den Käufer! Unsere Objektangaben basieren auf den uns erteilten Informationen. Eine Haftung für die Richtigkeit und Vollständigkeit können wir deshalb nicht übernehmen. |
Finanzierungsrechner:
Kaufpreis:
600.000 €
Eigenkapital:
600.000 €
Monatliche Rate
0 €
Effektiver Jahreszins
0 %
Sollzinsbindung
10 Jahre
Bausubstanz & Energieausweis
Baujahr | 1974 |
---|---|
Heizungsart | Öl-Heizung |
Wesentliche Energieträger | Öl |
Energieausweis | liegt vor |
Energieausweistyp | Bedarfsausweis |
Energieverbrauchskennwert | 206,1 kWh/(m²*a) |
Energieeffizienzklasse | G |
206,1
kWh/(m²*a)
Energieeffizienzklasse G
- A+
- A
- B
- C
- D
- E
- F
- G
- H
- 0
- 25
- 50
- 75
- 100
- 125
- 150
- 175
- 200
- 225
- >250
Ausstattung
Lage
Das angebotene Einfamilienhaus befindet sich in rückwärtiger Baureihe einer ruhigen und familienfreundlichen Wohnlage von Aumund-Hammersbeck. Hinter dem Grundstück beginnt das Naturschutzgebiet Hammersbecker Wiesen. Einkaufsmöglichkeiten des täglichen Bedarfs sind bequem mit dem Auto, Fahrrad oder auch zu Fuß schnell anzutreffen. Kindergärten, eine Grundschule sowie weiterführende Schulen sind schnell zu erreichen. Auch Bushaltestellen befinden sich in fußläufiger Entfernung. Mit dem Zug ist die Bremer Innenstadt über den nahegelegenen Bahnhof-Aumund nur etwa 30 Minuten Fahrzeit entfernt. Mit dem Auto haben Sie einen idealen Anschluss an die A270 beziehungsweise A27 nach Bremen, Bremerhaven und Cuxhaven. Für Spaziergänge oder sportliche Aktivitäten laden das Naherholungsgebiet Hammersbecker Wiesen sowie Beckedorfer Beeke ein.
Grundriss
Erdgeschoss
>

Dachgeschoss
>

Adresse
28755 Bremen
Interessante Orte
Preis- und Lageinformationen
Preistrend für Bestandsimmobilien in Aumund-Hammersbeck