Willkommen in Ihrem neuen Zuhause! Dieses freistehende Einfamilienhaus befindet sich in bester Lage von Kettwig und besticht durch seine moderne und zeitlose Architektur. Mit einer Wohnfläche von 140 qm bietet das Haus ausreichend Platz für Sie und Ihre Familie.
Das Highlight dieser Immobilie ist der traumhafte Garten mit Südausrichtung, der zum Verweilen und Entspannen einlädt. Genießen Sie sonnige Tage auf der Terrasse und lassen Sie den Alltag hinter sich.
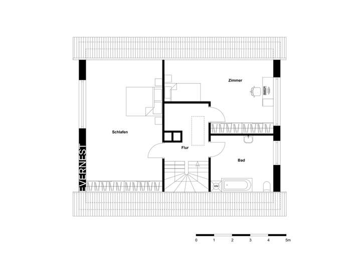
Das Haus verfügt über 2 Schlafzimmer, einen großzügigen Wohn- & Essbereich mit Gartenzugang, eine helle Einbauküche, ein großes Duschbad sowie ein Gäste WC. Besonders praktisch ist der begehbare Kleiderschrank im Schlafzimmer, der für Ordnung sorgt.
Das Einfamilienhaus ist komplett unterkellert und bietet somit zusätzlichen Stauraum. Der Spitzboden bietet zudem Ausbaupotenzial für weitere Wohnfläche.
Ein weiteres Highlight ist die Garage mit zusätzlichem Stellplatz, die ausreichend Platz für Ihre Fahrzeuge bietet. Die neue Gastherme von 2023 sorgt für einen effizienten Energieverbrauch und niedrige Heizkosten.
Sie suchen ein Juwel in bester Lage von Kettwig? Dann vereinbaren Sie noch heute einen Besichtigungstermin und lassen Sie sich von diesem einzigartigen Einfamilienhaus begeistern!
Juwel in bester Lage Kettwig - freistehendes Einfamilienhaus mit Süd-Garten & Garage
45219 Essen
Die vollständige Adresse der Immobilie erhalten Sie vom Anbieter.
Auf Karte anzeigen
Die vollständige Adresse der Immobilie erhalten Sie vom Anbieter.
Finanzierungszertifikat
In nur zwei Minuten zu Ihrem persönlichen Finanzierungszertifkat.
Infos
| Haustyp | Einfamilienhaus |
|---|---|
| Etagenzahl | 2 |
| Wohnfläche ca. | 145 m2 |
| Nutzfläche | 85 m2 |
| Grundstücksfläche | 700 m2 |
| Bezugsfrei ab | 2026-02-01 |
| Zimmer | 3 |
| Schlafzimmer | 2 |
| Badezimmer | 1 |
| Garage/Stellplatz | Garage |
| Anzahl Garage/Stellplatz | 1 |
Kosten
| Kaufpreis |
690.000 € |
|---|---|
| Provision |
3.57 % inkl. MwSt. Bei Abschluss eines notariellen Kaufvertrages ist eine Käuferprovision vom Käufer in Höhe von 3.57 % inkl. MwSt. aus dem Kaufpreis fällig. |
Finanzierungsrechner:
Kaufpreis:
600.000 €
Eigenkapital:
600.000 €
Monatliche Rate
0 €
Effektiver Jahreszins
0 %
Sollzinsbindung
10 Jahre
Bausubstanz & Energieausweis
| Baujahr | 1990 |
|---|---|
| Letzte Sanierung | 2012 |
| Objektzustand | Gepflegt |
| Qualität der Austattung | Gehoben |
| Heizungsart | Gas-Heizung |
| Wesentliche Energieträger | Gas |
| Energieausweis | liegt vor |
| Energieausweistyp | Verbrauchsausweis |
| Energieverbrauchskennwert | 165,0 kWh/(m²*a) |
| Energieeffizienzklasse | F |
165,0
kWh/(m²*a)
Energieeffizienzklasse F
- A+
- A
- B
- C
- D
- E
- F
- G
- H
- 0
- 25
- 50
- 75
- 100
- 125
- 150
- 175
- 200
- 225
- >250
Beschreibung des Objekts
Ausstattung
+ Garage
+ Garten mit Südausrichtung
+ Einbauküche mit Markengeräten
+ Voll unterkellert
+ Beste Lage Kettwig
+ Direkt am Wald gelegen
+ Ruhige Privatstraße
Lage
Wohnen in Essen Kettwig - Laupendahl
Die Laupendahler Siedlung zählt zu den exklusivsten Wohnlagen Essens. Geprägt von großzügigen Grundstücken, hochwertiger Bebauung und weitem Blick ins Ruhrtal, verbindet sie Ruhe, Natur und urbanen Komfort auf höchstem Niveau.
Kettwig, Essens südwestlichster Stadtteil, bietet mit seiner historischen Altstadt, der Nähe zur Ruhr und weitläufigen Grünflächen ein außergewöhnlich hohes Maß an Lebensqualität. Rad- und Wanderwege entlang des Stausees sowie vielfältige Freizeit- und Sportangebote machen die Umgebung besonders attraktiv.
Die Infrastruktur ist hervorragend: Schulen aller Stufen – darunter das Theodor-Heuss-Gymnasium –, Kindergärten, Ärzte und die nahegelegene Fachklinik Rhein/Ruhr - sorgen für beste Versorgung. Einkaufsmöglichkeiten finden sich im Zentrum Kettwigs und im Nahversorgungszentrum an der Güterstraße.
Dank der Anbindung an die A52 und die S-Bahn-Linie S6 ist Düsseldorf schnell erreichbar; der Flughafen liegt rund 20–30 Autominuten entfernt – ideal für Pendler oder Vielreisende.
Die Laupendahler Siedlung steht für eine ruhige, grüne A-Lage mit Wertstabilität, Privatsphäre und exzellentem Wohnumfeld – ein Zuhause für höchste Ansprüche & besonders hohe Lebensqualität.
Grundriss
Erdgeschoss
>
>
1.Obergeschoss
>
>
Kellergeschoss
>
>
Adresse
45219 Essen
Interessante Orte
Preis- und Lageinformationen
Preistrend für Bestandsimmobilien in Kettwig