Dieses besondere Anwesen in Gottmadingen-Bietingen vereint großzügiges Wohnen, ländliche Idylle und ein beeindruckendes Ensemble an Nebengebäuden. Erbaut im Jahr 1974 und gelegen auf einem weitläufigen Grundstück von 5.170 m², eröffnet es zahlreiche Möglichkeiten für Menschen, die Naturverbundenheit, Individualität und Raum für Ideen schätzen.
Das Doppelhaus bietet zwei eigenständige Haushälften: Eine wurde in den 1990er-Jahren umfassend saniert und präsentiert sich heute in gepflegtem Zustand mit einladender Wohnatmosphäre. Von hier gelangt man auf eine große Terrasse, die mit ihrem freien Blick ins Grüne zum Mittelpunkt für entspannte Stunden wird. Die zweite Haushälfte hingegen ist kernsanierungsbedürftig – ideal für alle, die ihre eigenen Vorstellungen verwirklichen möchten und Freude am Gestalten haben. Beide Einheiten werden aktuell über eine gemeinsame Ölheizung versorgt.
Ein absolutes Highlight ist das angrenzende landwirtschaftliche Gebäude mit rund 700 m² Nutzfläche, bestehend aus einer großen Scheune mit Zwischenboden sowie einem Stall. Ob für Handwerk, Hobby, Tierhaltung oder kreative Projekte – die Nutzungsmöglichkeiten sind vielseitig. Durch die ländliche Umgebung fügt sich auch eine landwirtschaftliche Tierhaltung harmonisch ins Gesamtbild ein.
Das weitläufige Grundstück begeistert mit Obst- und Kräutergarten, kleiner Wiese und geschütztem Freisitz. Hier findet man Rückzugsorte ebenso wie Flächen für Selbstversorgung und Freizeitgestaltung.
Ob Mehrgenerationenhaus, Kombination aus Wohnen und Arbeiten oder Rückzugsort für Naturliebhaber – dieses Anwesen überzeugt durch seine einzigartige Kombination aus Größe, Lage und Potenzial.
Großzügiges Anwesen mit Doppelhaus, Scheune & 5.170 m² Grundstück in Gottmadingen-Bietingen
78244 Gottmadingen
Die vollständige Adresse der Immobilie erhalten Sie vom Anbieter.
Auf Karte anzeigen
Die vollständige Adresse der Immobilie erhalten Sie vom Anbieter.
Finanzierungszertifikat
In nur zwei Minuten zu Ihrem persönlichen Finanzierungszertifkat.
Infos
| Haustyp | Bauernhaus |
|---|---|
| Wohnfläche ca. | 134 m2 |
| Grundstücksfläche | 5.170 m2 |
| Bezugsfrei ab | SofoRT |
| Zimmer | 8 |
| Badezimmer | 2 |
Kosten
| Kaufpreis |
975.000 € |
|---|---|
| Provision |
3,57 % inkl. MwSt. |
Finanzierungsrechner:
Kaufpreis:
600.000 €
Eigenkapital:
600.000 €
Monatliche Rate
0 €
Effektiver Jahreszins
0 %
Sollzinsbindung
10 Jahre
Bausubstanz & Energieausweis
| Qualität der Austattung | Normal |
|---|---|
| Energieausweis | liegt zur Besichtigung vor |
Beschreibung des Objekts
Ausstattung
Doppelhaus (eine Hälfte saniert, eine Hälfte sanierungsbedürftig)
Baujahr 1974
Großes Grundstück: 5.170 m²
Landwirtschaftliches Gebäude (Scheune mit Zwischenboden + Stall) ca. 700 m² Nutzfläche
Gepflegte Terrasse mit Naturblick
Obst- und Kräutergarten
Wiese und geschützter Freisitz
Gemeinsame Ölheizung für beide Haushälften
Lage
Das Anwesen liegt im idyllischen Ortsteil Bietingen, am Rande der Gemeinde Gottmadingen. Die Lage besticht durch ihre Ruhe und das Gefühl, mitten in der Natur zu wohnen, während gleichzeitig die alltägliche Infrastruktur in greifbarer Nähe ist. Umgeben von Wiesen, Feldern und kleinen Waldstücken eröffnet sich ein landschaftliches Panorama, das Erholung und Privatsphäre garantiert.
Bietingen ist besonders attraktiv durch seine Nähe zur Schweiz. Der Grenzübergang nach Thayngen ist in wenigen Minuten erreichbar – ein klarer Vorteil für Berufspendler und alle, die das schweizerische Angebot an Kultur, Arbeit und Einkaufsmöglichkeiten nutzen möchten. Gleichzeitig profitieren Bewohner von der guten Versorgung im nahegelegenen Gottmadingen mit Supermärkten, Ärzten, Schulen und Kindergärten.
Die Verkehrsanbindung ist hervorragend: Über die A81 sind Singen, Konstanz oder Stuttgart schnell erreichbar. Richtung Schweiz gelangt man zügig nach Schaffhausen oder Zürich. Auch der öffentliche Nahverkehr ist vorhanden und sorgt für gute Erreichbarkeit ohne Auto.
Die Freizeitmöglichkeiten in der Umgebung sind nahezu unbegrenzt. Direkt vor der Haustür beginnen Spazier- und Radwege, die sich durch die Landschaft ziehen. Der Bodensee mit seinen Stränden, Häfen und kulturellen Angeboten ist nur eine kurze Autofahrt entfernt und eröffnet zusätzliche Erholungs- und Freizeitoptionen.
Damit verbindet die Lage naturnahes Wohnen mit einer perfekten Balance aus Ruhe, Infrastruktur und grenznaher Mobilität – eine Kombination, die nur selten zu finden ist.
Sonstige Angaben
Alle Angaben in diesem Exposé basieren auf den Informationen des Verkäufers. Eine Haftung für deren Richtigkeit und Vollständigkeit wird nicht übernommen.
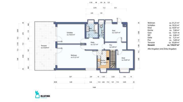
Grundriss
Grundriss EG
>
>
Grundriss OG
>
>
Adresse
78244 Gottmadingen
Interessante Orte
Preis- und Lageinformationen
Preistrend für Bestandsimmobilien in Gottmadingen