Ideal für Kapitalanleger / Investoren
------------------------------------------------
Zum Verkauf angeboten wird ein ca. 2.040m² großes, ggf. auch teilbares Baugrundstück im Schweriner Ortsteil Wickendorf. Das Grundstück ist weitestgehend zur Bebauung vorbereitet. Es ist gerodet und frei von Altbestand, Baustrom und Bauwasser liegen an.
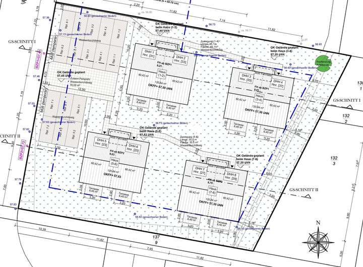
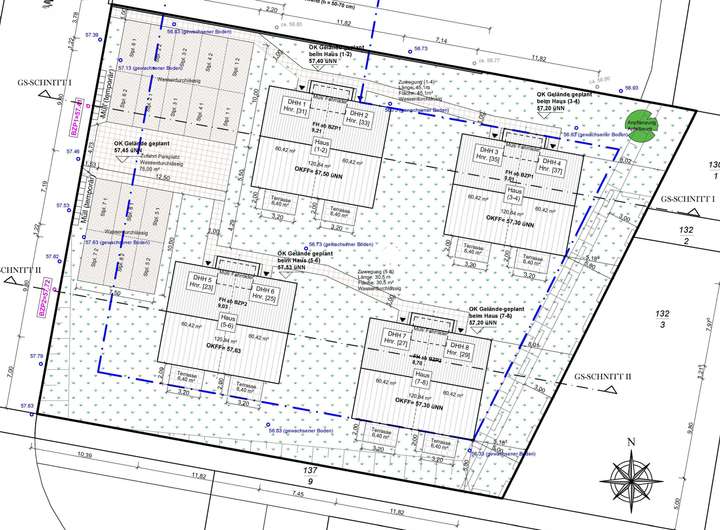
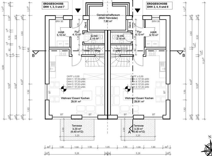
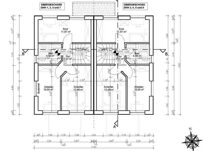
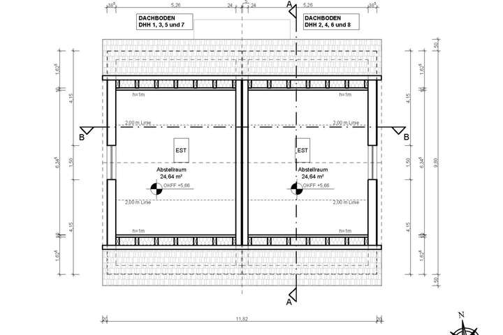
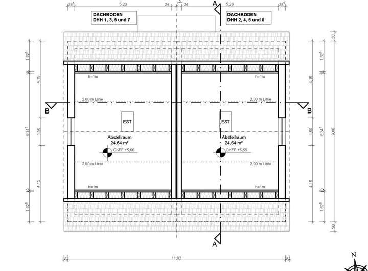
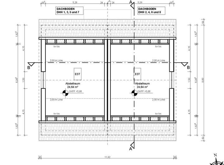
Eine Baugenehmigung zur Errichtung von 4 Doppelhäusern = 8 Doppelhaushälften
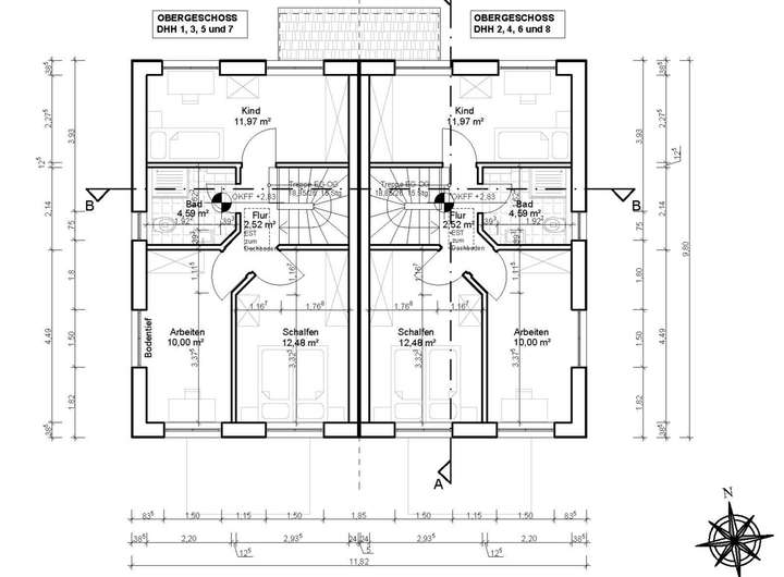
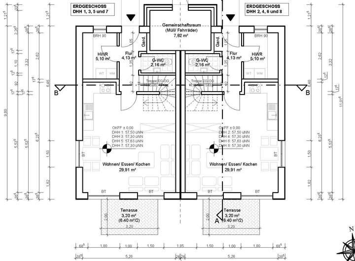
mit 16 PKW-Stellplätzen liegt vor. Die in Massivbauweise geplanten 2-geschossigen DHH entsprechen dem KfW-40-Standard. Die Wohn-/Nutzfläche von ca. 118m² bietet Platz für 5 Wohn-/Schlafzimmer inkl. ausgebautem Dachstudio.
Das im Jahr 2021 erschlossene Neubaugebiet weist knapp 170 Baugrundstücke aus.
Alle Grundstücke sind verkauft und wurden zwischenzeitlich mit unterschiedlichsten Einfamilienhäusern bebaut. Dazu gehören 1- und 2-geschossige EFH und DHH ebenso wie Bungalows, mit verschiedenen Dachformen und vielfältiger Fassadenverkleidung wie Holz, Klinker und Putz. Die Form der Bebauung regelt im Wesentlichen der
B-Plan "Wickendorf-West", 2. Teilungsentwurf, AZ: 17010/16.01.2019.
Baugrundstücke werden innerhalb des Neubaugebietes derzeit nicht mehr zum Verkauf angeboten
Schwerin-Wickendorf: 2.040m² für 8 DHH - mit Baugenehmigung
19055 Schwerin
Die vollständige Adresse der Immobilie erhalten Sie vom Anbieter.
Auf Karte anzeigen
Die vollständige Adresse der Immobilie erhalten Sie vom Anbieter.
Finanzierungszertifikat
In nur zwei Minuten zu Ihrem persönlichen Finanzierungszertifkat.
Infos
| Vermarktungsart | Kaufen |
|---|---|
| Grundstücksfläche | 2.040 m2 |
| Verfügbar ab | sofort |
Kosten
| Miete pro Jahr |
565.950 € |
|---|---|
| Provision |
3,57% |
Finanzierungsrechner:
Kaufpreis:
600.000 €
Eigenkapital:
600.000 €
Monatliche Rate
0 €
Effektiver Jahreszins
0 %
Sollzinsbindung
10 Jahre
Beschreibung des Objekts
Lage
Lage
-------
Die Lage ist ganz besonders bei jüngeren Familie sehr beliebt. Kita und Spielplatz finden sich innerhalb des als Tempo-30 Zone ausgewiesenen Neubaugebietes.
Von der Bushaltestelle (ca. 400m) benötigt man 19 Fahrminuten zum Schweriner HBF. Der Schweriner See (ca. 600m) ist in wenigen Gehminuten bequem erreichbar. Die öffentliche Badeanstalt direkt am Schweriner See im benachbarten Seedorf (1,4km) ist bei Jung und Alt gleichermaßen beliebt. Und zahlreich angebotene Urlaubsunterkünfte zeugen von der großen Beliebtheit des gesamten Umfeldes.
Weitere Dokumente
2515V_Schmiedeberg21,19055SchwGrundriss
Lageplan
>
>
EG-Grundriss
>
>
OG-Grundriss
>
>
DG-Grundriss
>
>
Querschnitt
>
>