Das hier angebotene Reiheneckhaus bietet insgesamt fünf Einheiten: drei Wohneinheiten, eine Praxis im Erdgeschoss sowie ein Zahnlabor im Untergeschoss. Ausreichend Parkmöglichkeiten sind in der eigene Tiefgarage auf insgesamt 8 Duplexparkern vorhanden. Das Objekt bietet sich ideal auch als renditestarkes Wohn- und Anlageobjekt in familienfreundlicher Top-Lage Pasings an.
Objektaufteilung:
Dachgeschoss: Zwei 1-Zimmer-Wwohnungen (43 m² und 31 m²) – kompakt, praktisch, perfekt für Singles oder Anleger.
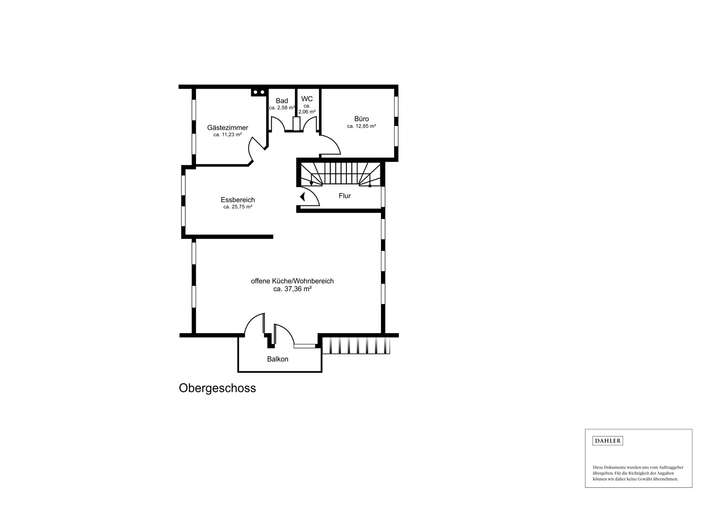
Obergeschoss: Große 3,5-Zimmer-Wohnung mit offenem Wohn- und Küchenkonzept – modern und einladend.
Erdgeschoss: Zahnarztpraxis, die nach Absprache übernommen werden kann – klares Potenzial für stabile Mieterträge.
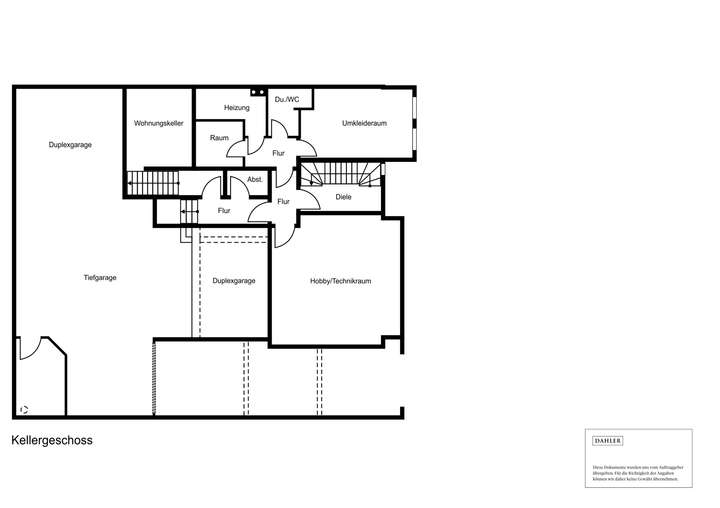
Untergeschoss: Zahnlabor – flexibel nutzbar, baulich gut verbunden.
Highlights:
Großzügige Außenflächen: Zwei Balkone und Terrasse – viel Freiraum zum Wohnen.
Garten: Weiterer Erholungsbereich im Grünen.
Tiefgarage: 8 Stellplätze – Sichere Parkmöglichkeiten für Mieter oder Praxispersonal.
Vielfältige Nutzungsoptionen: reines Wohnobjekt, gemischte Nutzung oder klarer Rendite-Standort.
Attraktiv für Kapitalanleger durch zentrale Lage, gute Vermietbarkeit und einzigartiges Nutzungskonzept!
Mehrfamilienhaus mit Praxis und Tiefgarage – Das perfekte Wohn- und Anlageobjekt!
81241 München
Die vollständige Adresse der Immobilie erhalten Sie vom Anbieter.
Auf Karte anzeigen
Die vollständige Adresse der Immobilie erhalten Sie vom Anbieter.
Finanzierungszertifikat
In nur zwei Minuten zu Ihrem persönlichen Finanzierungszertifkat.
Infos
| Haustyp | Mehrfamilienhaus |
|---|---|
| Etagenzahl | 3 |
| Wohnfläche ca. | 316 m2 |
| Grundstücksfläche | 429 m2 |
| Zimmer | 10 |
| Badezimmer | 4 |
| Garage/Stellplatz | Duplex |
| Anzahl Garage/Stellplatz | 8 |
Kosten
| Kaufpreis |
2.990.000 € |
|---|---|
| Provision |
3,57 inkl. der gesetzlichen MwSt., bezogen auf den Kaufpreis |
Finanzierungsrechner:
Kaufpreis:
600.000 €
Eigenkapital:
600.000 €
Monatliche Rate
0 €
Effektiver Jahreszins
0 %
Sollzinsbindung
10 Jahre
Bausubstanz & Energieausweis
| Baujahr | 1994 |
|---|---|
| Objektzustand | Modernisiert |
| Heizungsart | Fußbodenheizung |
| Wesentliche Energieträger | Erdgas leicht |
| Energieausweis | liegt vor |
| Energieausweistyp | Verbrauchsausweis |
| Energieverbrauchskennwert | 107,7 kWh/(m²*a) |
| Energieeffizienzklasse | D |
107,7
kWh/(m²*a)
Energieeffizienzklasse D
- A+
- A
- B
- C
- D
- E
- F
- G
- H
- 0
- 25
- 50
- 75
- 100
- 125
- 150
- 175
- 200
- 225
- >250
Beschreibung des Objekts
Ausstattung
Die verschiedenen Einheiten haben folgende Ausstattungsmerkmale:
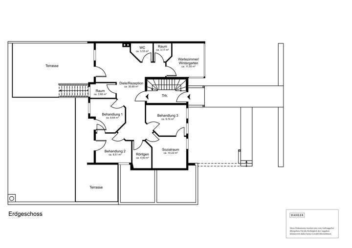
Praxis im Erdgeschoss:
* Größe 92 m²
* bestehend aus Diele/Empfang, vier Behandlungszimmern, Röntgenraum, Sterilisation, WC, Mundhygiene
* Wartebereich im Wintergarten
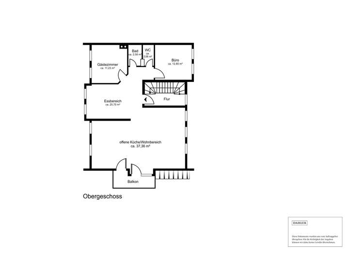
Wohnung im Obergeschoss:
* Größe 92 m²
* 3,5- Zimmer
* modernes, offenes Küchen- sowie Wohnzimmerkonzept, zwei Schlafzimmer, Bad sowie Gäste WC
* Balkon mit Westausrichtung
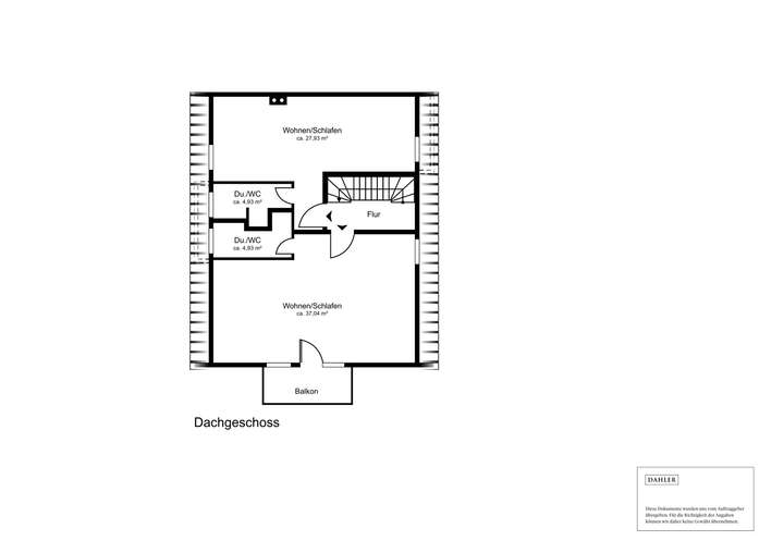
Wohnung 1 im Dachgeschoss:
* Größe 43 m² (mit integrierter Kochnische sowie Duschbad)
* Balkon in Westausrichtung
Wohnung 2 im Dachgeschoss:
* Größe 31 m² (mit Kochnische und Duschbad)
Kellergeschoss:
* großer Hobbyraum der als Zahnlabor genutzt wird, ausgestattet mit natürlicher Belichtung, die Fenster wurden 2021 erneuert
* Personalaufenthaltsraum mit Küche und separatem Bad welches 2021 saniert wurde
* Heizungskeller mit Gaszentralheizung sowie diverse Nebenräume
* die Kelleraußentreppe in den Garten wurde im Jahr 2023 saniert
Tiefgarage:
* insgesamt 8 Stellplätze (zwei Duplexgaragen als Vierfachparker)
* Technikraum
* 2022 wurde das Tiefgaragendach komplett saniert
* die Seitenwand zur Tiefgarage wurde im Jahr 2023 neu abgedichtet
Garten/ Außenanlagen:
* der Eingangsbereich wurde 2021 neu gepflastert (inkl. Freiflächenheizung mit integrierter Temperatursteuerung)
* großzügige Terrasse mit ca. 20 m²
* 2022 wurde eine Plattform zur Aufstellung eines Gartenpools inkl. Außensteckdosen errichtet
Lage
Die Immobilie befindet sich in begehrter Lage im westlichen Münchner Stadtteil Pasing mit Anbindung und urbanem Flair. Die Lage kombiniert die Vorteile des städtischen Lebens mit der Nähe zu grünen Rückzugsorten und einer sehr guten Infrastruktur.
Verkehrsanbindung:
Die Verkehrsanbindung ist ausgezeichnet: Die S-Bahn-Station Pasing (mit mehreren Linien) ist nur wenige Minuten entfernt und bietet eine schnelle Direktverbindung zum Münchner Hauptbahnhof (ca. 10 Minuten) sowie zum Flughafen München (ca. 40 Minuten mit der S8). Straßenbahn- und Bushaltestellen befinden sich in direkter Umgebung (u. a. Linie 19), sodass auch der öffentliche Nahverkehr optimal abgedeckt ist. Mit dem Auto ist der mittlere Ring sowie die A96 Richtung rasch erreichbar.
Einkaufen & Nahversorgung:
Das nahegelegene Einkaufszentrum Pasing Arcaden sowie zahlreiche Supermärkte, Fachgeschäfte, Apotheken und Cafés bieten eine umfassende Nahversorgung. Ärzte, Banken und weitere Dienstleister sind fußläufig erreichbar.
Freizeit & Erholung:
Die Umgebung punktet mit einem hohen Freizeitwert: Der nahegelegene Nymphenburger Schlosspark, die Würm sowie der Pasinger Stadtpark bieten grüne Erholungsflächen für Spaziergänge, Jogging oder entspannte Nachmittage im Grünen. Zahlreiche Sporteinrichtungen, Restaurants und kulturelle Angebote runden das attraktive Umfeld ab.
Bildung & Familie:
In direkter Umgebung finden sich mehrere Kindergärten, Grund- und weiterführende Schulen. Verschiedene Freizeitangebote für Kinder und Jugendliche machen die Lage besonders familienfreundlich.
Grundriss
Untergeschoss
>
>
Erdgeschoss
>
>
Obergeschoss
>
>
Dachgeschoss
>
>
Adresse
81241 München
Interessante Orte
Preis- und Lageinformationen
Preistrend für Bestandsimmobilien in Pasing