Dieses außergewöhnliche Reetdachanwesen, das im Jahr 1975 von Fußballlegende Uwe Seeler für seine Familie liebevoll hergerichtet wurde, verbindet norddeutsche Baukunst mit zeitloser Wohnqualität. Damals vollständig entkernt und durchdacht neu gestaltet, überzeugt die Immobilie bis heute mit einer klaren, modernen Grundrissplanung und einem unverwechselbaren Charakter.
Das Anwesen überzeugt mit einer klaren Gliederung in unterschiedliche Wohnbereiche, die zugleich funktional und harmonisch ineinandergreifen. Der Herzpunkt ist der Wohntrakt mit seiner großzügigen Küche, die Behaglichkeit und Wärme ausstrahlt und durch den offenen Kamin besonders in den Wintermonaten zum Mittelpunkt des Familienlebens wird. Ergänzt wird dieser Bereich durch ein weitläufiges Wohnzimmer mit Kachelofen, das zum Verweilen einlädt. Rückzug und Ruhe bietet der private Schlafbereich der Eigentümer, der behagliche Geborgenheit vermittelt. Einen besonderen Akzent setzt die historische Tenne mit ihrem imposanten Fensterelement, der großzügige und beeindruckende Raum geht direkt in den separaten Gästebereich über – ideal für Besucher oder festliche Anlässe. Überall im Haus finden sich liebevolle Details, die den Charme dieser Immobilie unterstreichen. Modernen Wohnkomfort garantiert die Fußbodenheizung im gesamten Gebäude.
Das Grundstück präsentiert sich ebenso eindrucksvoll wie das Haus selbst: Hinter dem Tor führt eine gepflasterte Auffahrt zu den Garagen, umgeben von altem Baumbestand, der natürliche Privatsphäre schafft. Apfelbäume, eine sonnige Terrasse und üppige Begrünung machen das Anwesen zu einem Refugium für Genießer.
Es ist ein Zuhause, das Geschichten erzählt von Familie, Zusammenhalt und norddeutscher Beständigkeit. Hier wurde gelebt, gelacht, gefeiert. Dieses Haus hat eine Seele, gewachsen mit der Zeit, geprägt von Erinnerungen. Ein Teil davon trägt den Namen Seeler. Norddeutsche Baukunst, ehrliche Materialien, die Substanz ist solide, der Charakter ist einzigartig. Wer ein Anwesen sucht, das nicht nur Raum bietet, sondern Seele hat – ist hier genau richtig.
Ein Energieausweis ist aufgrund des Denkmalschutzes nicht notwendig.
Uwe Seeler - ein Haus mit Legendenstatus
25881 Tating
Die vollständige Adresse der Immobilie erhalten Sie vom Anbieter.
Auf Karte anzeigen
Die vollständige Adresse der Immobilie erhalten Sie vom Anbieter.
Finanzierungszertifikat
In nur zwei Minuten zu Ihrem persönlichen Finanzierungszertifkat.
Infos
| Haustyp | Einfamilienhaus |
|---|---|
| Wohnfläche ca. | 349 m2 |
| Grundstücksfläche | 5.549 m2 |
| Bezugsfrei ab | nach Vereinbarung |
| Zimmer | 9 |
| Schlafzimmer | 7 |
| Badezimmer | 2 |
| Garage/Stellplatz | Garage |
| Anzahl Garage/Stellplatz | 2 |
Kosten
| Kaufpreis |
0 € |
|---|---|
| Provision |
3,57% inkl. gesetzl. MwSt.
verdient und fällig mit Beurkundung des notariellen Kaufvertrages. |
Finanzierungsrechner:
Kaufpreis:
600.000 €
Eigenkapital:
600.000 €
Monatliche Rate
0 €
Effektiver Jahreszins
0 %
Sollzinsbindung
10 Jahre
Bausubstanz & Energieausweis
| Baujahr | 1850 |
|---|---|
| Denkmalschutzobjekt | Ja |
| Heizungsart | Fußbodenheizung |
| Wesentliche Energieträger | Öl |
| Energieausweis | laut Gesetz nicht erforderlich |
Beschreibung des Objekts
Lage
Dieses Reetdachanwesen befindet sich in idyllischer Alleinlage im Außenbereich der Gemeinde Tating, umgeben von weiter Marschlandschaft und typisch norddeutscher Natur. Hier genießen Sie absolute Ruhe, Privatsphäre und ein unvergleichliches Gefühl von Weite. Die offene Landschaft mit ihren Feldern, Knicks und Baumgruppen vermittelt eine Ursprünglichkeit, die nur wenige Orte an der Nordseeküste so authentisch bieten.
Gleichzeitig profitieren Sie von der Nähe zu einem der gefragtesten Urlaubsziele Norddeutschlands: St. Peter-Ording mit seinen endlosen Sandstränden, imposanten Dünen und vielfältigen Freizeitmöglichkeiten ist in wenigen Minuten erreichbar. Ob erholsame Strandtage, sportliche Aktivitäten wie Kitesurfen oder ausgedehnte Spaziergänge im Nationalpark Wattenmeer – die Region hält unzählige Möglichkeiten bereit, die Nordsee in all ihren Facetten zu erleben.
Auch kulinarisch und kulturell hat die Umgebung einiges zu bieten: Von gemütlichen Landcafés über ausgezeichnete Restaurants bis hin zu regionalen Veranstaltungen, die den Charme Eiderstedts widerspiegeln.
Die Lage im Außenbereich macht dieses Anwesen zu einem ganz besonderen Rückzugsort – abgeschieden genug, um die Seele baumeln zu lassen, und doch nah an den pulsierenden Angeboten der Küste. Ein idealer Ort für alle, die Exklusivität, Ruhe und Natur mit maritimem Lebensgefühl verbinden möchten.
Sonstige Angaben
Bitte haben Sie Verständnis, dass wir das Exposé nur nach Erhalt Ihrer vollständigen Adressdaten versenden und eine Besichtigung nur nach Vorlage eines Kapitalnachweises möglich ist.
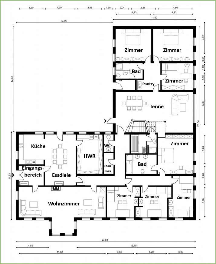
Grundriss
Erdgeschoss
>
>
Adresse
25881 Tating
Interessante Orte
Preis- und Lageinformationen
Preistrend für Bestandsimmobilien in Tating