Kompromisse waren gestern! Dieses Einfamilienhaus mit 6 Zimmern, verteilt auf 145,38 m² Wohnfläche und einem großzügigen Grundstück von 1267 m², wird ganz nach deinen Wünschen und Vorstellungen projektiert. Es begeistert mit einem klassischen Satteldach mit einer Neigung von 38 Grad und einem einladenden Erker, der den Wohnraum vergrößert und für viel Licht durch bodentiefe Fenster sorgt. Hier kannst du dir dein zukünftiges Zuhause ganz nach deinen Vorstellungen gestalten und einen Rückzugsort schaffen, der perfekt zu dir und deiner Familie passt.
LivingHaus bietet dir nicht nur die Möglichkeit, dein Haus individuell zu gestalten, sondern auch zahlreiche zusätzliche Leistungen, die dein Bauprojekt zu einem stressfreien Erlebnis machen.
Die hochwertige Traumküche von Living Haus wird genau auf deinen Grundriss angepasst und kommt mit modernster Technik, cleveren Stauraumlösungen und einem ästhetischen Design. Alles perfekt auf dein Zuhause abgestimmt. Und das Beste: Sie wird rechtzeitig zum Einzug geliefert, sodass du sofort loskochen kannst.
Mit der Living Haus Bau-App behältst du immer den Überblick über dein Bauprojekt. Von Zeitplan bis Dokumentenverwaltung - alles ist digital und einfach zugänglich. Perfekt, um stressfrei zu bauen!
Die I-KON-Technologie kombiniert nachhaltiges Bauen mit modernster Technik und macht dein Zuhause energieeffizient sowie umweltfreundlich. So benötigst du nur 55 % der Energie eines Standardhauses dank innovativer Dämmung und intelligenter Heizsysteme.
Finanzielle Unterstützung erhältst du mit dem Zuhause-Darlehen, das dir bis zu 250.000 EUR zu besonders günstigen Zinssätzen bietet.
Das Zuhause-Paket umfasst eine hochwertige Grundausstattung - moderne Böden, edle Türen und stilvolle Sanitäranlagen, die optimal aufeinander abgestimmt sind und fix & fertig geliefert werden.
Werde zum Profi in deinem eigenen Zuhause mit dem DIY-Ausbau-Coaching! In nur drei Tagen zeigen dir Experten, wie du den Innenausbau selbst meisterst - mit praxisnahen Tipps und Unterstützung.
Dieses durchdachte Gesamtkonzept von LivingHaus sorgt dafür, dass dein Traumhaus so sicher und passend wie möglich verwirklicht wird.
Dein individuelles Traumhaus in Burgdorf - maßgeschneidert für dich
31303 Burgdorf
Die vollständige Adresse der Immobilie erhalten Sie vom Anbieter.
Auf Karte anzeigen
Die vollständige Adresse der Immobilie erhalten Sie vom Anbieter.
Finanzierungszertifikat
In nur zwei Minuten zu Ihrem persönlichen Finanzierungszertifkat.
Infos
| Haustyp | Einfamilienhaus |
|---|---|
| Etagenzahl | 2 |
| Wohnfläche ca. | 145 m2 |
| Nutzfläche | 145,38 m2 |
| Grundstücksfläche | 1.267 m2 |
| Zimmer | 6 |
| Schlafzimmer | 3 |
| Badezimmer | 1 |
Kosten
| Kaufpreis |
591.032 € |
|---|
Finanzierungsrechner:
Kaufpreis:
600.000 €
Eigenkapital:
600.000 €
Monatliche Rate
0 €
Effektiver Jahreszins
0 %
Sollzinsbindung
10 Jahre
Bausubstanz & Energieausweis
| Baujahr | 2026 |
|---|---|
| Bauphase | Haus in Planung (projektiert) |
| Qualität der Austattung | Gehoben |
| Energieausweis | liegt vor |
| Energieausweistyp | Bedarfsausweis |
| Energieverbrauchskennwert | 18,0 kWh/(m²*a) |
| Energieeffizienzklasse | A+ |
18,0
kWh/(m²*a)
Energieeffizienzklasse A+
- A+
- A
- B
- C
- D
- E
- F
- G
- H
- 0
- 25
- 50
- 75
- 100
- 125
- 150
- 175
- 200
- 225
- >250
Beschreibung des Objekts
Ausstattung
Dein zukünftiges Zuhause wird durch ein umfassendes Ausstattungspaket bereichert. Du erhältst eine maßgeschneiderte Traumküche, die auf deinen Grundriss abgestimmt ist und modernste Technik sowie clevere Stauraumlösungen bietet. Die Grundausstattung umfasst hochwertige Böden, edle Türen und stilvolle Sanitäranlagen.
Für die energieeffiziente Bauweise sorgt die I-KON-Lösung, die eine integrierte PV-Anlage samt Speicherbatterie beinhaltet. So kannst du einen Großteil deines Strombedarfs selbst erzeugen. Dank der modernen Wärmepumpentechnik mit Komfortlüftung und Wärmerückgewinnung wird dein Zuhause auch im Winter angenehm warm und im Sommer kühl sein.
Außerdem profitierst du von einer 18-monatigen Festpreisgarantie und einer Vielzahl an Bauversicherungen, die dich ab dem ersten Tag absichern. Mit dem DIY-Ausbau-Coaching erlernst du, wie du den Innenausbau selbst meisterst. Dein individuell geplantes Zuhause wird somit zur perfekten Wohlfühloase - genau so, wie du es willst.
Lage
Burgdorf ist ein Ort, der dir und deiner Familie eine hervorragende Lebensqualität bietet. In der Umgebung findest du zahlreiche Bildungseinrichtungen, darunter mehrere Kindergärten und Schulen, die allesamt gute Bewertungen genießen. Hier wird Wert auf eine umfassende Förderung der Kinder gelegt, sodass du dir sicher sein kannst, dass dein Nachwuchs in guten Händen ist.
Die medizinische Versorgung ist durch nahegelegene Ärzte und Apotheken gesichert, sodass du im Bedarfsfall schnell Hilfe erhältst.
Für den täglichen Einkauf stehen dir diverse Supermärkte zur Verfügung, darunter Discounter sowie Fachgeschäfte, die alles bieten, was du benötigst. Wenn du gerne in deiner Freizeit aktiv bist, wirst du die zahlreichen Freizeitangebote in Burgdorf zu schätzen wissen. Parks, Spielplätze und Sporteinrichtungen sind in der Nähe und laden zu Aktivitäten im Freien ein.
Die Anbindung an den öffentlichen Nahverkehr sowie die Autobahn ist hervorragend. Du erreichst die nächstgelegene Stadt in nur wenigen Minuten, was Burgdorf zu einem idealen Wohnort für Pendler macht. Hier wohnt es sich ruhig und dennoch zentral - ein perfekter Ort für Familien und Naturliebhaber!
Sonstige Angaben
Das hier angebotene Grundstück ist im obigen Preis eingerechnet, es wird ohne zusätzliche Provision an einen Living Haus-Bauherren bereitgestellt.
Zusätzliche Baunebenkosten müssen noch hinzugerechnet werden, hierüber beraten wir dich gern.
Wir bieten auch interessante Finanzierungsmöglichkeiten inklusive Beantragung aller Fördermittel!
Die Hausabbildungen und die Bilder der Inneneinrichtung zeigen möglicherweise Extras, die nicht im angegebenen Kaufpreis inbegriffen sind.
Gute Beratung ist der Anfang von Allem. Deshalb analysieren wir gemeinsam mit euch eure Vorstellungen, Wünsche und Bedürfnisse und finden so das für Dich und Deine Familie passende Living Haus.
Interessiert? Kontaktiere mich und vereinbare noch heute einen kostenlosen und unverbindlichen Beratungstermin unter 0172 / 199 08 94
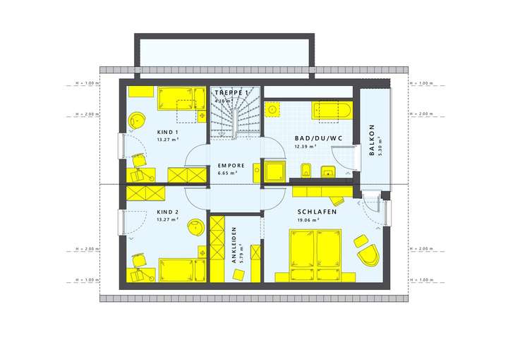
Grundriss
Gestaltungsbeispiel EG
>
>
Gestaltungsbeispiel DG
>
>
Adresse
31303 Burgdorf
Interessante Orte
Preis- und Lageinformationen
Preistrend für Bestandsimmobilien in Burgdorf