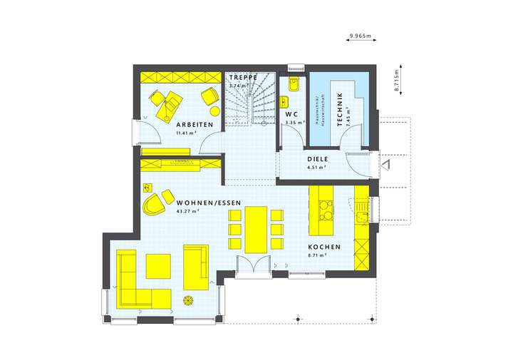
Dieses beeindruckende Fertighaus in Bothfeld ist ein wahres Schmuckstück deiner zukünftigen Wohnträume. Mit 6 Zimmern und einer großzügigen Wohnfläche von 145,38 m² bietet es dir und deiner Familie ausreichend Platz zum Leben und Wohlfühlen. Die Stadtvilla besticht durch ihr elegantes Walmdach, das nicht nur für eine ansprechende Optik sorgt, sondern auch die volle Deckenhöhe im Obergeschoss bietet. Hier gelangst du auf einen großzügigen Balkon, der gleichzeitig als Überdachung für den gemütlichen Freisitz im Erdgeschoss fungiert. Der optisch harmonisch integrierte Übereck-Erker vergrößert deinen Wohn- und Essbereich auf beeindruckende 43 Quadratmeter, was dir die Möglichkeit gibt, gesellige Abende mit Familie und Freunden zu verbringen.
LivingHaus ermöglicht dir, dein Heim ganz nach deinen Wünschen zu gestalten. Mit unserer hochwertigen Traumküche, die exakt auf deinen Grundriss angepasst wird, kannst du schon beim Einzug sofort loskochen. Diese Küche ist nicht nur funktional, sondern auch ästhetisch ansprechend, ausgestattet mit modernster Technik und cleveren Stauraumlösungen.
Das Living Haus Bau-Cockpit sorgt dafür, dass du stets den Überblick über dein Bauprojekt behältst. Mit der praktischen Bau-App hast du Zugriff auf alle wichtigen Informationen, von Zeitplänen bis hin zu Dokumenten, und das alles digital und einfach.
Mit I-KON - Intelligentes Bauen kannst du sicherstellen, dass dein Zuhause nicht nur schön, sondern auch nachhaltig ist. Das I-KON Effizienzhaus 55 benötigt nur 55 % der Energie eines Standardhauses. Innovative Dämmung und intelligente Heizsysteme machen dein Zuhause zu einem Vorreiter in Sachen Energieeffizienz.
Das Zuhause-Darlehen bietet dir die Möglichkeit, dein Traumhaus zu einem besonders günstigen Zinssatz zu finanzieren, mit einem Betrag von bis zu 250.000 Euro und attraktiven staatlichen Förderprogrammen. Auch das Zuhause-Paket sorgt dafür, dass du eine hochwertige Grundausstattung erhältst - moderne Böden, edle Türen und stilvolle Sanitäranlagen, alles optimal aufeinander abgestimmt und fix und fertig geliefert.
Wenn du handwerklich begabt bist oder es werden möchtest, bietet dir unser DIY-Ausbau-Coaching die Möglichkeit, in nur drei Tagen von Experten zu lernen, wie du den Innenausbau selbst meisterst. So wird dein Traumhaus nicht nur ein Ort zum Wohnen, sondern auch ein Projekt, das du selbst gestalten kannst.
LivingHaus: Dein individuelles Traumhaus in Bothfeld
30567 Hannover
Die vollständige Adresse der Immobilie erhalten Sie vom Anbieter.
Auf Karte anzeigen
Die vollständige Adresse der Immobilie erhalten Sie vom Anbieter.
Finanzierungszertifikat
In nur zwei Minuten zu Ihrem persönlichen Finanzierungszertifkat.
Infos
| Haustyp | Einfamilienhaus |
|---|---|
| Etagenzahl | 2 |
| Wohnfläche ca. | 145 m2 |
| Nutzfläche | 145,38 m2 |
| Grundstücksfläche | 855 m2 |
| Zimmer | 6 |
| Schlafzimmer | 3 |
| Badezimmer | 1 |
Kosten
| Kaufpreis |
884.039 € |
|---|
Finanzierungsrechner:
Kaufpreis:
600.000 €
Eigenkapital:
600.000 €
Monatliche Rate
0 €
Effektiver Jahreszins
0 %
Sollzinsbindung
10 Jahre
Bausubstanz & Energieausweis
| Baujahr | 2026 |
|---|---|
| Bauphase | Haus in Planung (projektiert) |
| Qualität der Austattung | Gehoben |
| Energieausweis | liegt vor |
| Energieausweistyp | Bedarfsausweis |
| Energieverbrauchskennwert | 18,0 kWh/(m²*a) |
| Energieeffizienzklasse | A+ |
18,0
kWh/(m²*a)
Energieeffizienzklasse A+
- A+
- A
- B
- C
- D
- E
- F
- G
- H
- 0
- 25
- 50
- 75
- 100
- 125
- 150
- 175
- 200
- 225
- >250
Beschreibung des Objekts
Ausstattung
Dein zukünftiges Zuhause wird durch zahlreiche hochwertige Ausstattungsmerkmale überzeugen:
- Hochwertige Traumküche, individuell auf deinen Grundriss abgestimmt, mit modernster Technik und ästhetischem Design.
- Living Haus Bau-Cockpit für digitale Projektverwaltung und Übersicht.
- I-KON - nachhaltiges Bauen mit Energieeffizienz.
- Zuhause-Darlehen bis 250.000 EUR zu günstigen Konditionen.
- Zuhause-Paket mit hochwertiger Grundausstattung, inklusive Bodenbelägen, Türen und Sanitäranlagen.
- DIY-Ausbau-Coaching für den Innenausbau mit professioneller Unterstützung.
- 18-monatige Festpreisgarantie und umfassende Bauversicherungen für deine Sicherheit.
Alle diese Elemente zusammen ergeben dein "Wie ich es will Fertighaus".
Lage
Bothfeld, ein Stadtteil von Hannover, bietet dir eine ideale Kombination aus urbanem Leben und naturnaher Idylle. In der Umgebung findest du zahlreiche Schulen, darunter die Grundschule Bothfeld und das Gymnasium Bothfeld, die beide für ihre hohe Bildungsqualität bekannt sind und von den Eltern sehr geschätzt werden. Für die Kleinsten gibt es mehrere Kindergärten, die fußläufig erreichbar sind und eine hervorragende frühkindliche Betreuung bieten.
Einkaufsmöglichkeiten sind ebenfalls reichlich vorhanden: Supermärkte wie Edeka und Rewe sind nur wenige Minuten entfernt und versorgen dich mit allem, was du für den Alltag benötigst. Die gute Anbindung an den öffentlichen Nahverkehr erleichtert dir zudem die Mobilität in der Stadt. Die Straßenbahnhaltestelle "Bothfeld" ist in kurzer Distanz zu deinem neuen Zuhause und bietet regelmäßige Verbindungen ins Stadtzentrum von Hannover.
Für medizinische Versorgung ist mit mehreren Arztpraxen und Kliniken gesorgt, sodass du im Falle der Fälle schnell Hilfe findest. Freizeitangebote sind in Bothfeld ebenso vielfältig: Ob Spaziergänge im nahen Stadtpark, Sportangebote in den örtlichen Vereinen oder kulturelle Veranstaltungen - hier ist für jeden etwas dabei. Die Autobahn A2 ist ebenfalls schnell erreichbar, was Pendlern eine bequeme Anbindung an die umliegenden Städte bietet. Bothfeld ist somit ein perfekter Ort für Familien, Naturliebhaber und Berufstätige, die die Vorzüge einer ruhigen Wohngegend mit der Nähe zur Stadt verbinden möchten.
Grundriss
Gestaltungsbeispiel EG
>
>
Gestaltungsbeispiel DG
>
>
Adresse
30567 Hannover
Interessante Orte
Preis- und Lageinformationen
Preistrend für Bestandsimmobilien in Bothfeld