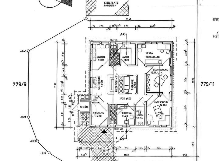
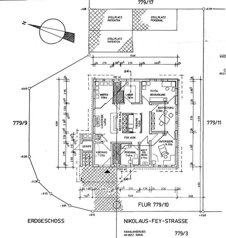
Dieses freistehende Gebäude wurde 1999 als moderne Praxis errichtet und vereint die Vorzüge eines ebenerdigen Bungalows mit einer durchdachten Raumaufteilung. Der Grundriss umfasst eine helle Eingangshalle mit Empfangstresen, einen geräumigen Warteraum sowie mehrere Praxisräume, die sich gut zu Wohn oder Büronutzung umgestalten lassen. Alle Zimmer befinden sich auf einer Ebene, sodass das Gebäude weitgehend barrierefrei ist – ein Vorteil für Kunden oder Bewohner jeden Alters. Große Fensterflächen sorgen für viel Tageslicht und einen freundlichen Eindruck.
Ausstattung & Raumaufteilung
• Empfangsbereich und Warten: Ein repräsentativer Tresen empfängt Besucher direkt am Eingang, daneben befindet sich ein heller Warteraum mit bodentiefen Fenstern und Zugang zum Garten.
• Praxis /Wohnräume: Mehrere Behandlungs und Untersuchungszimmer, die sich auch als Schlaf , Arbeits oder Hobbyzimmer nutzen lassen. Einbauschränke und Anschlüsse für Wasser sowie elektrische Geräte sind vorhanden.
• Labor/Teeküche: Ein Raum mit Doppelspüle, Ober und Unterschränken, der als Labor, Hauswirtschaftsraum oder Küche genutzt werden kann.
• Sanitäre Anlagen: Zwei separate WCs, ursprünglich für Personal und Patienten gedacht, können bei Wohnnutzung als Gäste oder Familien WC genutzt werden.
• Nebenräume: Lager, Garderobe und Heizungsraum bieten ausreichend Stauraum.
Besondere Merkmale & Nutzungsmöglichkeiten
• Flexible Nutzung: Die barrierefreie Immobilie kann nach dem Kauf entweder weiterhin als Praxis, Büro oder Therapiezentrum genutzt werden oder – mit überschaubarem Aufwand – zu einem gemütlichen Einfamilienhaus umgebaut werden.
• Gepflegter Zustand: Der Baukörper mit massivem Mauerwerk, Satteldach und Kunststofffenstern mit Isolierverglasung ist seit 1999 in einem guten, laufend gewarteten Zustand.
• Außenbereich: Auf dem Grundstück befinden sich 7 Stellplätze und ein begrünter Gartenbereich.
Ehemaliges Praxisgebäude für Gewerbe oder als freistehendes Einfamilienhaus
Nikolaus-Fey-Straße 9,
96106 Ebern
Auf Karte anzeigen
Finanzierungszertifikat
In nur zwei Minuten zu Ihrem persönlichen Finanzierungszertifkat.
Infos
| Haustyp | Einfamilienhaus |
|---|---|
| Etagenzahl | 1 |
| Wohnfläche ca. | 83 m2 |
| Nutzfläche | 83 m2 |
| Grundstücksfläche | 551 m2 |
| Bezugsfrei ab | 1.1.2026 |
| Zimmer | 7 |
| Schlafzimmer | 3 |
| Badezimmer | 2 |
| Garage/Stellplatz | Außenstellplatz |
| Anzahl Garage/Stellplatz | 7 |
Kosten
| Kaufpreis |
300.000 € |
|---|---|
| Provision | Nein |
Finanzierungsrechner:
Kaufpreis:
600.000 €
Eigenkapital:
600.000 €
Monatliche Rate
0 €
Effektiver Jahreszins
0 %
Sollzinsbindung
10 Jahre
Bausubstanz & Energieausweis
| Baujahr | 1999 |
|---|---|
| Bauphase | Haus fertig gestellt |
| Objektzustand | Gepflegt |
| Qualität der Austattung | Normal |
| Heizungsart | Gas-Heizung |
| Wesentliche Energieträger | Gas |
| Energieausweis | liegt vor |
| Energieausweistyp | Verbrauchsausweis |
| Energieeffizienzklasse | B |
Energieeffizienzklasse B
- A+
- A
- B
- C
- D
- E
- F
- G
- H
- 0
- 25
- 50
- 75
- 100
- 125
- 150
- 175
- 200
- 225
- >250
Beschreibung des Objekts
Lage
Die Immobilie befindet sich in Ebern und liegt damit im nördlichen Teil des fränkischen Landkreises Haßberge. Das Umfeld ist geprägt von gepflegten Ein und Zweifamilienhäusern sowie viel Grün.
Im Ortskern befinden sich Einkaufsmöglichkeiten für den täglichen Bedarf, Ärzte, Apotheken und gastronomische Angebote. Schulen, Kindergarten und Sportanlagen sind ebenso gut erreichbar, was den Standort für Familien attraktiv macht. Die historische Altstadt mit ihren Türmen und mittelalterlichen Bauten (das sogenannte „Eberner Kegelspiel“) bietet einen hohen Freizeit und Erholungswert. Gleichzeitig profitieren Berufstätige von einer guten Verkehrsanbindung: Über die Bundesstraße 279 besteht Anschluss nach Bamberg und Bad Königshofen; der Bahnhof Ebern liegt an der Bahnstrecke Bamberg–Ebern, sodass öffentliche Verkehrsmittel eine Alternative zum Auto darstellen.
Der Landkreis Haßberge, zu dem Ebern gehört, verzeichnet laut ImmoScout Daten eine deutliche Steigerung der Immobilienpreise und Mieten im Zeitraum 2024–2025. Dies deutet auf eine dynamische Region mit guter Zukunftsperspektive hin. Für potenzielle Käufer bedeutet dies, dass neben der hohen Lebensqualität vor Ort auch wirtschaftliche Faktoren wie Wertbeständigkeit und Vermietbarkeit sprechen. Insgesamt vereint die Lage städtische Infrastruktur, naturnahe Erholung und stabile Marktbedingungen – perfekte Voraussetzungen sowohl für eine Gewerbenutzung als auch für das Wohnen im eigenen Bungalow.
Weitere Dokumente
WohnflächeEnergieausweis
Adresse
Nikolaus-Fey-Straße 9, 96106 Ebern
Interessante Orte
Preis- und Lageinformationen
Preistrend für Bestandsimmobilien in Ebern
>