Willkommen in deinem zukünftigen Zuhause in Misburg, einem Ort, der für seine Lebensqualität bekannt ist. Hier erwartet dich ein beeindruckendes Fertighaus mit einer großzügigen Wohnfläche von 201,37 m², das ganz nach deinen Wünschen und Vorstellungen projektiert wird. Mit insgesamt 7 Zimmern und 5 Schlafzimmern bietet dieses zweigeschossige Haus ausreichend Platz für die ganze Familie. Der stilvolle Satteldach mit einer Neigung von 25 Grad verleiht dem Gebäude nicht nur eine ansprechende Optik, sondern sorgt auch für ein behagliches Wohngefühl. Die Übereck-Erker schaffen einen offenen und lichtdurchfluteten Wohn- und Essbereich im Erdgeschoss, der einladend und gemütlich ist und dir das Gefühl von Zuhause vermittelt.
LivingHaus bietet dir darüber hinaus zahlreiche zusätzliche Leistungen, die deinen Hausbau zu einem besonderen Erlebnis machen. Die Traumküche von LivingHaus ist ein echtes Highlight. Sie wird exakt auf deinen Grundriss abgestimmt und überzeugt durch modernste Technik, clevere Stauraumlösungen und ein ästhetisches Design. So kannst du sofort nach dem Einzug mit dem Kochen starten. Das LivingHaus Bau-Cockpit ermöglicht es dir, dein Bauprojekt digital zu verwalten und jederzeit den Überblick zu behalten. Von der Terminplanung bis zur Dokumentenverwaltung - alles ist einfach zugänglich. I-KON, das Konzept für intelligentes Bauen, sorgt dafür, dass dein Zuhause energieeffizient und umweltfreundlich wird. Mit dem I-KON Effizienzhaus 55 benötigst du nur 55 % der Energie eines Standardhauses und profitierst von innovativer Dämmung und intelligenter Heiztechnik.
Das Zuhause-Darlehen ermöglicht dir die Finanzierung deines Traums zu besonders günstigen Konditionen, während das Zuhause-Paket eine hochwertige Grundausstattung mit modernen Böden, edlen Türen und stilvollen Sanitäranlagen enthält. Zudem bietet dir das DIY-Ausbau-Coaching die Möglichkeit, deinen Innenausbau selbst in die Hand zu nehmen und dabei von Experten unterstützt zu werden. So wird dein Fertighaus nicht nur zum Wohnort, sondern zum Ausdruck deiner Persönlichkeit und deines Lebensstils.
Dein individuelles Traumhaus - maßgeschneidert von LivingHaus
30627 Hannover
Die vollständige Adresse der Immobilie erhalten Sie vom Anbieter.
Auf Karte anzeigen
Die vollständige Adresse der Immobilie erhalten Sie vom Anbieter.
Finanzierungszertifikat
In nur zwei Minuten zu Ihrem persönlichen Finanzierungszertifkat.
Infos
| Haustyp | Einfamilienhaus |
|---|---|
| Etagenzahl | 2 |
| Wohnfläche ca. | 201 m2 |
| Nutzfläche | 201,37 m2 |
| Grundstücksfläche | 510 m2 |
| Zimmer | 7 |
| Schlafzimmer | 5 |
| Badezimmer | 1 |
Kosten
| Kaufpreis |
590.704 € |
|---|
Finanzierungsrechner:
Kaufpreis:
600.000 €
Eigenkapital:
600.000 €
Monatliche Rate
0 €
Effektiver Jahreszins
0 %
Sollzinsbindung
10 Jahre
Bausubstanz & Energieausweis
| Baujahr | 2026 |
|---|---|
| Bauphase | Haus in Planung (projektiert) |
| Qualität der Austattung | Gehoben |
| Energieausweis | liegt vor |
| Energieausweistyp | Bedarfsausweis |
| Energieverbrauchskennwert | 18,0 kWh/(m²*a) |
| Energieeffizienzklasse | A+ |
18,0
kWh/(m²*a)
Energieeffizienzklasse A+
- A+
- A
- B
- C
- D
- E
- F
- G
- H
- 0
- 25
- 50
- 75
- 100
- 125
- 150
- 175
- 200
- 225
- >250
Beschreibung des Objekts
Ausstattung
Die Ausstattung deines neuen Zuhauses in Misburg lässt keine Wünsche offen. Du profitierst von einer hochwertigen Grundausstattung, die moderne Böden, edle Türen und stilvolle Sanitäranlagen umfasst. Die durchdachte Planung sorgt dafür, dass alles optimal aufeinander abgestimmt ist und fix und fertig geliefert wird. Das Zuhause-Paket beinhaltet zudem eine individuell geplante Traumküche, die genau auf deinen Grundriss abgestimmt ist. Mit modernster Technik und cleveren Stauraumlösungen wird sie zum Mittelpunkt deines neuen Zuhauses.
Dank des I-KON-Systems kannst du von einer integrierten PV-Anlage samt Speicherbatterie profitieren, die dir ermöglicht, einen Großteil deines Strombedarfs selbst zu erzeugen. Die moderne Wärmepumpentechnik sorgt für effizientes Heizen und ein angenehmes Raumklima. Außerdem erhältst du im Rahmen des DIY-Ausbau-Coachings professionelle Unterstützung, sodass du den Innenausbau deines Hauses selbst verwirklichen kannst. Dein individuelles Fertighaus wird genau so, wie du es willst.
Lage
Misburg ist eine äußerst attraktive Lage für Familien und Naturliebhaber. Die Umgebung bietet eine Vielzahl an Bildungseinrichtungen, darunter mehrere Kindergärten und Schulen, die alle fußläufig erreichbar sind und hervorragende Bewertungen haben. Der nahegelegene Kindergarten "Kleine Strolche" ist bei Eltern sehr beliebt und bietet eine liebevolle Betreuung. Die Grundschule Misburg hat einen ausgezeichneten Ruf und legt großen Wert auf eine individuelle Förderung der Schüler.
Für den täglichen Einkauf findest du in der Umgebung zahlreiche Supermärkte und Fachgeschäfte, darunter einen REWE und einen EDEKA, die alles für den täglichen Bedarf bereithalten. Zudem sind Ärzte, Apotheken und andere Dienstleister in der Nähe und sorgen für eine gute medizinische Versorgung. Die Anbindung an den öffentlichen Nahverkehr ist optimal, und die Buslinien bringen dich schnell in die Innenstadt von Hannover. Auch die Autobahn ist in wenigen Minuten erreichbar, was Pendlern zugutekommt.
Die Umgebung von Misburg bietet zudem vielfältige Freizeitmöglichkeiten. Der nahegelegene Stadtpark lädt zu ausgedehnten Spaziergängen und sportlichen Aktivitäten ein, während die Leinemasch mit ihren schönen Rad- und Wanderwegen ideal für Naturliebhaber ist. Mit all diesen Vorzügen ist Misburg der perfekte Ort für dein neues Zuhause.
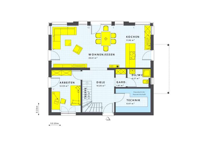
Grundriss
Grundriss EG
>
>
Grundriss OG
>
>
Adresse
30627 Hannover
Interessante Orte
Preis- und Lageinformationen
Preistrend für Bestandsimmobilien in Misburg-Nord