Bei diesem Inserat bietet Ihnen die ROSTOW Bau GmbH die Möglichkeit ein reales Grundstück zu erwerben und gleichzeitig mit eines unserer Häuser zu bebauen.
Sie können selbstverständlich auch andere Haustypen und Hausgrößen wählen.
Schauen Sie hierzu am besten auf unserer Homepage vorbei.
Der ausgewiesene Kaufpreis setzt sich aus dem reinen Grundstückskaufpreis und dem Preis für das abgebildete Haus, im schlüsselfertigem Zustand, zusammen.
Jedes unserer schlüsselfertigen Häuser besitzt alle Merkmale, die Sie im Folgetext unter „Ausstattung“ widerfinden.
Als familiengeführtes, ostdeutsches Bau- und Projektentwicklungsunternehmen in zweiter Generation können wir auf eine 30-Jährige Erfahrung zurückblicken.
Über 3.200 gebaute Häuser sprechen für sich !
Außerdem werden uns eine ausgezeichnete Bonität durch unseren Wirtschaftsprüfer, unsere Hausbank und die Creditreform bescheinigt.
Dies weisen wir Ihnen gerne „Schwarz auf Weiß“ in einem Gespräch nach!
Der Grundstückskauf erfolgt separat, wodurch wir keine Gewährleistung für die Richtigkeit der automatischen Finanzierungsrechnung übernehmen können!
Finanzierungszertifikat
In nur zwei Minuten zu Ihrem persönlichen Finanzierungszertifkat.
Infos
| Haustyp | Einfamilienhaus |
|---|---|
| Etagenzahl | 2 |
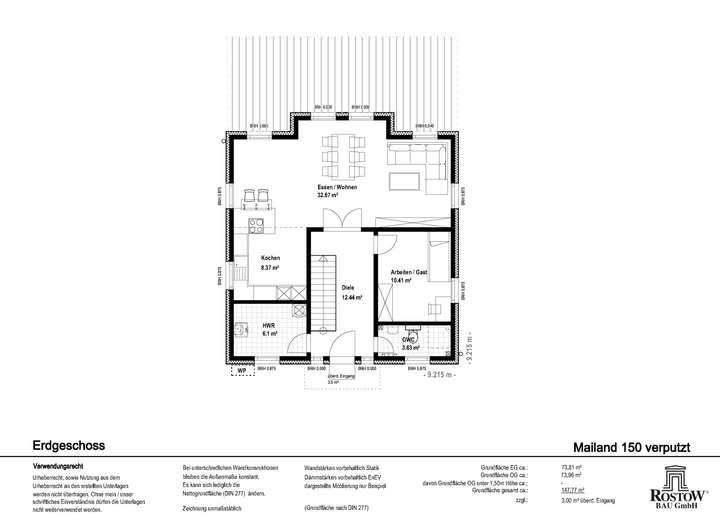
| Wohnfläche ca. | 150 m2 |
| Nutzfläche | 150 m2 |
| Grundstücksfläche | 910 m2 |
| Zimmer | 5 |
| Schlafzimmer | 4 |
| Badezimmer | 2 |
| Garage/Stellplatz | Außenstellplatz |
Kosten
| Kaufpreis |
452.890 € |
|---|---|
| Provision | Nein |
Finanzierungsrechner:
Kaufpreis:
600.000 €
Eigenkapital:
600.000 €
Monatliche Rate
0 €
Effektiver Jahreszins
0 %
Sollzinsbindung
10 Jahre
Bausubstanz & Energieausweis
| Qualität der Austattung | Gehoben |
|---|---|
| Heizungsart | Wärmepumpe |
| Wesentliche Energieträger | Umweltwärme |
Beschreibung des Objekts
Ausstattung
Wir feiern Jubiläum:
30 Jahre ROSTOW Bau GmbH!
Jedes unserer Häuser wird mit massiven Blähton-Wandelemente errichtet.
Diese garantieren Ihnen bestes Raumklima und höchsten Schallschutz!
Außerdem ist bereits ein individuelle Gestaltung Ihres Grundrisses ohne Aufpreis enthalten!
Folgende Ausstattungsmerkmale sind bereits in jedem unserer Häuser inkludiert:
- Bodenplatte
- Tondachpfannen
- bodenebene Dusche
- Fliesen bis zu 50 €/m²
- Duo-Badewanne mit extra viel Platz
- Handtuchheizkörper
- Brause-Thermostatbatterie
- Dreifach-Verglasung aller Fenster
- Aluminium-Rollläden im gesamten Haus
- Außenluftwärmepumpe mit Fußbodenheizung
- Edelstahl-Warmwasserspeicher
- Vorbereitung für eine PV-Anlage
- Lüftungskonzept „Regel Air“
- Smart-Home Heizungssteuerung
- Pilzkopfverriegelungen an den Fenstern
- u. v. m.
Lage
Das vorgestellte Grundstück befindet sich am Ortseingang des wunderschönen Ortes Heiligenhagen, gemeinsam mit noch 10 weiteren Grundstücken.
Heiligenhagen ist der zweitgrößte Ort der Amtsfreien Gemeinde Satow, mit ca. 1.000 Einwohnern.
Fußball- und Basketballplatz, Bushaltestelle für Schulbusse nach Satow und Rostock, Gemeindezentrum mit integrierter freiwilliger Feuerwehr und dahintergelegenem Spielplatz, sind in unter 5 Minuten fußläufig erreichbar.
Heiligenhagen besticht durch seine Größe und die wunderbare Natur. Der Ort ist von Feldern und Wiesen sowie dem Heiligenhäger Wald umgeben.
Der Heiligenhäger Wald lädt zum Spazieren und Verweilen ein.
Im nächstgelegenen Ort Satow finden Sie Tier-, Allgemein- und Zahnärzte, eine neue Grund- und Regionalschule, mehrere Einkaufsmöglichkeiten, einen kleinen Baumarkt sowie divers Freizeitangebote (Bowlingbahn, Badesee, u. v. m.).
Von Heiligenhagen können Sie die Rostocker und Wismarer Innenstand sowie den Ostseestrand innerhalb von 30 Minuten mit dem Auto erreichen.
Sonstige Angaben
Der Angebotspreis setzt sich aus dem Grundstückskaufpreis und dem Gebäudepreis zusammen. Erwerbs- und Baunebenkosten sind noch nicht enthalten.
Weitere Fragen zum Grundstück und zur Planung Ihres ROSTOW -Hauses beantworte wir Ihnen gern in einem persönlichen Gespräch in unseren Büroräumen in der August- Bebel- Straße 1a in 18055 Rostock.
***Bitte haben Sie dafür Verständnis, dass wir nur auf Anfragen mit vollständiger Angabe Ihrer Kontaktdaten eingehen können.***
Änderungen, Irrtümer und Zwischenverkauf bleiben vorbehalten!
Weitere Dokumente
Heiligenhagen_Parzellierung_OnBlaehton_Flyer
Rostow Flyer allgemein
Adresse
Heiligenhäger Straße 29a, 18239 Satow
Interessante Orte
Preis- und Lageinformationen
Preistrend für Bestandsimmobilien in Satow
>
>