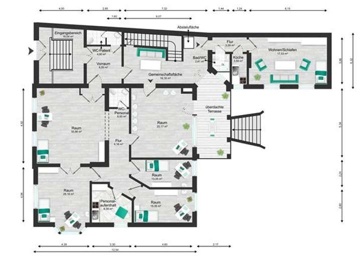
Das Grundstück ist frei von Nutzern unvermietet zu erwerben!!! Die in 1895 geschaffene Fabrikantenvilla ist vom jetzigen Eigentümer konsequent etwa in 2000 für ihre jetzige Verwendung umgebaut und ausgebaut worden. Dabei wurde die Gebäudehülle im Kellerbereich sehr aufwendig horizontal und vertikal abgedichtet, so dass ein Keller in bester Qualität entstanden ist. Danach folgten weitere Maßnahmen im Energiebereich und in der Außengestaltung. Sie können das gesamte Hauptgebäude mit seinem herrschaftlichen Flair mit Garten, beheiztem Schwimmteich, überdachter EG-Terrasse, Wintergarten im DG, großzügigen Garagen und weiteren überdachten und unüberdachten Stellflächen zum Wohnen, auch als Mehrgenerationshaus, nutzen. Sie können auch das ganze Gebäude als Anlageobjekt in Teilbereichen vermieten, eventuell Einzelbereiche wie Wohnen oder Praxis selbst nutzen oder oder. Derzeitig ist es wie folgt mit notarieller Teilungserklärung strukturiert und genutzt: Im Erdgeschoss befindet sich mit einer Fläche von etwa 160 m² eine Arztpraxis mit der erforderlichen Ausstattung und Raumaufteilung. Weiterhin gibt es im EG eine etwas über 30 m² große Einliegerwohnung mit kleinem Bad und Wohnraum mit Kochnische. Das Dachgeschoss beherbergt eine hochwertig ausgestattete Wohnung mit 5 Zimmern, einem Wannenbad, einem Duschbad mit WC, einer modernen Küche und einem zum Gartengrundstück ausgerichteten Wintergarten, der einen beeindruckenden Blick über den Garten mit Schwimmteich freigibt. Das Gebäude ist voll unterkellert. Hier sind neben Räumen für dies und das auch ein Billardraum, ein Saunaraum und eine Waschküche untergebracht. Im Gebäude und Außenbereich sind Wohnbereich mit Schwimmteich, Gartenfläche, Garagen usw. und der Praxisbereich mit ausreichenden Patientenstellplätzen organisatorisch und vor allem auch gefühlt mit entsprechenden Sichtschutzelementen sehr geschickt voneinander getrennt angeordnet.
Innerstädtisches stilvolles Wohn- und Geschäftshaus
14943 Luckenwalde
Die vollständige Adresse der Immobilie erhalten Sie vom Anbieter.
Auf Karte anzeigen
Die vollständige Adresse der Immobilie erhalten Sie vom Anbieter.
Finanzierungszertifikat
In nur zwei Minuten zu Ihrem persönlichen Finanzierungszertifkat.
Infos
| Haustyp | Sonstige |
|---|---|
| Etagenzahl | 2 |
| Wohnfläche ca. | 364 m2 |
| Grundstücksfläche | 1.809 m2 |
| Bezugsfrei ab | 2026 |
| Zimmer | 10 |
| Badezimmer | 3 |
| Anzahl Garage/Stellplatz | 8 |
Kosten
| Kaufpreis |
950.000 € |
|---|---|
| Provision |
7,14 % vom Kaufpreis, inkl. Mehrwertsteuer Die Käuferprovision beträgt 7,14 % vom Kaufpreis, inkl. Mehrwertsteuer. Auf Wunsch können wir Ihnen separat und so sicher besser lesbar die Grundrisse oder eine Wohnflächenberechnung oder weitere Informationen zur Verfügung stellen. |
Finanzierungsrechner:
Kaufpreis:
600.000 €
Eigenkapital:
600.000 €
Monatliche Rate
0 €
Effektiver Jahreszins
0 %
Sollzinsbindung
10 Jahre
Bausubstanz & Energieausweis
| Baujahr | 1895 |
|---|---|
| Letzte Sanierung | 2000 |
| Objektzustand | Gepflegt |
| Qualität der Austattung | Gehoben |
| Heizungsart | Gas-Heizung |
| Wesentliche Energieträger | Gas |
| Energieausweis | liegt vor |
| Energieausweistyp | Verbrauchsausweis |
| Energieverbrauchskennwert | 90,5 kWh/(m²*a) |
| Energieeffizienzklasse | C |
90,5
kWh/(m²*a)
Energieeffizienzklasse C
- A+
- A
- B
- C
- D
- E
- F
- G
- H
- 0
- 25
- 50
- 75
- 100
- 125
- 150
- 175
- 200
- 225
- >250
Beschreibung des Objekts
Ausstattung
Grundstück und Gebäude sind an die öffentlichen Netze von Wasser, Abwasser, Gas, Strom und Telekommunikation angeschlossen. Es gibt vielfältige komfortable Ausstattungen wie Kunststofffenster mit Wärmeschutzverglasung, Fußbodenheizung in der Dachgeschosswohnung, elektrisch betriebene Abschattungen, Eichenparkettfußböden, Brennwertthermen für die Gaszentralheizungen inkl. Warmwasserbereitung und eine Photovoltaikanlage, die z.B. in 2024 17 MW Strom erzeugte, die die aktuellen Verbräuche sichert und den Überschuss in die Batterie speichert. Wenn diese ihre Kapazität erreicht hat, leitet sie in das öffentliche Stromnetz. Bei städtischem Stromausfall schaltet die Batterie ein Notstromaggregat dazu. Es gibt eine Rauchmeldeanlage, die über die Alarmanlage die Feuerwehr informiert, eine komplexe mehrfach absichernde Blitzschutzanlage, Klimaanlage in der Dachgeschosswohnung im Wohnraum und Schlafzimmer und in der Praxis in zwei Behandlungsräumen, einen Kamin im Wohnraum der Dachgeschosswohnung, eine Wärmepume für die Schwimmteichheizung und eine Wallbox in der Großgarage für die Aufladung des oder der E-Autos und einen Brunnen für die günstige Gartenbewässerung. Das Wasser des etwa 9 Meter langen und 6 Meter breiten gemauerten und mit Folie ausgekleideten Schwimmteichs mit 2 Holzdecks wird durch eine oberirdische Filterfläche gereinigt und mittels Pumpe zurück ins Becken geführt. Die zum Teil mit Wohnmobil befahrbare große Garage hat Platz für 6 Fahrzeuge. Für die Praxis stehen auf der dafür auf dem Grundstück vorgesehenen Parkfläche 6, für die beiden Wohnungen 2 Stellplätze zur Verfügung.
Lage
Die Kreisstadt des Landkreises Teltow-Fläming bietet ihren etwa 21.000 Bewohnern, dem Umland und seinen Gästen wesentlich mehr, als ein Verwaltungssitz der Stadt und des Landkreises zu leisten verpflichtet ist. Etwa 50 Kilometer südlich von Potsdam, der Landeshauptstadt Brandenburgs und Berlin gelegen, sind beide Metropolen über die Bundesstraße 101 in 30 Fahrminuten zu erreichen. Auch mit der Regionalbahn sind Sie in der gleichen Zeit in der Bundeshauptstadt.
Luckenwalde ist zu einem von 15 "Regionalen Wachstumskernen" im Land bestimmt worden. Die damit verbundenen Förderungen ermöglichen den Ausbau vorhandener, aber hauptsächlich die Neuansiedlung zukunftsorientierter Betriebe. Ein Biotechnologiepark leistet dabei sich gründenden Unternehmen entscheidende Starthilfe. Die Stadt und das Kreisgebiet setzen, begünstigt durch die interessante landschaftliche Lage, zunehmend auf touristische Aktivitäten. Aus dem historischen Mittelpunkt des Marktplatzes und der angrenzenden Haupteinkaufsstraße, der Breiten Straße, können Sie in allen Richtungen viel Sehenswertes erleben. Eine etwa 220 Kilometer lange Flaeming-Skate-Strecke, die längste Deutschlands, ermöglicht auch mit dem Rad das sensible und zielgerichtete Kennenlernen der Region. Aber auch ein sehr gut organisiertes, verzweigtes Nahverkehrsnetz steht für die Erkundung zahlreicher kultureller, historischer oder sportlicher Institutionen zur Verfügung. Neben dem historischen Stadtzentrum mit interessanten Baudenkmälern, wie Sankt-Johannis-Kirche, Marktturm und Heimatmuseum und sich anschließender Fußgängerzone sind noch einige Höhepunkte zu erwähnen, wie Stadt- und Tierpark, ein in eine wald- und wiesenreiche Landschaft einbettendes historisches Freibad, außerdem die Fläming-Therme, ein modernes Spaß- und Familienbad, Stadttheater im Ensemble mit der Friedrich-Ebert-Schule im "Stil des Neuen Bauens" und ein Kino mit mehreren Aufführungsräumen. Von Kitas über Grundschulen bis zum Gymnasium ist Luckenwalde auch für die jungen Familien attraktiv. Aber auch ein vorzeigbares Krankenhaus und Einrichtungen für ältere Bürger fehlen in dieser Wohlfühlstadt nicht. Dass es sich hier zu leben lohnt, zeigt die Tatsache, dass der seit der Wende sich vollzogene Bevölkerungsrückgang gestoppt werden konnte und es fast gleich viele Ein- und Auspendler gibt. Inzwischen nimmt die Bevölkerung zu. Luckenwalde, immer schon Sportstadt, mit 30 aktiven Vereinen, ermöglicht jedem seiner Bürger, besonders den jungen Menschen, die richtige geeignete Sportart zu finden und somit das Freizeitangebot mit seiner wichtigen sozialen und gesundheitsfördernden Komponente zu genießen.
Sonstige Angaben
Der Kaufpreis beträgt 950.000 €, zuzüglich 7,14 % Käuferprovision, inkl. Mehrwertsteuer.
Vor einer gern durchzuführenden Besichtigung möchten wir mit Ihnen ein ausführliches Telefonat zur Immobilie und Ihren Vorstellungen führen, um dabei gemeinsam zu ermitteln, ob es sich um das Grundstück handeln könnte, welches Sie suchen. Benutzen Sie bei Interesse die Kontaktmöglichkeit der Immobilienportale oder senden Sie uns eine E-Mail an info@trendimmobilien-burczyk.de, telefonisch erreichen Sie uns unter 0049 171/2427530.
Adresse
14943 Luckenwalde
Interessante Orte
Preis- und Lageinformationen
Preistrend für Bestandsimmobilien in Luckenwalde