Willkommen in deinem zukünftigen Zuhause in Burgdorf! Dieses beeindruckende Fertighaus mit 201,37 m² Wohnfläche und einem großzügigen Grundstück von 670 m² bietet dir alles, was du dir für dein individuelles Traumhaus wünschst. Die stilvolle Architektur mit einem Satteldach und einer Neigung von 25 Grad verleiht dem Haus ein klassisches und zugleich modernes Aussehen. Die Übereck-Erker sorgen für einen lichtdurchfluteten Wohn- und Essbereich im Erdgeschoss, der dir und deiner Familie viel Platz für gemeinsame Momente bietet. Mit insgesamt 7 Zimmern, darunter 5 Schlafzimmer, ist dieses Haus ideal für Familien und bietet zahlreiche Gestaltungsmöglichkeiten. Bei LivingHaus erhältst du nicht nur ein schlüsselfertiges Zuhause, sondern auch eine Vielzahl an zusätzlichen Leistungen, die dein Bauprojekt zum Erfolg machen. Die hochwertige Traumküche wird perfekt auf deinen Grundriss abgestimmt und ist mit modernster Technik sowie cleveren Stauraumlösungen ausgestattet. Rechtzeitig zum Einzug kannst du in deiner neuen Küche kulinarische Köstlichkeiten zaubern. Mit der Living Haus Bau-App behältst du dank des Bau-Cockpits jederzeit den Überblick über dein Projekt. Von der Terminplanung bis zur Dokumentenverwaltung - alles ist digital und leicht zugänglich, was dir einen stressfreien Bau ermöglicht. Das I-KON-Konzept sorgt dafür, dass dein Zuhause energieeffizient und umweltfreundlich ist. Als Effizienzhaus 55 benötigt dein neues Heim nur 55 % der Energie eines herkömmlichen Hauses, was nicht nur gut für die Umwelt, sondern auch für deine Geldbörse ist. Zusätzlich kannst du dein Traumhaus mit dem Zuhause-Darlehen finanzieren und profitierst von attraktiven Zinssätzen sowie staatlichen Förderprogrammen. Das Zuhause-Paket bietet dir eine hochwertige Grundausstattung mit modernen Böden, edlen Türen und stilvollen Sanitäranlagen, die bereits fix und fertig geliefert werden. Wenn du handwerklich begabt bist oder es werden möchtest, gibt dir das DIY-Ausbau-Coaching die Möglichkeit, deinen Innenausbau selbst zu meistern. In nur drei Tagen zeigen dir Experten, wie du dein Zuhause individuell gestalten kannst. Mit LivingHaus erhältst du ein durchdachtes Gesamtkonzept von der Finanzierung über die Planung bis zur individuellen Ausgestaltung, damit dein Traumhaus so sicher und passend wie möglich verwirklicht wird.
Dein individuelles Traumhaus in Burgdorf - das perfekte Zuhause von LivingHaus
31303 Burgdorf
Die vollständige Adresse der Immobilie erhalten Sie vom Anbieter.
Auf Karte anzeigen
Die vollständige Adresse der Immobilie erhalten Sie vom Anbieter.

Finanzierungszertifikat
In nur zwei Minuten zu Ihrem persönlichen Finanzierungszertifkat.
Infos
Haustyp | Einfamilienhaus |
---|---|
Etagenzahl | 2 |
Wohnfläche ca. | 201 m2 |
Nutzfläche | 201,37 m2 |
Grundstücksfläche | 620 m2 |
Zimmer | 7 |
Schlafzimmer | 5 |
Badezimmer | 1 |
Kosten
Kaufpreis |
742.948 € |
---|
Finanzierungsrechner:
Kaufpreis:
600.000 €
Eigenkapital:
600.000 €
Monatliche Rate
0 €
Effektiver Jahreszins
0 %
Sollzinsbindung
10 Jahre
Bausubstanz & Energieausweis
Baujahr | 2026 |
---|---|
Bauphase | Haus in Planung (projektiert) |
Qualität der Austattung | Gehoben |
Energieausweis | liegt vor |
Energieausweistyp | Bedarfsausweis |
Energieverbrauchskennwert | 18,0 kWh/(m²*a) |
Energieeffizienzklasse | A+ |
18,0
kWh/(m²*a)
Energieeffizienzklasse A+
- A+
- A
- B
- C
- D
- E
- F
- G
- H
- 0
- 25
- 50
- 75
- 100
- 125
- 150
- 175
- 200
- 225
- >250
Beschreibung des Objekts
Ausstattung
Dein zukünftiges Zuhause wird mit einer Vielzahl von hochwertigen Ausstattungsmerkmalen versehen, die für Komfort und Stil sorgen. Die moderne Traumküche ist exakt auf deinen Grundriss abgestimmt und bietet dir die neuste Technik sowie praktische Stauraumlösungen. Das Zuhause-Paket sorgt für eine hochwertige Grundausstattung, die moderne Böden, edle Türen und stilvolle Sanitäranlagen umfasst. Durch den hohen Vorfertigungsgrad und die geschlossenen Wände wird der Bauprozess effizient gestaltet, sodass du schnell in dein neues Heim einziehen kannst. Die I-KON-Lösung sorgt für eine nachhaltige und energieeffiziente Bauweise. Mit einer integrierten PV-Anlage und moderner Wärmepumpentechnik ist dein Zuhause nicht nur umweltfreundlich, sondern schont auch deinen Geldbeutel durch niedrige Energiekosten. Zusätzlich erhältst du eine umfangreiche Bauantragsplanung durch erfahrene Architekten sowie ein Bodengutachten für die ideale Gründung. Das DIY-Ausbau-Coaching gibt dir die Möglichkeit, selbst Hand anzulegen und deinen Innenausbau mit professioneller Unterstützung zu meistern. Das alles sorgt dafür, dass du dein "Wie ich es will Fertighaus" verwirklichen kannst.
Lage
Burgdorf ist ein familienfreundlicher Ort mit einer hervorragenden Infrastruktur. In der Umgebung findest du zahlreiche Schulen, darunter die Grundschule Burgdorf und die Oberschule, die beide sehr gute Bewertungen erhalten haben. Für die Kleinsten stehen mehrere Kindergärten zur Verfügung, die eine liebevolle Betreuung bieten. Einkaufsmöglichkeiten sind in der Nähe reichlich vorhanden. Supermärkte wie Edeka und Lidl sind nur wenige Minuten entfernt und versorgen dich mit allem, was du für den täglichen Bedarf benötigst. Auch Ärzte und Apotheken sind in der Umgebung gut erreichbar, was dir zusätzliche Sicherheit gibt. Für Freizeitaktivitäten gibt es in Burgdorf zahlreiche Möglichkeiten. Parks und Spielplätze laden zu entspannenden Stunden im Freien ein, während Sportvereine und Freizeitangebote wie Schwimmbäder und Sportstätten für Abwechslung sorgen. Die Verkehrsanbindung in Burgdorf ist ebenfalls hervorragend. Du erreichst die Autobahn A2 in kurzer Zeit, was Pendlern zugutekommt. Zudem gibt es eine gute Anbindung an den öffentlichen Personennahverkehr, sodass du bequem und schnell in die umliegenden Städte gelangst. Burgdorf ist somit der ideale Ort für Familien, Naturliebhaber und Pendler, die ein harmonisches und aktives Leben führen möchten.
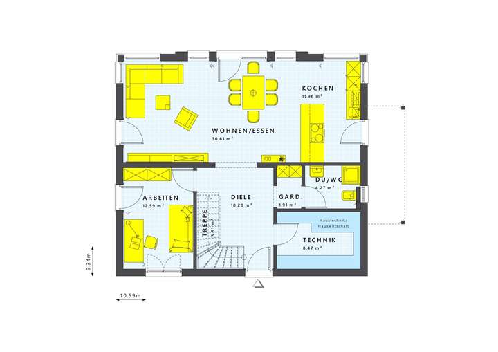
Grundriss
Grundriss EG
>

Grundriss OG
>

Adresse
31303 Burgdorf
Interessante Orte
Preis- und Lageinformationen
Preistrend für Bestandsimmobilien in Burgdorf