Dieses einzigartige Landhaus in Bad Heilbrunn, Ortsteil Hohenbirken, bietet Ihnen jede Menge Platz in allen Bereichen und die absolute Nähe zur Natur. Die Wohnfläche beträgt ca. 293 m² und das weitläufige Grundstück ca. 2430 m². Nutzflächen bieten die Kellerräume, die Tenne sowie die 3 Garagen.
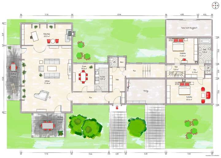
Das Anwesen besteht aus zwei miteinander verbundenen Baukörpern. Dem nördlichen Teil, ein Wohnhaus bestehend aus Kellergeschoss, Erdgeschoss und ausgebautem Dachgeschoss mit angrenzender Tenne und dem südlichen Teil, bestehend aus einem ebenerdigen und großzügigem Wohnzimmer mit angrenzendem Kaminzimmer mit insgesamt ca. 100 m² Wohnfläche.
An diesen sehr offen gestalteten Wohnbereich grenzt zusätzlich eine großzügige Ost-Süd-Terrasse an.
Der ebenerdige Verbindungsbau enthält ein Esszimmer, eine Küche, ein Gäste-WC, einen großzügigen Flur/Empfangsbereich und einen Abstellraum.
Der liebevoll angelegte Garten, bietet Ihnen Ruhe und Erholung inmitten der Natur, sodass Sie Ihre Privatsphäre genießen können.
Dieses Anwesen kann man nur bis zu einem bestimmte Punkt beschreiben aber wirklich fühlen und erleben muss man es vor Ort.
Kontaktieren Sie uns über die gängigen Portale und wir setzen uns mit Ihnen in Verbindung.
Einzigartiges Landhaus im Grünen
83670 Bad Heilbrunn
Die vollständige Adresse der Immobilie erhalten Sie vom Anbieter.
Auf Karte anzeigen
Die vollständige Adresse der Immobilie erhalten Sie vom Anbieter.
Finanzierungszertifikat
In nur zwei Minuten zu Ihrem persönlichen Finanzierungszertifkat.
Infos
| Haustyp | Sonstige |
|---|---|
| Wohnfläche ca. | 293 m2 |
| Grundstücksfläche | 2.430 m2 |
| Zimmer | 7 |
| Schlafzimmer | 4 |
| Badezimmer | 2 |
| Garage/Stellplatz | Garage |
| Anzahl Garage/Stellplatz | 3 |
Kosten
| Kaufpreis |
1.750.000 € |
|---|---|
| Provision |
3,57 % inkl. ges. MwSt. |
Finanzierungsrechner:
Kaufpreis:
600.000 €
Eigenkapital:
600.000 €
Monatliche Rate
0 €
Effektiver Jahreszins
0 %
Sollzinsbindung
10 Jahre
Bausubstanz & Energieausweis
| Baujahr | 1969 |
|---|---|
| Letzte Sanierung | 2022 |
| Bauphase | Haus fertig gestellt |
| Heizungsart | Zentralheizung |
| Wesentliche Energieträger | Öl |
| Energieausweis | liegt vor |
| Energieausweistyp | Verbrauchsausweis |
| Energieverbrauchskennwert | 142,0 kWh/(m²*a) |
| Energieeffizienzklasse | E |
142,0
kWh/(m²*a)
Energieeffizienzklasse E
- A+
- A
- B
- C
- D
- E
- F
- G
- H
- 0
- 25
- 50
- 75
- 100
- 125
- 150
- 175
- 200
- 225
- >250
Beschreibung des Objekts
Ausstattung
Individuelle Ausstattungsmerkmale:
- einzigartige Lage
- Privatsphäre
- ruhig
Baumaßnahmen:
1998: Errichtung eines großen und hochwertigen Doppelgaragenhauses.
1995: Umfangreiche Sanierung der Wohnräume
• neue Fliesenböden im Wohnzimmer, Esszimmer, Küche und in den Fluren
• Sanierung der Gästetoilette
• neue Decke im Wohnzimmer
• Erschließung eines neuen Badezimmers im 1. Stock des Altbaus
• Sanierung von zwei Zimmern im 1. Stock des Altbaus
Oktober 2022: Behindertengerechte Sanierung eines Badezimmers
Es wurde eine neue barrierefreie Dusche sowie ein neuer Waschtisch (mit Rollstuhl unterfahrbar) installiert.
Das gesamte Badezimmer wurde zudem neu gefliest.
Das Grundstück liegt zwar im Hochwassergebiet, ist allerdings über einen hauseigenen Schutzwall geschützt.
Der Schutzwall wurde im Jahr 2006 fachmännisch errichtet und ist zusätzlich mit einer festinstallierten Pumpe ausgestattet.
Bis dato kam noch nie Wasser in die Wohnräume des Hauses. Lediglich der Keller des mehrstöckigen Altbaus ist vom Hochwasser betroffen gewesen.
Im Keller wurde ebenfalls eine Hochwasserpumpe fest installiert.
Lage
In der idyllischen Gemeinde Bad Heilbrunn (Ortsteil Hohenbirken), einem heilklimatischen Kurort im oberbayerischen Landkreis Bad Tölz-Wolfratshausen, befindet sich unser exklusives Landhaus. Die ländliche Lage, etwa 4,6 km nordwestlich vom Stadtzentrum, bietet eine ruhige Umgebung und doch ist man schnell in der Nähe von Einkaufsmöglichkeiten, Verkehrsanbindungen und Dienstleistungen. Die nächste Zugstation ist nur 8 km entfernt, während Bushaltestelle und Autobahnauffahrt ebenfalls in unmittelbarer Nähe liegen. Die Umgebung bietet eine Vielzahl an Freizeitaktivitäten, von Restaurants und Bars bis hin zu Fitnessstudios, Parks und kulturellen Einrichtungen.
Das Highlight des Landhauses ist jedoch die absolut ruhige und abgelegene Lage mit Blick auf natürliche Blumenwiesen. Hier finden Sie Ruhe und Erholung und können Ihre Privatsphäre genießen.
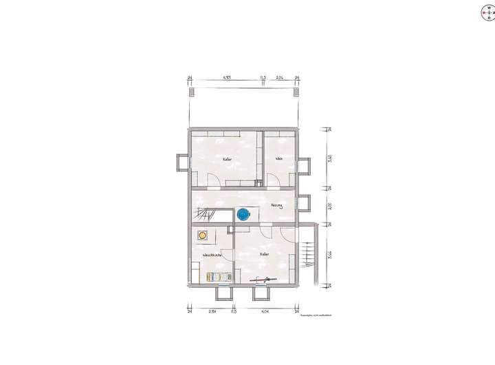
Grundriss
Grundriss Erdgeschoss
>
>
Grundriss Dachgeschoss
>
>
Grundriss Kellergeschoss
>
>
Adresse
83670 Bad Heilbrunn
Interessante Orte
Preis- und Lageinformationen
Preistrend für Bestandsimmobilien in Bad Heilbrunn