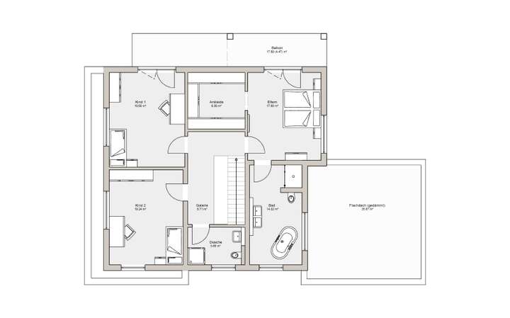
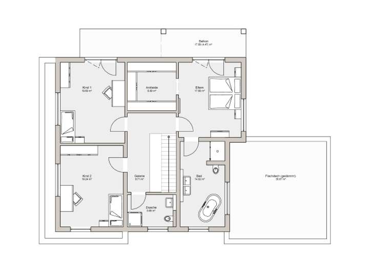
Das Bauhaus Anteo ist ein modernes Kern-Haus mit 214 m². Hier hat eine Familie genügend Platz um sich Wohlzufühlen. Das Wohn- und Esszimmer auf 55 m² wird zum Lebensmittelpunkt des Hauses, denn direkt angeschlossen ist die offene Küche mit Speisekammer. Große Fensterelemente im Wohnbereich bieten eine grenzenlose Sicht nach draußen. Ebenfalls im Erdgeschoss zu finden sind ein Home-Office, ein Duschbad und der Hauswirtschaftsraum, über den man in die Doppelgarage gelangt. Eine geradlinige Treppe führt in die lichtdurchflutete Galerie im Obergeschoss. Für die Eltern ist hier ein 40 m² großer, separater Bereich geplant. Dieser dient als perfekter Rückzugsort nach einem stressigen Tag. Vom geräumigen Schlafzimmer gelangt man in die Ankleide als auch in das Badezimmer mit Dusche und freistehender Badewanne. Von der Galerie erreicht man außerdem zwei gleichgroße Kinderzimmer und ein weiteres Duschbad. Abgerundet wird der durchdachte Grundriss von einem großzügigen Balkon in Richtung des Gartens. Dieser ist von einem der Kinderzimmer und dem Elternbereich begehbar. Dieses Haus wird nach Ihren individuellen Wünschen geplant und ausgestattet!
Exklusivität ohne Kompromisse!
65193 Wiesbaden
Die vollständige Adresse der Immobilie erhalten Sie vom Anbieter.
Auf Karte anzeigen
Die vollständige Adresse der Immobilie erhalten Sie vom Anbieter.

Finanzierungszertifikat
In nur zwei Minuten zu Ihrem persönlichen Finanzierungszertifkat.
Infos
Haustyp | Einfamilienhaus |
---|---|
Wohnfläche ca. | 214 m2 |
Grundstücksfläche | 750 m2 |
Zimmer | 5 |
Schlafzimmer | 3 |
Badezimmer | 3 |
Anzahl Garage/Stellplatz | 2 |
Kosten
Kaufpreis |
2.250.900 € |
---|---|
Provision | Nein |
Finanzierungsrechner:
Kaufpreis:
600.000 €
Eigenkapital:
600.000 €
Monatliche Rate
0 €
Effektiver Jahreszins
0 %
Sollzinsbindung
10 Jahre
Bausubstanz & Energieausweis
Baujahr | 2026 |
---|---|
Bauphase | Haus in Planung (projektiert) |
Objektzustand | Erstbezug |
Qualität der Austattung | Gehoben |
Heizungsart | Wärmepumpe |
Energieausweis | liegt vor |
Energieausweistyp | Bedarfsausweis |
Energieverbrauchskennwert | 13,5 kWh/(m²*a) |
Energieeffizienzklasse | A+ |
13,5
kWh/(m²*a)
Energieeffizienzklasse A+
- A+
- A
- B
- C
- D
- E
- F
- G
- H
- 0
- 25
- 50
- 75
- 100
- 125
- 150
- 175
- 200
- 225
- >250
Beschreibung des Objekts
Ausstattung
5 Zimmer, offene Küche, Diele, 2 x Dusche, Galerie, Bad, Ankleide, Hauswirtschaftsraum, Speisekammer, Balkon, Doppelgarage Das gezeigte Traumhaus im Überblick: + Schlüsselfertiges Massivhaus im Sinne der Ausstattungsbeschreibung "Soul" + Häuser in der Ausstattungsbeschreibung "Soul" sind als Effizienzhäuser 40 NH förderfähig + Zukunftsorientierte Energieausstattung in Form einer Luft-Wasser-Wärmepumpe und Fußbodenheizung sowie einer kontrollierten Wohnraumlüftung mit Wärmerückgewinnung + Inklusive Bodenplatte Beste Markenausstattung in jedem Kern-Haus: + Hochwertiger Kunstharz-Außenputz für eine langlebige Fassade + Vollständige Badausstattung von Villeroy & Boch mit Badewanne und flacher Duschwanne sowie einer Echtglasduschkabine + Fliesen von Villeroy & Boch in Bad und WC + Haustür mit 5-fach-Sicherheitsverriegelung + Erstklassige Innentüren der Marke Herholz mit Edelstahldrücker + Fenster mit 3-Scheiben-Wärmeschutzverglasung und elektrischen Rollläden + Stein-Innenfensterbänke + Austrittsschwellen an bodengleichen Außentüren aus Granit + Stahl-Holz-Treppe mit individueller Farbgestaltungsmöglichkeit + Vollständige und überdurchschnittliche Elektroausstattung inklusive Klingelanlage und Multimedia-Verkabelung + Funkvernetzte Rauchmelder für Ihre Sicherheit + Alle Leistungen aus einer Hand + Alle Planungs- und Architektenleistungen gemäß Bau- und Ausstattungsbeschreibung + Einsatz regionaler Handwerksbetriebe + Baubegleitende 5-Phasen-TÜV-Prüfung und Blower-Door-Test + Individuelle Anpassung auf Ihre Bedürfnisse + Auf Wunsch mit Keller erhältlich + Auf Wunsch mit weiteren Energietechniken erhältlich
Lage
Dieses traumhafte Baugrundstück befindet sich in TOP-Wohnlage von Wiesbaden. Die sonige und ruhige Umgebung bietet eine angenehme Wohnatmosphäre und eine gut ausgebaute Infrastruktur. Zahlreiche Restaurants und Cafés laden zum Verweilen ein und die umliegenden Grünflächen und Parks bieten ideale Voraussetzungen für erholsame Spaziergänge. Viele Einkaufsmöglichkeiten, verschiedene Arztpraxen und ein Krankenhaus sind in nur wenigen Minuten zu erreichen. Zudem gibt es eine gute Anbindung an den öffentlichen Nahverkehr mit verschiedenen Buslinien und einer S-Bahn-Station, die eine schnelle Verbindung in die Wiesbadener Innenstadt und zum Hauptbahnhof ermöglicht.
Sonstige Angaben
Kern-Haus baut individuelle und massive Architektenhäuser zu einem attraktiven Preis-Leistungs-Verhältnis – und das bereits mit einer Erfahrung seit 1980. Bei Kern-Haus erhalten Sie unter anderem 10 Jahre Gewährleistung auf die wesentlichen Bauleistungen, bis zu 24 Monate Preissicherheit sowie eine dokumentierte 5-Phasen-TÜV-Prüfung während der Bauphase. Jedes Kern-Haus als Effizienzhaus 40 ist bereits QNG-zertifiziert durch die Deutsche Gesellschaft für nachhaltiges Bauen (DGNB). 40 Jahre Expertise für das massive, energieeffiziente Bauen: Kern-Haus realisiert Massivhäuser in Ziegel, Bims, Porenbeton oder Stahlbeton (DuoTherm). Kern-Haus setzt auf eine hohe Bauqualität der Handwerker und auf eine große Auswahl starker Marken. So verwendet Kern-Haus beim Bau Ihres Hauses nur hochwertige Markenprodukte renommierter Hersteller – wie etwa Produkte von Villeroy & Boch. Preise und Auszeichnungen von Kern-Haus: - German Brand Award in den Jahren 2018 und 2021 - Hausbau Design Award: Sieger in den Jahren 2017, 2018, 2019, 2020, 2021, 2022 und 2023 - Deutscher Traumhauspreis: Sieger in den Jahren 2014, 2015, 2016 und 2018 und Silber 2017, 2020 und 2021 - Mittelstandspreis "Top 100" in den Jahren 2014, 2016, 2018, 2020 und 2022 - German Design Award im Jahr 2018 Weitere Informationen Der gezeigte Preis versteht sich inklusive Grundstück und exklusive der Baunebenkosten.
Grundriss
Grundriss Erdgeschoss
>

Grundriss Obergeschoss
>

Adresse
65193 Wiesbaden
Interessante Orte
Preis- und Lageinformationen
Preistrend für Bestandsimmobilien in Sonnenberg