Großzügiges Mehrfamilienhaus mit Entwicklungspotenzial.
Auf einem weitläufigen Grundstück von ca. 1.130 m² gelegen, eröffnet diese Immobilie mit einer Gesamtwohnfläche von ca. 290 m² vielfältige Nutzungsmöglichkeiten – sei es als Mehrgenerationenhaus, Kapitalanlage oder einer Kombination aus beidem.
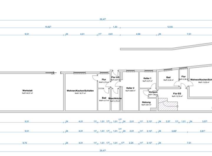
Das Gebäude wurde ca. 1967 in massiver Bauweise errichtet und beherbergt heute fünf Wohneinheiten auf vier Etagen. Im Erdgeschoss befinden sich zwei 1-Zimmer-Apartments. Eines davon steht aktuell leer und bietet nach einer Renovierung die Möglichkeit, es attraktiv neu zu vermieten.
Die Wohnungen im 1. und 2. Obergeschoss überzeugen mit offenen Wohn- und Essbereichen, großzügigen Einbauküchen inklusive Elektrogeräten, Tageslichtbädern sowie hell geschnittenen Schlafzimmern. Der Wintergarten im 1. Obergeschoss erweitert den Wohnraum ins Grüne und ist zu jeder Jahreszeit ein Wohlfühlort.
Das Dachgeschoss bietet durch seine flexible Raumaufteilung mit zwei Wohnbereichen, zwei Küchen, wovon derzeit eine als weiterer Wohnraum genutzt wird und zwei Tageslichtbädern besondere Nutzungsmöglichkeiten – etwa als separate Wohneinheit oder WG. Dank der vorhandenen Anschlüsse und der intelligenten Grundrissstruktur lässt sich hier problemlos ein autarkes Dachapartment schaffen.
Das Erdgeschoss ergänzt das Ensemble um eine zusätzliche Waschküche, zwei Kellerräume und eine geräumige Werkstatt mit ca. 44 m², welche separat vermietet werden kann.
Die zweifach verglasten Kunststoff- und Holzfenster sind mit Rollläden ausgestattet. Die Öl-Zentralheizung sorgt zuverlässig für wohlige Wärme, während Kupferrohre und eine teilweise modernisierte dreiadrige Elektrik mit FI-Schutzschaltern für Sicherheit und Langlebigkeit stehen.
Der gepflegte Garten hinter dem Haus ist liebevoll angelegt und angenehm pflegeleicht. Ob zur privaten Nutzung oder als Gemeinschaftsfläche für die Hausbewohner – hier findet jeder ein ruhiges Plätzchen im Freien.
Zwei Garagen, ein Carport und eine lange Einfahrt bieten ausreichend Stellfläche – in dieser Lage ein nicht zu unterschätzender Komfort.
Aktuell erzielt das Objekt eine monatliche Kaltmiete von ca. 2.050 €, bei einer Nebenkostenvorauszahlung von rund 1.070 €. Perspektivisch liegt die realistische, monatliche Kaltmiete bei ca. 2.665 € – ein attraktives Potenzial für Kapitalanleger.
Wir freuen uns auf Ihre Kontaktaufnahme zur Vereinbarung eines persönlichen Termins.
Rablinghausen | Attraktives 5-Parteienhaus mit Doppelgarage & guter Rendite
28197 Bremen
Die vollständige Adresse der Immobilie erhalten Sie vom Anbieter.
Auf Karte anzeigen
Die vollständige Adresse der Immobilie erhalten Sie vom Anbieter.
Finanzierungszertifikat
In nur zwei Minuten zu Ihrem persönlichen Finanzierungszertifkat.
Infos
| Haustyp | Mehrfamilienhaus |
|---|---|
| Wohnfläche ca. | 290 m2 |
| Nutzfläche | 90,87 m2 |
| Grundstücksfläche | 1.130 m2 |
| Bezugsfrei ab | Nach Vereinbarung |
| Zimmer | 10 |
| Schlafzimmer | 10 |
| Badezimmer | 6 |
| Garage/Stellplatz | Garage |
| Anzahl Garage/Stellplatz | 2 |
Kosten
| Kaufpreis |
492.900 € |
|---|---|
| Provision |
7,14 % (inkl. 19,00 % MwSt.) vom Käufer |
Finanzierungsrechner:
Kaufpreis:
600.000 €
Eigenkapital:
600.000 €
Monatliche Rate
0 €
Effektiver Jahreszins
0 %
Sollzinsbindung
10 Jahre
Bausubstanz & Energieausweis
| Baujahr | 1967 |
|---|---|
| Objektzustand | Gepflegt |
| Heizungsart | Zentralheizung |
| Wesentliche Energieträger | Öl |
| Energieausweis | liegt vor |
| Energieausweistyp | Bedarfsausweis |
| Energieverbrauchskennwert | 177,4 kWh/(m²*a) |
| Energieeffizienzklasse | F |
177,4
kWh/(m²*a)
Energieeffizienzklasse F
- A+
- A
- B
- C
- D
- E
- F
- G
- H
- 0
- 25
- 50
- 75
- 100
- 125
- 150
- 175
- 200
- 225
- >250
Beschreibung des Objekts
Ausstattung
- Attraktives 5-Parteienhaus mit 2 Garagen und Werkstatt
- Baujahr: ca. 1967
- Wohnfläche: ca. 290 m²
- Nutzfläche: ca. 91 m²
- Grundstücksfläche: ca. 1.130 m²
- Zimmeranzahl: 10
- Gepflegter Gesamtzustand des Hauses und der Grünanlagen
- Offene Wohnbereiche mit viel Tageslicht
- Umfangreiche Einbauküchen inklusive Elektrogeräten im Preis enthalten
- Weiß geflieste Tageslicht-Vollbäder
- Bodenbeläge: Laminat, Fliesen und Teppich
- Zweifach verglaste Kunststoff- und Holzfenster
- Rollläden an allen Fenstern vorhanden
- Robuste Öl-Zentralheizung von ca. 2003
- Robuste Kupferrohre vorhanden
- Teilweise dreiadrige Elektrik mit FI-Schutzschalter
- Mögliche Aufteilung der Wohnung im Dachgeschoss
- Gemeinschaftlich genutzte Abstellflächen
- Balkone & Wintergarten mit Südost-Ausrichtung im 1. Obergeschoss & 2. Obergeschoss
- Liebevoll angelegter und pflegeleichter Garten
- Lange Einfahrt mit 2 Garagenstellplätzen sowie einem Carport & separater Werkstatt
- Monatliche Kaltmiete von ca. 2.050 €
- Monatliche Nebenkostenvorauszahlung von 1.070 ca. €
- Mögliche monatliche Kaltmiete von ca. 2.665 €
- Ruhige und zugleich gut angebundene Lage
Lage
Die Immobilie liegt im Bremer Stadtteil Rablinghausen, einem Quartier, das in den letzten Jahren deutlich an Attraktivität gewonnen hat, während gleichzeitig die Nähe zur Weser und zur Bremer Innenstadt klare Standortvorteile bieten.
Über die A281 sowie die Bundesstraße 6 besteht eine direkte Anbindung an City, Hafen und Umland. Mehrere Buslinien sichern eine zuverlässige ÖPNV-Anbindung, und durch die geplante Vollendung der Weserquerung wird die Erreichbarkeit künftig noch verbessert.
Die Nahversorgung ist vielfältig: Supermärkte, Bäckereien, Cafés und Restaurants sind bequem fußläufig erreichbar. Für größere Einkäufe und Shopping steht das nur wenige Minuten entfernte Einkaufszentrum „Waterfront Bremen“ zur Verfügung, das Handel, Gastronomie und Freizeitangebote kombiniert.
Auch Ärzte, Apotheken und Dienstleister sind im Stadtteil vorhanden, wodurch sich eine hohe Versorgungssicherheit ergibt.
Rablinghausen zeichnet sich durch Familienfreundlichkeit aus. Mehrere Kitas und Schulen befinden sich in unmittelbarer Nähe, kurze Wege prägen den Alltag. Spielplätze, Jugendangebote und Sportvereine stärken die Lebensqualität zusätzlich.
Mit dem Weseruferpark Rablinghausen bietet der Stadtteil ein Naherholungsgebiet mit weitläufigen Grünflächen, Spielplätzen, Radwegen und direktem Wasserzugang – ein Standortvorteil, der sowohl für Familien als auch für Freizeitorientierte von hoher Bedeutung ist.
Auch wirtschaftlich überzeugt die Lage: In unmittelbarer Nähe befinden sich der Neustädter Hafen und das Güterverkehrszentrum mit einer Vielzahl an Arbeitsplätzen. Gleichzeitig erfährt Rablinghausen mit der Nähe zu Woltmershausen einen starken Aufwertungsschub durch groß angelegte Stadtentwicklungsprojekte.
Besonders hervorzuheben ist das „Tabakquartier“, das auf dem Gelände der ehemaligen Tabakfabrik entsteht und künftig rund 1.500 Wohnungen sowie Büroflächen, Kultur- und Freizeitangebote vereinen wird. Zusammen mit der Entwicklung der Überseeinsel, die künftig über eine neue Brücke angebunden wird, eröffnen sich erhebliche Potenziale für Wertsteigerungen und eine nachhaltige Quartiersaufwertung.
Insgesamt bietet die Mikrolage dieser Immobilie die seltene Kombination aus ruhigem Wohnen in wassernaher, grüner Umgebung und der Nähe zu dynamischen Entwicklungsprojekten. Diese Mischung aus hoher Lebensqualität, exzellenter Anbindung und zukunftsweisender Stadtentwicklung macht die Immobilie zu einem Standort mit ausgezeichneten Perspektiven für Investoren.
Grundriss
S&P | Grundriss Erdgeschoss
>
>
S&P | Grundriss 1. Obergeschos
>
>
S&P | Grundriss 2. Obergeschos
>
>
S&P | Grundriss Dachgeschoss
>
>
Adresse
28197 Bremen
Interessante Orte
Preis- und Lageinformationen
Preistrend für Bestandsimmobilien in Rablinghausen