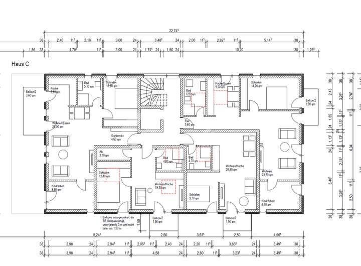
Geplant ist ein zukunftsorientiertes Bauvorhaben auf einem attraktiven Grundstück, das altersgerechtes Wohnen und Kinderbetreuung in einem durchdachten Konzept zusammenführt:
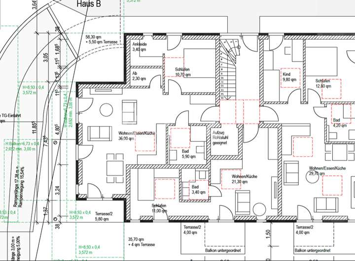
- 26 barrierefreie Wohneinheiten im betreuten Wohnen
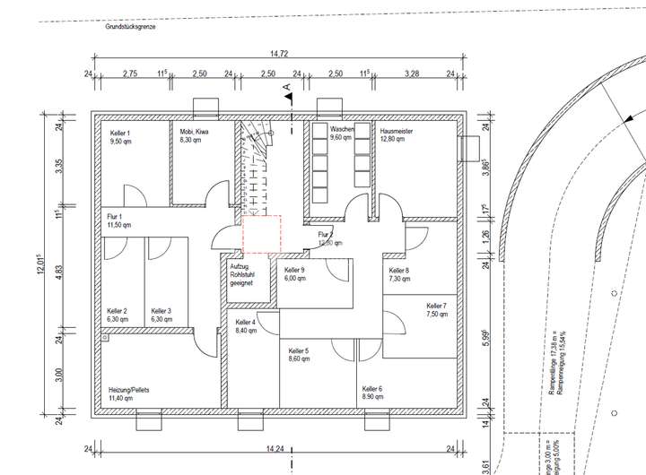
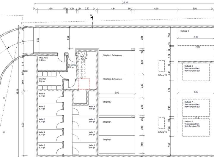
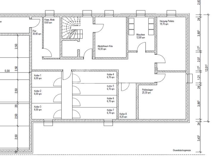
- 14 Tiefgaragenstellplätze
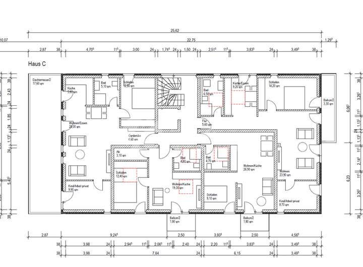
- 1694m2 Wohnfläche
- Eine Kindertagesstätte im selben Gebäude
- Städtische Förderung für den Kita-Anteil, bis zu 1,3 Millionen Euro
- Ein erfahrener Betreiber für den Pflegebereich steht bereits zur Verfügung
- GU-Angebot schlüsselfertig für 4500€/m2 - Insgesamt ca. 5400€/m2
Die voraussichtliche Gesamtinvestition zur schlüsselfertigen Umsetzung des Projekts beläuft sich auf ca. 11,5 Millionen Euro.
- Bauträger Grundstück: Investitionsprojekt in Augsburg – - Betreutes Wohnen & Kita mit Förderung
86179 Augsburg
Die vollständige Adresse der Immobilie erhalten Sie vom Anbieter.
Auf Karte anzeigen
Die vollständige Adresse der Immobilie erhalten Sie vom Anbieter.
Finanzierungszertifikat
In nur zwei Minuten zu Ihrem persönlichen Finanzierungszertifkat.
Infos
| Vermarktungsart | Kaufen |
|---|---|
| Grundstücksfläche | 1.693 m2 |
Kosten
| Miete pro Jahr |
2.600.000 € |
|---|---|
| Provision | Nein |
Finanzierungsrechner:
Kaufpreis:
600.000 €
Eigenkapital:
600.000 €
Monatliche Rate
0 €
Effektiver Jahreszins
0 %
Sollzinsbindung
10 Jahre