Dieses charmante Zweifamilienhaus mit einer Sattel- und Walmdachkonstruktion besticht durch seine harmonische Architektur und klassischen Charme, errichtet im Jahr 1969, befindet sich auf einem großzügigen 789 m² großen Eigentumsgrundstück im beliebten Göttinger Stadtteil Nikolausberg.
Das Haus überzeugt durch seine solide Massivbauweise mit Klinkerfassade und bietet zwei vollständig abgeschlossene Wohneinheiten, die sowohl für Eigennutzer als auch für Kapitalanleger interessant sind. Bislang wurde das Haus als großzügiges Einfamilienhaus genutzt.
Das Haus wurde beim Eigentumswechsel im Jahr 1977 insgesamt und anschließend punktuell renoviert sowie teilweise modernisiert (Einbau eines Gasbrenners und Austausch von Fenstern). Es befindet sich in einem gepflegten Zustand und bietet die Möglichkeit, Ihre eigenen Modernisierungs- und Renovierungswünsche zu realisieren.
Die Raumaufteilung im Detail:
Erdgeschoss
• Geräumiger Flur mit Garderobenbereich
• Gäste-WC mit Tageslicht
• Küche
• Großzügiges Wohnzimmer mit Zugang zur Terrasse und zum Garten
• Schlafzimmer mit angrenzendem Ankleidezimmer
• Kinderzimmer
• Tageslichtbad mit Badewanne, separater Dusche und WC
Obergeschoss
• Heller, großzügiger Flur
• Tageslichtbad mit Badewanne und Dusche sowie ein zusätzliches separates WC mit
Tageslicht
• Küche
• Großes Wohnzimmer
• Zwei Schlafzimmer
• zwei zusätzliche ausgebaute Räume mit separatem WC (Nutzfläche)
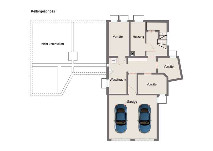
Kellergeschoss
• Waschkeller
• Drei Kellerräume
• Heizungskeller
• Doppelgarage mit direktem Zugang zum Haus
Der große Spitzboden bieten Ihnen weitere Abstellmöglichkeiten.
Ausstattung
• Baujahr: 1969
• Massivbauweise mit Klinkerfassade
• Sattel- und Walmdach mit Gauben
• Fenster mit Holz- oder Kunststoffrahmen mit Doppelverglasung (Austausch 1997,
2009 und 2011)
• Gaszentralheizung
• Bodenbeläge: Teppich und Fliesen
• pflegeleichter Garten
• Doppelgarage
Haben wir Ihr Interesse geweckt? Gern vereinbaren wir mit Ihnen einen Besichtigungstermin!
Attraktives Zweifamilienhaus in begehrter Lage von Göttingen-Nikolausberg
37077 Göttingen
Die vollständige Adresse der Immobilie erhalten Sie vom Anbieter.
Auf Karte anzeigen
Die vollständige Adresse der Immobilie erhalten Sie vom Anbieter.
Finanzierungszertifikat
In nur zwei Minuten zu Ihrem persönlichen Finanzierungszertifkat.
Infos
| Haustyp | Mehrfamilienhaus |
|---|---|
| Wohnfläche ca. | 215 m2 |
| Grundstücksfläche | 789 m2 |
| Bezugsfrei ab | nach Absprache |
| Zimmer | 6 |
| Badezimmer | 2 |
| Garage/Stellplatz | Garage |
| Anzahl Garage/Stellplatz | 2 |
Kosten
| Kaufpreis |
549.000 € |
|---|---|
| Provision |
3,57 % inkl. ges. MwSt. |
Finanzierungsrechner:
Kaufpreis:
600.000 €
Eigenkapital:
600.000 €
Monatliche Rate
0 €
Effektiver Jahreszins
0 %
Sollzinsbindung
10 Jahre
Bausubstanz & Energieausweis
| Baujahr | 1969 |
|---|---|
| Letzte Sanierung | 2011 |
| Bauphase | Haus fertig gestellt |
| Objektzustand | Gepflegt |
| Qualität der Austattung | Einfach |
| Heizungsart | Zentralheizung |
| Wesentliche Energieträger | Gas |
| Energieausweis | liegt vor |
| Energieausweistyp | Bedarfsausweis |
| Energieverbrauchskennwert | 384,6 kWh/(m²*a) |
| Energieeffizienzklasse | H |
384,6
kWh/(m²*a)
Energieeffizienzklasse H
- A+
- A
- B
- C
- D
- E
- F
- G
- H
- 0
- 25
- 50
- 75
- 100
- 125
- 150
- 175
- 200
- 225
- >250
Beschreibung des Objekts
Ausstattung
Individuelle Ausstattungsmerkmale:
- siehe Objektbeschreibung
Lage
Dieses Zweifamilienhaus befindet sich im beliebten Göttinger Stadtteil Nikolausberg. Nikolausberg bietet seinen etwa 3.600 Einwohnern eine hervorragende Infrastruktur mit einer Postfiliale, einer SB-Filiale der Sparkasse, einem Edeka-Markt, einer Grundschule, einem Kindergarten und Hort, einer Hausarztpraxis, Zahnärzte, zwei Bäckerei-Filialen, ein Hotel, ein Waldfreibad sowie dem beliebten Restaurant "Kuckuck".
Die Göttinger Innenstadt, den Uni-Nordbereich und das Max-Planck-Institut können Sie bequem mit dem Stadtbus oder dem Fahrrad erreichen. Außerdem beherbergt der familiär geprägte Ort zahlreiche Vereine, wie zum Beispiel den Nikolausberger Sportklub, den Heimatverein und Kleingartenverein. Auch landschaftlich und kulturell hat Nikolausberg mit der berühmten Klosterkirche, der unmittelbaren Nähe zum Wald und der Nikolausberger Warte einiges zu bieten. Der Ort besticht zudem durch seine Endlage mit einer sehr angenehmen Wohnatmosphäre, da es keinerlei Durchgangsverkehr gibt.
Sonstige Angaben
VERBRAUCHERINFO
1. Maklerleistung ist der Nachweis der Gelegenheit zum Abschluss eines Vertrages bzw. Vermittlung eines Vertrages über eine Immobilie gegen die Courtagezahlungspflicht des Kunden
2. Unternehmer,Anschrift,Beschwerdeadressat
LBSi NordWest, Himmelreichallee 40, 48149 Münster, Tel:0251/973233-997, eMail:info@lbsi-nw.de
GF:Martin Englert, Volker Goldbeck
3. Es besteht ein Widerrufsrecht
4. Weitere Infos: verbraucherinfo.lbsi-nordwest.de
Grundriss
Raumaufteilung Erdgeschoss
>
>
Raumaufteilung Dachgeschoss
>
>
Raumaufteilung Kellergeschoss
>
>
Adresse
37077 Göttingen
Interessante Orte
Preis- und Lageinformationen
Preistrend für Bestandsimmobilien in Göttingen